Anlieferung Hallen
99089 ERFURT
Vielfältige Gewerbeimmobilie im Norden Erfurts!
Auf Anfrage
Kaufpreis Auf Anfrage

Anbieter

  • Daniel Hellmuth
  • Shop Erfurt – Commercial
  • Kettenstraße 7
  • 99084 Erfurt
Bewerbung wird geladen...

Immobilienanfrage

Füllen Sie das Formular aus und unsere Immobilien-Experten melden sich in Kürze bei Ihnen.

Ihre persönlichen Daten

Ihre Bewerbung wird vertraulich behandelt.

Übersicht

Highlights

Details

Objektnummer

25478946

Baujahr

2001

Provision

Mieterprovision beträgt das 3,57-fache der mtl. Nettokaltmiete zzgl. gesetzlicher MwSt.

Energieinformationen

Skala

E

Energieeffizienzklasse

E

Endenergieverbrauch

53,17 kWh/m²a

Energieinformationen

VERBRAUCH

Energieausweis gültig bis

20.12.2028

Baujahr laut Energieausweis

2001

Wesentlicher Energieträger

Gas

Objektbeschreibung

Innerhalb eines abgeschlossenen kleinen Gewerbeparks stehen ca. 1.700 m² Lager- und Produktionsflächen zur Vermietung.

Die modernen Produktionsflächen stehen sowohl im EG als auch im 1.OG zur Verfügung. Die Erschließung bzw. Anlieferung erfolgt über das Treppenhaus sowie einen Lastenaufzug (4,5 t Tragkraft).

Produktionsflächen sind beheizt und teilweise klimatisiert. Büro- und Sozialflächen stehen im Produktionsgebäude oder im benachbarten Bürohaus zur Verfügung. Zusätzliche Büroflächen können im Hauptgebäude geschaffen werden.

Eine weitere separate Hallenfläche mit ca. 630 m² steht ab Anfang 2023 zur Verfügung. Über ein ebenerdiges Rolltor kann die Halle befahren werden.

Vor dem Gebäude stehen Parkplätze bzw. eine Freilagerfläche zur Verfügung. Die Erschließung des Grundstücks erfolgt über zwei Schiebetoranlagen. Das Gelände ist umzäunt und abgeschlossen.

Der Mietpreis für die Produktions- und Lagerflächen werden mit € 4,50/m² und die Büroflächen mit € 7,00/m² kalkuliert. Diese verstehen sich jeweils zzgl. Nebenkosten und gesetzlicher Mehrwertsteuer.

Weiterlesen

Lage: Erfurt

Lagebeschreibung

Die Liegenschaft befindet sich in Erfurt Nord innerhalb des Wohngebietes "Tiergartensiedlung". Das Erfurter Stadtzentrum ist in ca. 10 Minuten erreichbar. Die Anbindung an den ÖPNV ist durch Straßenbahn und Bus gegeben.

Das Umfeld ist hauptsächlich geprägt durch Wohnnutzung, Einzelhandel und Kleingewerbe. Das Areal, auf dem sich die Lager- und Produktionshallen befinden, wurden als Produktionsstandort in den 80igern Jahren errichtet und wird als solcher bis heute genutzt.

Weiterlesen

Ausstattung

  • + Hallenbodenbeschichtung
  • + Belichtung
  • + Gas-Wandstrahler zur Beheizung
  • + Klimatisierung
  • + WC- und Sozialräume
  • + PKW-Stellplätze

Sonstiges

Es liegt ein Energieverbrauchsausweis vor. Dieser ist gültig bis 20.12.2028. Endenergieverbrauch beträgt 53.17 kwh/(m²*a). Wesentlicher Energieträger der Heizung ist Gas. Das Baujahr des Objekts lt. Energieausweis ist 2002.

HAFTUNG: Wir weisen darauf hin, dass die von uns weitergegebenen Objektinformationen, Unterlagen, Pläne etc. vom Verkäufer bzw. Vermieter stammen. Eine Haftung für die Richtigkeit oder Vollständigkeit der Angaben übernehmen wir daher nicht. Es obliegt daher unseren Kunden, die darin enthaltenen Objektinformationen und Angaben auf ihre Richtigkeit hin zu überprüfen. Alle Immobilienangebote sind freibleibend und vorbehaltlich Irrtümer, Zwischenverkauf- und Vermietung oder sonstiger Zwischenverwertung.

UNSER SERVICE FÜR SIE ALS EIGENTÜMER: Planen Sie den Verkauf oder die Vermietung Ihrer Immobilie, so ist es für Sie wichtig, deren Marktwert zu kennen. Lassen Sie kostenfrei und unverbindlich den aktuellen Wert Ihrer Immobilie professionell durch einen unserer Immobilienspezialisten einschätzen. Unser bundesweites und internationales Netzwerk ermöglicht es uns, Verkäufer bzw. Vermieter und Interessenten bestmöglich zusammenzuführen.

Weiterlesen

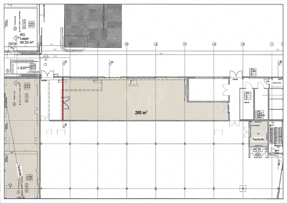
Grundriss

Grundriss Lager
Grundriss OG Produktion

99089 ERFURT

Vielfältige Gewerbeimmobilie im Norden Erfurts!

Auf Anfrage

Anbieter

  • Daniel Hellmuth
  • Shop Erfurt – Commercial
  • Kettenstraße 7
  • 99084 Erfurt