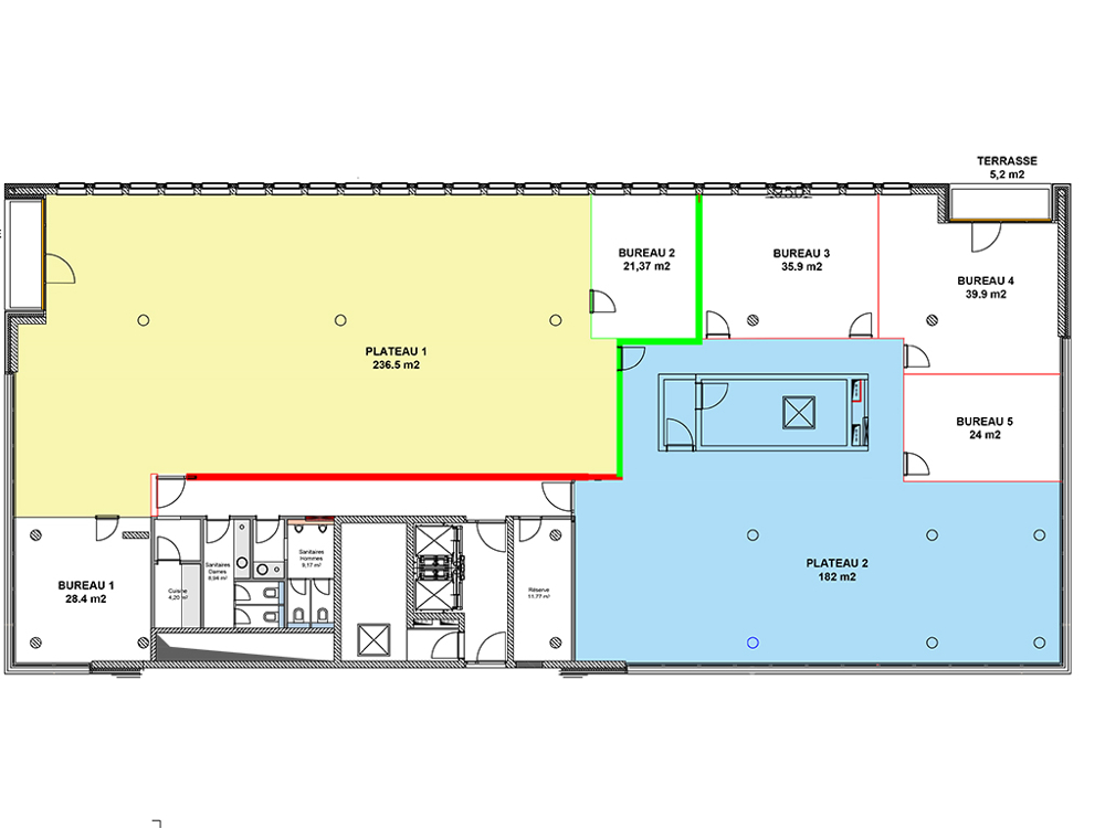
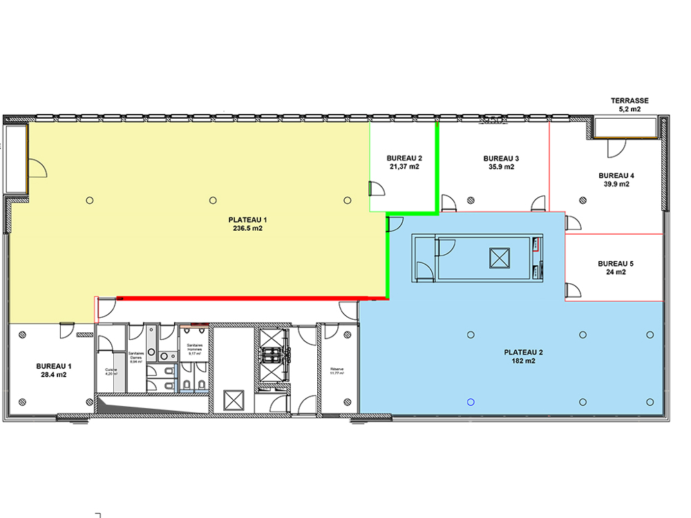
L-3364 LEUDELANGE (LUX) – LUX PÉRIPHÉRIE OUEST
Surface de bureau à louer
- ca. 686 m² Συνολική έκταση
- Κατόπιν επικοινωνια Τιμή ενοικίου
Επισκόπηση
Κύρια σημεία
Λεπτομέρειες
Αριθμός ακινήτου
LU881800069_1
Απασχόληση από
29.04.2019
Προμήθεια
Fees paid by the owner
Ενεργειακές πληροφορίες
Κάτοψη

L-3364 LEUDELANGE (LUX) – LUX PéRIPHéRIE OUEST
Surface de bureau à louer
Κατόπιν επικοινωνια
Πάροχος
- VON POLL REAL ESTATE Limpertsberg
- Κατάστημα Limpertsberg
- 6, avenue Pasteur
- L-2310 Luxembourg