33335 GÜTERSLOH – AVENWEDDE
PROVISIONSFREI | NEUBAU Reiheneckhaus in toller Wohnlage | KfW40 - QNG-Siegel
- ca. 120,11 m² Επιφάνεια
- ca. 207 m² Έκταση γης
- 4 Δωμάτια
- 450.000 EUR Τιμή αγοράς
Επισκόπηση
Κύρια σημεία
Λεπτομέρειες
Αριθμός ακινήτου
25220061
τουαλέτα
1
Έτος κατασκευής
2026
Κατάσταση του ακινήτου
3
Ενεργειακές πληροφορίες
Πηγή ενέργειας
Αντλία θερμότητας αέρα / νερού
Συστήματα θέρμανσης
Υποδαπέδια θέρμανση
Περιγραφή
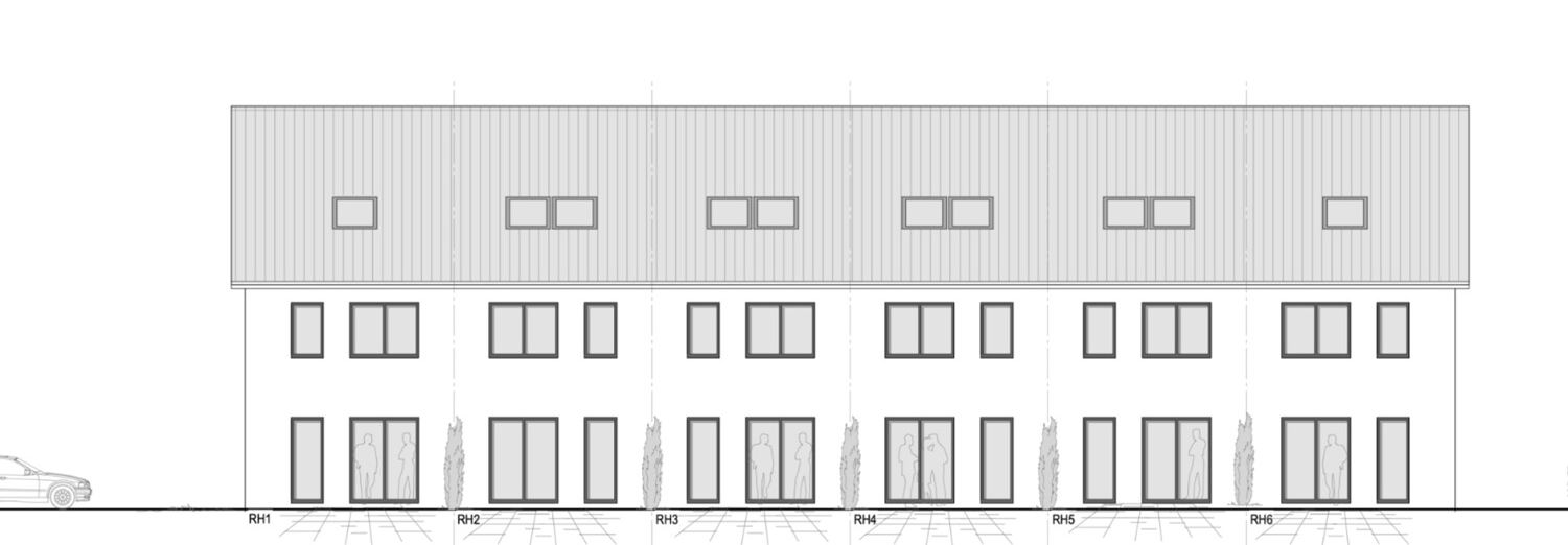
Diese Immobilie wird Ihnen präsentiert von: Philipp Schremmer & Laura Stolke Telefon: 05241 - 211 99 90 PROVISIONSFREI | NEUBAU Reihenhaus KfW40 mit QNG-Siegel | ruhige Wohnlage In diesem Wohnquartier entstehen 6 hochwertige und effiziente Reihenhäuser. Die Häuser werden im hochwertigen und energieeffizienten KfW40 Standard mit QNG-Siegel erstellt und ist bis Sommer 2026 bezugsfertig. Die Liegenschaft mit rund 1.147 m² wird nach WEG geteilt. Die jeweiligen Grundstücksgrößen / Sondernutzungsrechte variieren zwischen ca. 119 m² - 257 m². Die einzelnen Häuser werden ca. 120 m² Wohnfläche haben und verfügen jeweils über 4-5 Zimmer. Die Objekte eignen sich ideal für Familien und Paare. Zu jeder Wohneinheit werden 1-2 Stellplätze zugeordnet. Bezüglich einer lukrativen Förderung über die KfW-Bank sprechen Sie uns gerne an. Sie möchten mehr Informationen? Gerne vereinbaren wir mit Ihnen einen Termin in unserem Büro. Bitte haben Sie Verständnis dafür, dass nur schriftliche Anfragen mit vollständiger Adresse und Angabe der Telefonnummer bearbeitet werden können. Eine Besichtigung kann nur mit einer Finanzierungsbestätigung stattfinden. Sollten Sie in diesem Punkt noch Unterstützung brauchen, stellen wir gerne Kontakt zu unseren Kollegen der VON POLL FINANCE her.
Τοποθεσίες
Περιγραφή
Avenwedde-Bahnhof, nur wenige Minuten von der Kreisstadt Gütersloh entfernt. Grundschule, Kindergärten, Apotheke und Geschäfte für den täglichen Bedarf sind hier sehr gut zu erreichen. Im Nachbarort Friedrichsdorf befindet sich eine Waldorfschule. Der Bahnhof ist nur wenige Fußminuten entfernt. Gütersloh, ein starker Standort in Ostwestfalen. Erleben Sie diese Stadt als attraktiven Kultur-, Bildungs-, Freizeit- und Einkaufsstandort. Kindergärten, Grundschulen und weiterführende Schulen finden Sie ebenso wie eine rundum ärztliche Versorgung. Die ansässigen Unternehmen stellen rund 46.000 Arbeitsplätze zur Verfügung. Insbesondere Miele, Bertelsmann und Claas sind weltweit bekannt. Zahlreiche Freizeitaktivitäten wie Golf, Tennis, Reiten oder Wandern stehen Ihnen in der näheren Umgebung zur Verfügung. Von hier aus können Sie eindrucksvolle Ausflüge in den nahegelegenen Teutoburger Wald, in den Gartenschaupark Rietberg, in die Flora Westfalica in Rheda-Wiedenbrück, ins Theater in Gütersloh oder in die OWL Arena in Halle (Westf.) sowie zu vielen anderen besonderen Orten machen - Entschleunigung ist hier anregend leicht! Die naheliegenden Städte der Umgebung erreichen Sie zeitnah, in ca. 30 Minuten Bielefeld und in ca. 40 Minuten Paderborn. Die Autobahnen A2 und A 33 liegen wenige Autominuten entfernt. Von hier gelangen Sie komfortabel in das Umland. Der nächstgelegene Flughafen ist der etwa 45 Kilometer von Gütersloh entfernte Flughafen Paderborn / Lippstadt. Das Gütersloher Stadtgebiet verfügt über ein gut ausgebautes Stadtbusnetz. Der Hauptbahnhof ist mit einer guten Verbindung an den Nah- und Fernverkehr angeschlossen.
Κάτοψη



33335 GüTERSLOH – AVENWEDDE
PROVISIONSFREI | NEUBAU Reiheneckhaus in toller Wohnlage | KfW40 - QNG-Siegel
ca. 120,11 m² • 4 Δωμάτια • 450.000 EUR
Πάροχος
- Philipp Schremmer
- Κατάστημα Gütersloh
- Berliner Straße 3
- 33330 Gütersloh