Mancor de la Vall (1)
07312 MANCOR DE LA VALL (ESP) – MITTE
Fantástica promoción de viviendas ubicada en Mancor de la Vall.
490.000 EUR
Superficie habitable ca. 160 m²
Superficie del terreno ca. 404 m²
Habitaciones 5
Precio de compra 490.000 EUR
Proveedor
  • Florian Waetzoldt
  • Tienda Mallorca - Santa María
  • Placa Hostals 11
  • 07320 Santa Maria del Camí
La aplicación se carga...

Solicitud de información

Rellene el formulario y nuestros expertos inmobiliarios se pondrán en contacto con usted en breve.

Sus datos personales

Su solicitud será tratada confidencialmente.

Visión general

Destacados

Terraza

Detalles

Número de propiedad

ES233744467

Tipo de vivienda

Terreno

Estado de la propiedad

con proyecto

Baños

3

Dormitorios

4

Información energética

En trámite

Descripción

Bienvenido a una oferta inmobiliaria única en Mancor de la Vall, un pueblo encantador en el corazón de Mallorca. Este solar edificable de primera clase le ofrece la oportunidad única de hacer realidad la casa de sus sueños en un impresionante entorno mediterráneo.

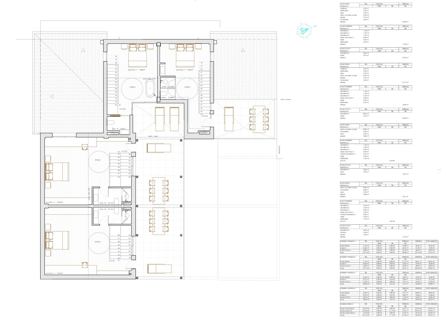
El solar se ofrece con licencia para construir una casa con cuatro viviendas. La superficie habitable prevista es de aprox. 143 m² a 162 m², lo que ofrece suficiente espacio para la vida individual. Con un total de cinco habitaciones, incluyendo cuatro cómodos dormitorios, estos pisos ofrecen un amplio espacio para la relajación y la privacidad. Tres elegantes cuartos de baño y una moderna cocina americana completan la oferta. El diseño abierto de la cocina permite una transición fluida a la zona de estar y crea un ambiente acogedor para pasar agradables veladas con la familia y los amigos.

Disfrute del estilo de vida mediterráneo en una terraza que varía de aprox. 12 m² a unos impresionantes aprox. 120 m². Un garaje completa la oferta. Aquí podrá relajarse maravillosamente y disfrutar de las impresionantes vistas de la naturaleza circundante. La ubicación en las tranquilas afueras de Mancor de la Vall asegura un ambiente de vida relajante lejos del ajetreo turístico, mientras que al mismo tiempo se beneficia de la proximidad a las comodidades del pueblo.

Esta propiedad es una verdadera joya para aquellos que buscan invertir en la auténtica Mallorca. No se pierda esta oportunidad única de hacer realidad su sueño de vivir en el Mediterráneo. Póngase en contacto con nosotros para más información y una visita in situ.

Seguir leyendo

Ubicaciones

Descripción

Mancor de la Vall está situado en el corazón de la Serra de Tramuntana, a unos 215 metros sobre el nivel del mar, y ha conservado el encanto original de un pequeño pueblo rodeado de montañas en una depresión del valle. Además de Mancor, el municipio incluye las aldeas de Biniarroi, Massanella y Biniatzent. De especial interés arquitectónico son la iglesia parroquial de Sant Joan Baptista y la ermita de Santa Llúcia, citadas por primera vez en 1358. Merece la pena dar un paseo hasta la ermita para disfrutar de las hermosas vistas del pueblo y las montañas. Aquí también se pueden admirar varias casas de interesante arquitectura, como Can Marquesí, Son Simó, Cas Vellaco o Turixant. Esta última se utiliza ahora como hotel con restaurante. En noviembre se celebra la Fira del Esclata-sang i la Muntanya (Fiesta de la Seta y la Montaña). Las setas son las protagonistas de la fiesta, especialmente la esclata-sang, protagonista de muchas de las especialidades gastronómicas otoñales de la isla, y es una excelente oportunidad para comprar todo tipo de productos artesanos y degustar deliciosos platos elaborados con setas en los restaurantes y bares. Palma se encuentra a unos 35 kilómetros. Rodeado de montañas, Mancor de la Vall ofrece a los excursionistas la oportunidad de descubrir un paisaje virgen de gran belleza.

Seguir leyendo

Características

  • Garaje
  • Terraza

Información adicional

Por lo general, recomendamos que un abogado especializado compruebe la situación del derecho de construcción. Todos los datos se basan exclusivamente en la información facilitada por el propietario o cliente. No asumimos ninguna responsabilidad por la integridad, exactitud y actualidad de la información. Los gastos de intermediación corren a cargo del vendedor. Los impuestos, gastos notariales y registrales derivados de la compra corren a cargo del comprador.

Seguir leyendo

Plano de la planta

Ground floor
First floor
Second floor
Roof
Cross-section
South and west facade

07312 MANCOR DE LA VALL (ESP) – MITTE

Fantástica promoción de viviendas ubicada en Mancor de la Vall.

ca. 160 m² 5 Habitaciones 490.000 EUR

Proveedor
  • Florian Waetzoldt
  • Tienda Mallorca - Santa María
  • Placa Hostals 11
  • 07320 Santa Maria del Camí