Ansicht 1
99867 GOTHA
Top Industrieobjekt – Produktionshalle mit Kran und vielseitiger Nutzung!
Auf Anfrage
Kaufpreis Auf Anfrage

Anbieter

  • Daniel Hellmuth
  • Shop Erfurt – Commercial
  • Kettenstraße 7
  • 99084 Erfurt
Bewerbung wird geladen...

Immobilienanfrage

Füllen Sie das Formular aus und unsere Immobilien-Experten melden sich in Kürze bei Ihnen.

Ihre persönlichen Daten

Ihre Bewerbung wird vertraulich behandelt.

Übersicht

Highlights

Details

Objektnummer

25478945

Baujahr

2008

Provision

Mieterprovision beträgt das 3,57-fache der mtl. Nettokaltmiete inkl. gesetzlicher MwSt.

Energieinformationen

Energieinformationen

BEDARF

Wesentlicher Energieträger

Gas

Objektbeschreibung

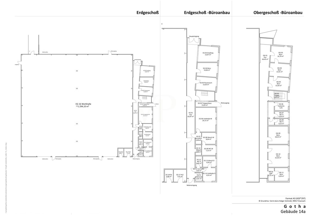
Innerhalb eines kleinen Gewerbegebietes am Stadtrand von Gotha steht eine moderne Produktions- und Lagerhalle mit einem angeschlossenem Bürotrakt zur Vermietung.

Die zweischiffige Lagerhalle wurde im Jahr 2008 als Neubau errichtet. Der zweigeschossige Verwaltungs- und Sozialanbau ist an die Halle angegliedert und über interne Zugänge verbunden.

Zur Hallenausstattung zählt ein belastbarer Industrieboden aus Stahlbeton, Dachlichtbänder mit RWA, bodentiefe Fenster und weitere Lichtbänder in den Außenwänden. Die Beheizung der Halle erfolgt über Gas-Heizlüfter. Die Erschließung bzw. Anlieferung erfolgt über jeweils ein Sektionaltor pro Hallenschiff (B/H = 4,50m/4,80m). Die Hallengrundbeleuchtung erfolgt über s.g. Gasleuchten mit ca. 400 Lux.

Die Büroräume werden im Erdgeschoss über eine repräsentative Glaseingangstür erschlossen. Über das Treppenhaus sind die ansprechenden Büros im Obergeschoss zu erreichen. Zur Ausstattung zählen hier Teppichboden, Beleuchtung, Sonnenschutz, Elektrogrundinstallation sowie eine Datennetz-Vorrüstung. Die WC-Räume im OG verfügen über eine hochwertige Ausstattung.

Zum Mietobjekt gehören Grün- und Parkflächen.

Die Versorgungsverträge für Elektro, Gas, Trinkwasser/Abwasser sowie Telekommunikation sind mit den örtlichen Versorgern durch die Mieter direkt abzuschließen.

Weiterlesen

Lage: Gotha

Lagebeschreibung

Gotha ist die fünftgrößte Stadt des Freistaats Thüringen und Kreisstadt des Landkreises Gotha mit ca. 46.000 Einwohnern.

Die Liegenschaft selbst befindet sich innerhalb des Industrie- und Gewerbegebietes "Südstraße" am süd-westlichen Stadtrand von Gotha. Die Anbindung an den ÖPNV ist hervorragend - der Hauptbahnhof sowie Haltestellen der NVG befinden sich ca. 2 Minuten entfernt.

Über die A4-Anschlussstelle Gotha erreichen Sie ca. 20 km entfernt die Landeshauptstadt Erfurt. Weiterhin liegt Gotha im Schnittpunkt der B7 und der B247.

Weiterlesen

Ausstattung

  • + Hallenhöhe ca. 7,90 m an der Traufe
  • + Industrieboden zulässige Gesamtlast 69 LN
  • + Elt-Hausanschluss 100 kW Niederspannung (erweiterbar)
  • + Kranbahn mit 5 t in einem Hallenschiff,
  • + Vorrüstung von Tragkonsolen für Kranbahnen bis 10 t

Sonstiges

Es liegt ein Energiebedarfsausweis vor. Endenergiebedarf beträgt kwh/(m²*a). Wesentlicher Energieträger der Heizung ist Gas. Das Baujahr des Objekts lt. Energieausweis ist 2008.

HAFTUNG: Wir weisen darauf hin, dass die von uns weitergegebenen Objektinformationen, Unterlagen, Pläne etc. vom Verkäufer bzw. Vermieter stammen. Eine Haftung für die Richtigkeit oder Vollständigkeit der Angaben übernehmen wir daher nicht. Es obliegt daher unseren Kunden, die darin enthaltenen Objektinformationen und Angaben auf ihre Richtigkeit hin zu überprüfen. Alle Immobilienangebote sind freibleibend und vorbehaltlich Irrtümer, Zwischenverkauf- und Vermietung oder sonstiger Zwischenverwertung.

UNSER SERVICE FÜR SIE ALS EIGENTÜMER: Planen Sie den Verkauf oder die Vermietung Ihrer Immobilie, so ist es für Sie wichtig, deren Marktwert zu kennen. Lassen Sie kostenfrei und unverbindlich den aktuellen Wert Ihrer Immobilie professionell durch einen unserer Immobilienspezialisten einschätzen. Unser bundesweites und internationales Netzwerk ermöglicht es uns, Verkäufer bzw. Vermieter und Interessenten bestmöglich zusammenzuführen.

Weiterlesen

Grundriss

Grundrisse H14a

99867 GOTHA

Top Industrieobjekt – Produktionshalle mit Kran und vielseitiger Nutzung!

Auf Anfrage

Anbieter

  • Daniel Hellmuth
  • Shop Erfurt – Commercial
  • Kettenstraße 7
  • 99084 Erfurt