Renoviertes-Stadthaus-in-Muro
07440 MURO (ESP) – NORD
Casa de pueblo totalmente reformada con piscina en el centro de Muro
480.000 EUR
Superficie habitable ca. 218 m²
Superficie del terreno ca. 236 m²
Habitaciones 4
Precio de compra 480.000 EUR
Proveedor
  • Christian W. Czarnetzki
  • Tienda Mallorca - Pollensa
  • C./Cecilio Metelo 67
  • E-07460 Pollensa
La aplicación se carga...

Solicitud de información

Rellene el formulario y nuestros expertos inmobiliarios se pondrán en contacto con usted en breve.

Sus datos personales

Su solicitud será tratada confidencialmente.

Visión general

Destacados

Terraza
Piscina

Detalles

Número de propiedad

ES255359

Tipo de vivienda

Casa de ciudad

Plaza de aparcamiento

1 x Garaje

Estado de la propiedad

a estrenar

Baños

2

Dormitorios

3

Información energética

Escala

B

Clase de eficiencia energética

B

Certificado energético válido hasta

19.08.2035

Descripción

Encanto mallorquín con proyecto de vida: una casa con alma y futuro.

En el corazón de uno de los pueblos con más historia y autenticidad de Mallorca, se encuentra esta casa de pueblo con carácter, ideal para quienes sueñan con una vivienda singular y con personalidad. Una propiedad que aúna tradición, potencial y una oportunidad única de crear un hogar moderno, cómodo y lleno de luz.

Actualmente, la vivienda se encuentra en obras con un proyecto de reforma integral ya redactado y visado por arquitectos técnicos colegiados, respetando su valor histórico (catalogada con grado de protección B2) y adaptándola a un estilo de vida contemporáneo. Una fusión perfecta entre el encanto de lo antiguo y el confort de lo nuevo.

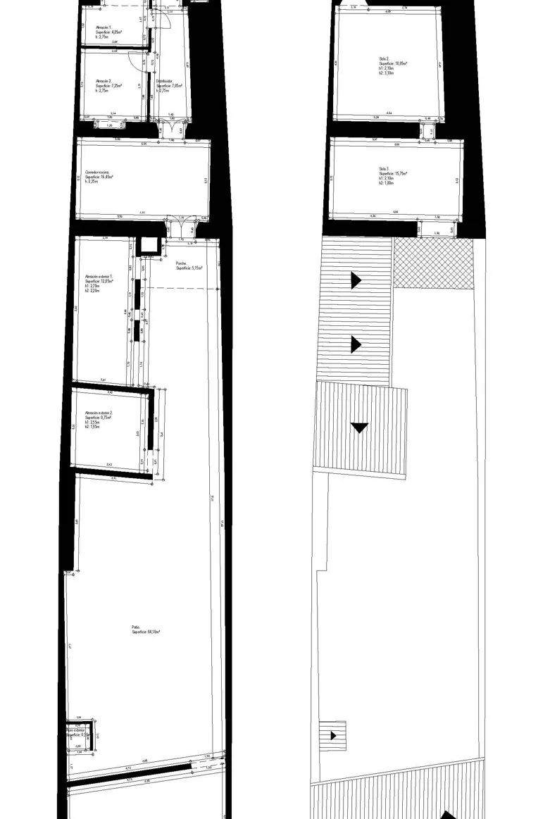
La reforma contempla en planta baja una acogedora zona de estar, comedor, cocina abierta, un baño completo, despensa, lavadero independiente, y acceso a una zona exterior con patio, terraza elevada y barbacoa. En la planta superior se distribuyen dos dormitorios dobles, un segundo baño completo y una amplia zona de paso con luz natural, ideal como rincón de lectura o zona de descanso adicional. También habrá una maravillosa piscina privada con zona solarium, para disfrutar de los meses cálidos en verano.

Además, existe la posibilidad de construir un estudio sobre el garaje, lo que añade un valor excepcional, ya sea como espacio de trabajo, habitación de invitados o pequeño apartamento independiente.

Una propiedad con múltiples posibilidades, tanto para vivir como para invertir, en un entorno con encanto y privacidad.

Precio con proyecto de reforma: 320.000 euros Precio durante la ejecución de la reforma: 476.000 euros

Seguir leyendo

Características

  • Información destacada:
  • ·Ubicación tranquila, cercana a todos los servicios y bien comunicada con el resto de la isla.
  • ·Zona exterior amplia y privada, perfecta para disfrutar del clima mediterráneo.
  • ·Acceso posterior con garaje privado.
  • ·Proyecto técnico completo con licencia en trámite.

07440 MURO (ESP) – NORD

Casa de pueblo totalmente reformada con piscina en el centro de Muro

ca. 218 m² 4 Habitaciones 480.000 EUR

Proveedor
  • Christian W. Czarnetzki
  • Tienda Mallorca - Pollensa
  • C./Cecilio Metelo 67
  • E-07460 Pollensa