Grundstück-mit-Projekt-und-Lizenz-in-Barcares-Alcudia
07400 ALCUDIA (ESP) – NORD
Fabulosa parcela con proyecto y licencia de construcción cerca del mar en Barcares, Alcudia
1.500.000 EUR
Superficie del terreno ca. 31.000 m²
Habitaciones 6
Precio de compra 1.500.000 EUR
Proveedor
  • Christian W. Czarnetzki
  • Tienda Mallorca - Pollensa
  • C./Cecilio Metelo 67
  • E-07460 Pollensa
La aplicación se carga...

Solicitud de información

Rellene el formulario y nuestros expertos inmobiliarios se pondrán en contacto con usted en breve.

Sus datos personales

Su solicitud será tratada confidencialmente.

Visión general

Destacados

Detalles

Número de propiedad

ES245000

Tipo de vivienda

Terreno

Plaza de aparcamiento

3 x Otros

Baños

7

Dormitorios

5

Información energética

En trámite

Descripción

En venta esta impresionante parcela de aprox. 31.000 m² con proyecto de construcción, situada a tan solo 150 metros del mar en Barcares, Alcudia. Se encuentra en una zona residencial exclusiva, lo que asegura privacidad y tranquilidad.

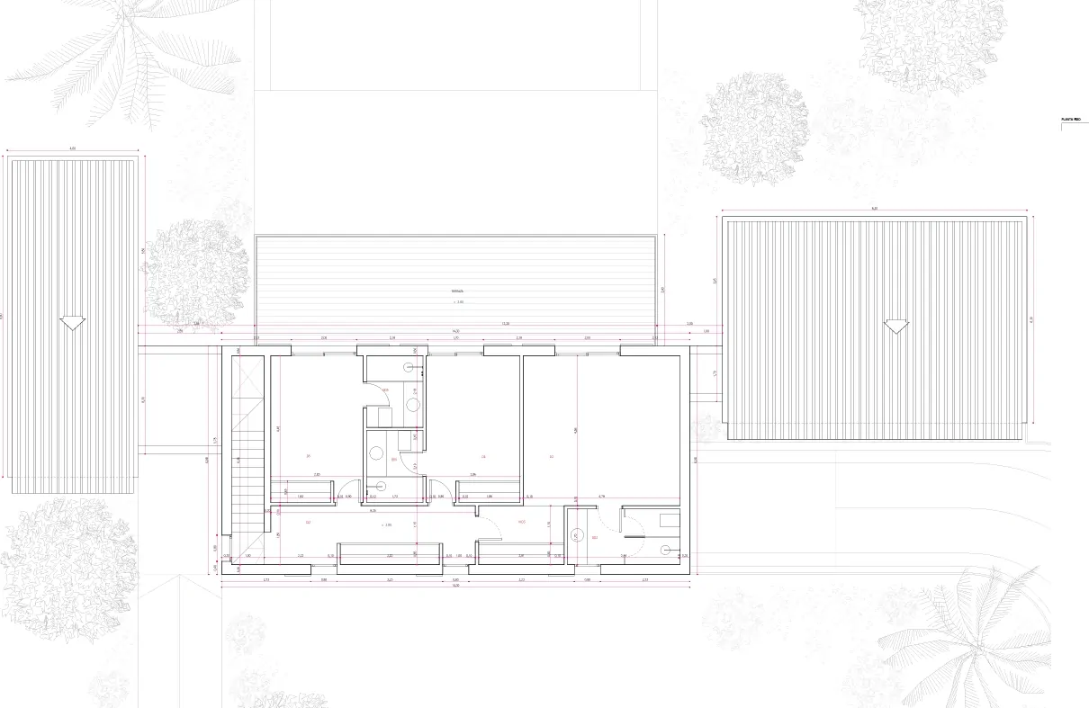
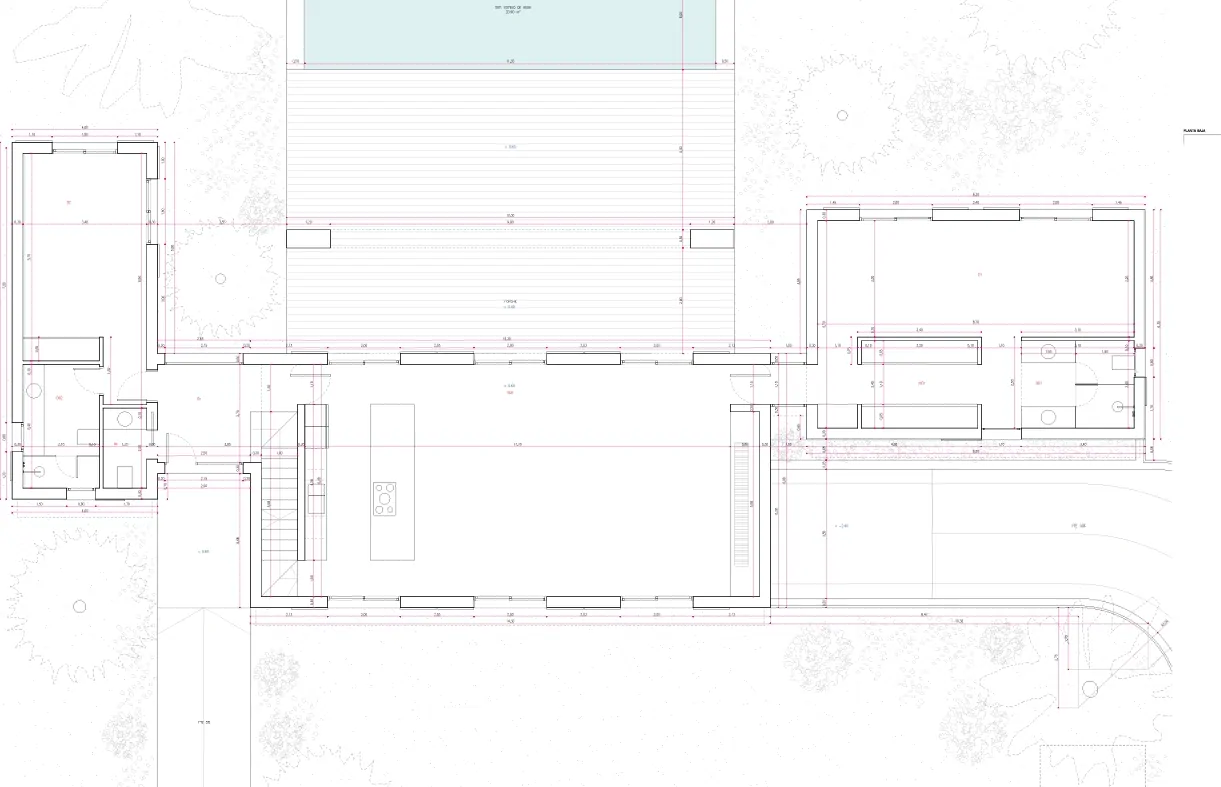
El proyecto contempla una distribución funcional y moderna, diseñada para maximizar el confort. La vivienda dispondrá de seis espaciosas estancias, entre cuales cinco dormitorios con baños en-suite, que garantizan comodidad y conveniencia. Un gran espacio diáfano, donde la cocina estará integrada con el comedor y el salón, creando un confortable entorno, que es perfecto para reuniones familiares o con amigos. Este espacio ha sido diseñado cuidadosamente para ofrecer una experiencia de vida práctica y cómoda, combinando funcionalidad con estética moderna. Las amplias ventanas permitirán la entrada de luz natural, creando un ambiente cálido y acogedor.

Las diversas terrazas ofrecerán áreas adicionales para el descanso, el entretenimiento al aire libre y mostraran preciosas vistas. La piscina es una adición destacada, proporcionando un lugar para refrescarse durante los meses más cálidos y para la recreación familiar.

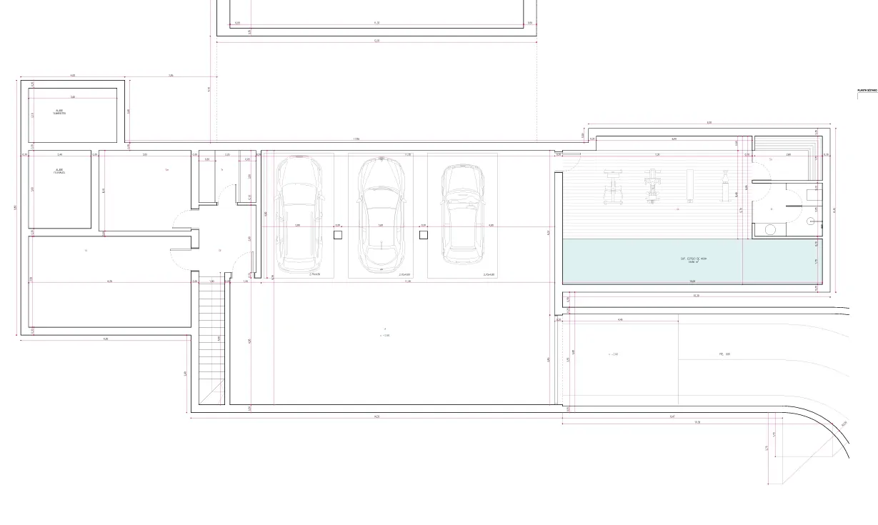
El sótano albergará un garaje de amplias dimensiones, suficiente para varios vehículos. Además, se incluye un gimnasio privado, ideal para mantener un estilo de vida activo sin salir de casa. También está previsto una sala de máquinas, un trastero y una bodega, espacios que incrementan la funcionalidad de la vivienda.

La propiedad ha sido diseñada pensando en cada detalle para ofrecer un ambiente cómodo y seguro. Todas estas características hacen de esta joya una selección única para aquellos que buscan una residencia espaciosa cerca del mar, con todas las comodidades modernas y suficiente espacio para personalizar según sus necesidades.

Se invita a los interesados a ponerse en contacto para obtener más información detallada o para concertar una visita y experimentar de primera mano todo lo que esta propiedad tiene para ofrecer.

Seguir leyendo

07400 ALCUDIA (ESP) – NORD

Fabulosa parcela con proyecto y licencia de construcción cerca del mar en Barcares, Alcudia

ca. 31.000 m² 6 Habitaciones 1.500.000 EUR

Proveedor
  • Christian W. Czarnetzki
  • Tienda Mallorca - Pollensa
  • C./Cecilio Metelo 67
  • E-07460 Pollensa