Lovely renovated one-bedroom apartment with balcony on high floor
20133 MILANO (ITA) – LAMBRATE
Lovely renovated one-bedroom apartment with balcony on high floor
329.000 EUR
Living Space ca. 41 m²
Rooms 2
Purchase Price 329.000 EUR
Provider
  • Christian Weissensteiner
  • Shop Milan
  • Corso Italia 1
  • 20122 Milano
Application is loaded...

Real estate inquiry

Fill out the form and our real estate experts will get back to you shortly.

Your personal data

Your application will be treated confidentially.

Overview

Highlights

Balcony

Details

Property ID

IT262942706

Usable floor space

ca. 50 m²

Bathrooms

1

Year of construction

1950

Bedrooms

1

Commission

Onder voorbehoud van commissie

Energy information

Scale

E

Energy efficiency class

E

Final energy demand

228,59 kWh/m²a

Energy Certificate

Energy demand certificate

Energy certificate valid until

08.02.2033

Year of construction according to energy certificate

1940

Type of heating

Central heating

Description

OPEN HOUSE! WHEN. ---> SATURDAY, FEBRUARY 14, 2026 WHAT TIME? ----> FROM 10:30 A.M. ONWARD WHERE. ----> VIA VALVASSORI PERONI 57, MILAN (LAMBRATE); IT IS PREFERABLE TO BOOK A SLOT ABOUT THE TIME SLOT, TO BETTER MANAGE THE VISITS.

----------------------------------------------------------------------------------------------------------------------

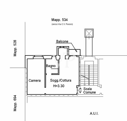
In the heart of Lambrate, a few steps from Città Studi, we offer for sale a completely and tastefully renovated two-room apartment of about 50 sqm, located on the fourth and penultimate floor of an elegant 1960s building with elevator. The property enjoys an EAST exposure, completely internal, which guarantees silence and tranquility. The apartment consists of: entrance on bright living room with open kitchen, laundry room and balcony overlooking the condominium courtyard, a comfortable double bedroom, plus windowed bathroom equipped with shower box. The property was renovated in 2024, with interventions also on the plumbing and electrical part, and is equipped with soundproofing, making it ready to live in. Heating is central with radiators and condominium expenses amount to about € 230.00 per month. This solution is ideal both as a main residence and as an investment, thanks to the strategic area, well served by public transport, stores and services. An opportunity not to be missed!

Read more

Location

Description

Via Carlo Valvassori Peroni is located in one of the most dynamic and sought-after areas of East Milan, between Lambrate and Città Studi, appreciated for its residential character well integrated with services and connections. The neighborhood offers everything necessary for daily life: neighborhood businesses, supermarkets, pharmacies, schools, gyms and clubs, in addition to its proximity to the university campus (about 1 km), which contributes to making the area lively and attractive also from an investment perspective. Connections are efficient thanks to the presence of numerous means of surface transportation and the Milan Lambrate train and subway station (about 500 meters), which allows rapid travel to the city center and the main urban and suburban routes. A well-serviced, practical and continuously enhancing context, ideal both for those looking for a convenient housing solution and for those who want a property with excellent profitability prospects.

Read more

Features

  • Air conditioning with 2 splits
  • Home automation system
  • Total renovation 2024
  • Induction cooktop
  • Gas water heater
  • Parquet
  • Fixtures from 2019
  • Possibility to use a condominium cellar at a cost of 400.00€ per year

Floor Plan

Planimetria catastale
Planimetria

20133 MILANO (ITA) – LAMBRATE

Lovely renovated one-bedroom apartment with balcony on high floor

ca. 41 m² 2 Rooms 329.000 EUR

Provider
  • Christian Weissensteiner
  • Shop Milan
  • Corso Italia 1
  • 20122 Milano