Titelbild
48529 NORDHORN
Denkmal trifft Vision – einzigartige Kirche in Nordhorn mit vielfältigem Potenzial
950.000 EUR
Grundstück ca. 4.770 m²
Kaufpreis 950.000 EUR
Anbieter
  • Georg H. Pauling
  • Shop Grafschaft Bentheim – Nordhorn
  • Bentheimer Straße 9
  • 48529 Nordhorn
Bewerbung wird geladen...

Immobilienanfrage

Füllen Sie das Formular aus und unsere Immobilien-Experten melden sich in Kürze bei Ihnen.

Ihre persönlichen Daten

Ihre Bewerbung wird vertraulich behandelt.

Übersicht

Highlights

Details

Objektnummer

25242051

Haustyp

Sonstige

Baujahr

1951

Provision

Käuferprovision beträgt 5,95 % (inkl. MwSt.) des beurkundeten Kaufpreises

Energieinformationen

Energieausweis

laut Gesetz nicht erforderlich

Beschreibung

Zum Verkauf steht eine einzigartige Immobilie in Nordhorn – eine denkmalgeschützte Kirche mit beeindruckender Architektur und einer Grundstücksfläche von rund 4.770 m². Dieses außergewöhnliche Gebäude bietet eine seltene Gelegenheit, historischen Charme mit modernen Nutzungskonzepten zu verbinden. Die im Jahr 1951 errichtete Kirche befindet sich in einem gepflegten Zustand und ist bezugsfertig. Das Gebäude überzeugt durch seine massive Bauweise, seine hellen, großzügigen Räume und seine besondere Atmosphäre, die sofort inspiriert. Ob als Kultur- oder Veranstaltungsort, Atelier, Ausstellungsfläche, Büro- oder Seminarhaus, oder als visionäres Wohnprojekt – die Möglichkeiten sind vielfältig. Dank der offenen Raumstruktur und der hohen Decken bietet die ehemalige Kirche eine außergewöhnliche Bühne für kreative und repräsentative Ideen. Das weitläufige Grundstück eröffnet zusätzliche Perspektiven: Ob als Gartenanlage, Freifläche für Veranstaltungen oder zur Erweiterung bestehender Strukturen – hier ist Raum für Entwicklung, Gestaltung und Visionen. Die Lage in einer ruhigen, gewachsenen Umgebung kombiniert Privatsphäre mit einer guten verkehrlichen Anbindung und der Nähe zu allen wichtigen Einrichtungen des täglichen Bedarfs. Trotz der zentralen Erreichbarkeit bleibt das Anwesen angenehm abgeschirmt vom städtischen Trubel. Diese Liegenschaft richtet sich an Menschen mit Ideen – an Entwickler, Künstler, Vereine oder Institutionen, die das Potenzial dieses besonderen Ortes erkennen und ihm neues Leben einhauchen möchten. Lassen Sie sich bei einer Besichtigung von der besonderen Atmosphäre dieser ehemaligen Kirche inspirieren und entdecken Sie die Möglichkeiten, die in diesem außergewöhnlichen Objekt stecken.

Weiterlesen

Lage

Nahversorgung
Gastronomie
3,8
 / 5
Gesundheit
3,9
 / 5
Freizeit
3,5
 / 5
Familie
Einkaufen
Geräusche
icon Sehen Sie diese und weitere Daten mit Ihrem Kundenkonto – kostenlos
Melden Sie sich an oder registrieren Sie sich in wenigen Minuten, um alle Angaben sehen zu können.
icon Weitere Angaben freischalten
Beschreibung

Nordhorn ist die Kreisstadt und mit ca. 57.000 Einwohnern die größte Stadt des Landkreises Grafschaft Bentheim. Die Stadt liegt im äußersten Südwesten von Niedersachsens, ist eine Mitgliedsgemeinde der Euregio und grenzt direkt an die Niederlande. Sie wird auch Wasserstadt genannt, da sie von mehreren Kanälen durchzogen ist und das Stadtzentrum von zwei Armen der Vechte umschlossen ist. Die nächstgrößere Stadt auf niederländischer Seite ist Enschede, ca. 33 km südwestlich von Nordhorn. Auf deutscher Seite sind Münster und Osnabrück die nächstgelegenen größeren Städte. Diese Kirche befindet sich in beliebter Wohnlage von Nordhorn. Die B213 sowie die B403 sind nur ca. 5 Autominuten entfernt, sodass die umliegenden Ortschaften sowie die A30 und A31 gut zu erreichen sind. Das Stadtzentrum liegt nur wenige Fahrrad-Minuten entfernt und bietet als Mittelzentrum eine gute Infrastruktur. Alle Einrichtungen des täglichen Bedarfs wie Banken, Ärzte, Apotheken und einen Lebensmittelmarkt sind in der näheren Umgebung dieser Kirche vorhanden und in wenigen Minuten mit dem Fahrrad zu erreichen.

Weiterlesen

Finanzierung

Finden Sie mit VON POLL FINANCE die richtige Immobilienfinanzierung.
Baufinanzierung unverbindlich anfragen. Über 700 Darlehensgeber im Vergleich.
Finanzierung berechnen

Sonstiges

GELDWÄSCHE: Als Immobilienmaklerunternehmen ist die von Poll Immobilien GmbH nach § 2 Abs. 1 Nr. 14 und § 11 Abs. 1, 2 Geldwäschegesetz (GwG) dazu verpflichtet, bei der Begründung einer Geschäftsbeziehung die Identität des Vertragspartners festzustellen und zu überprüfen, bzw. sobald ein ernsthaftes Interesse an der Durchführung des Immobilienkaufvertrages besteht. Hierzu ist es erforderlich, dass wir nach § 11 Abs. 4 GwG die relevanten Daten Ihres Personalausweises festhalten (wenn Sie als natürliche Person handeln) – beispielsweise mittels einer Kopie. Bei einer juristischen Person benötigen wir eine Kopie des Handelsregisterauszugs, aus welchem der wirtschaftlich Berechtigte hervorgeht. Das Geldwäschegesetz sieht vor, dass der Makler die Kopien bzw. Unterlagen fünf Jahre aufbewahren muss. Als unser Vertragspartner haben Sie auch eine Mitwirkungspflicht nach § 11 Abs. 6 GwG.

HAFTUNG: Wir weisen darauf hin, dass die von uns weitergegebenen Objektinformationen, Unterlagen, Pläne etc. vom Verkäufer bzw. Vermieter stammen. Eine Haftung für die Richtigkeit oder Vollständigkeit der Angaben übernehmen wir daher nicht. Es obliegt daher unseren Kunden, die darin enthaltenen Objektinformationen und Angaben auf ihre Richtigkeit hin zu überprüfen. Alle Immobilienangebote sind freibleibend und vorbehaltlich Irrtümer, Zwischenverkauf- und Vermietung oder sonstiger Zwischenverwertung.

UNSER SERVICE FÜR SIE ALS EIGENTÜMER: Planen Sie den Verkauf oder die Vermietung Ihrer Immobilie, so ist es für Sie wichtig, deren Marktwert zu kennen. Lassen Sie kostenfrei und unverbindlich den aktuellen Wert Ihrer Immobilie professionell durch einen unserer Immobilienspezialisten einschätzen. Unser bundesweites und internationales Netzwerk ermöglicht es uns, Verkäufer bzw. Vermieter und Interessenten bestmöglich zusammenzuführen.

Weiterlesen

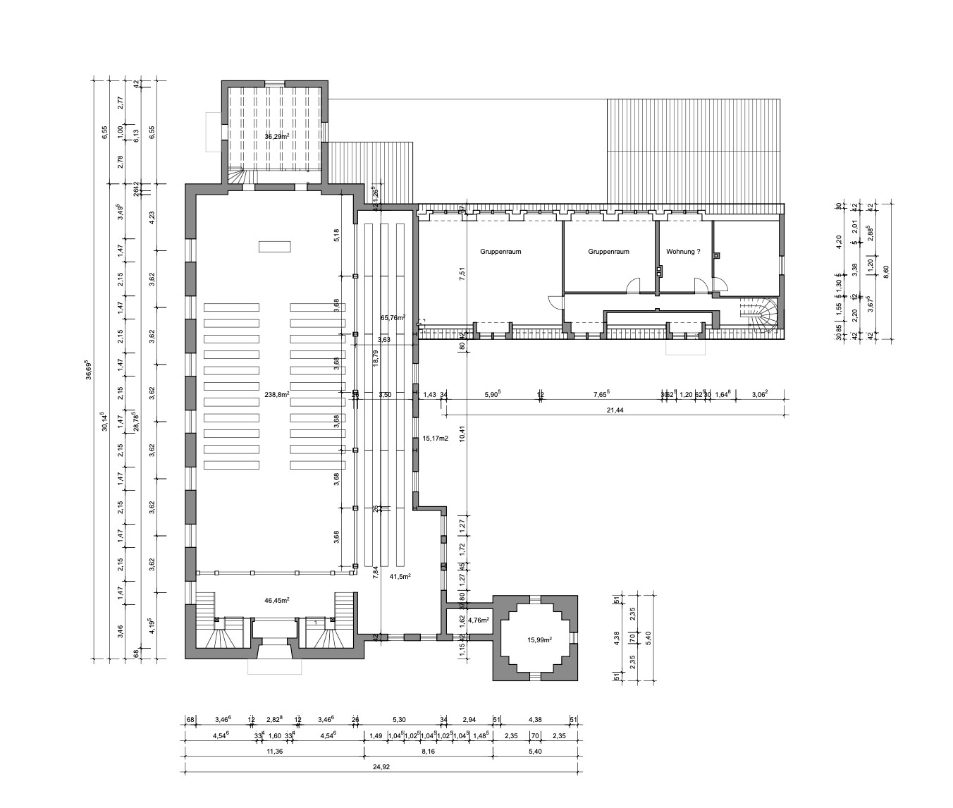
Grundriss

Kellergeschoss
Erdgeschoss
Dachgeschoss

48529 NORDHORN

Denkmal trifft Vision – einzigartige Kirche in Nordhorn mit vielfältigem Potenzial

ca. 4.770 m² 950.000 EUR

Anbieter
  • Georg H. Pauling
  • Shop Grafschaft Bentheim – Nordhorn
  • Bentheimer Straße 9
  • 48529 Nordhorn