Titelbild
23774 HEILIGENHAFEN
Ankommen am Meer – energieeffizientes Wohnen mit Freiraum und Küstennähe
925.000 EUR
Wohnfläche ca. 123,75 m²
Grundstück ca. 999 m²
Zimmer 5
Kaufpreis 925.000 EUR
Anbieter
  • Nico Pfützenreuter
  • Shop Norderstedt
  • Ochsenzoller Straße 211
  • 22848 Norderstedt
Bewerbung wird geladen...

Immobilienanfrage

Füllen Sie das Formular aus und unsere Immobilien-Experten melden sich in Kürze bei Ihnen.

Ihre persönlichen Daten

Ihre Bewerbung wird vertraulich behandelt.

Übersicht

Highlights

Terrasse
Gäste-WC
Garten/-mitbenutzung
Einbauküche

Details

Objektnummer

26157005

Haustyp

Reihenendhaus

Bauweise

Massiv

Stellplatz

1 x Freiplatz

Zustand der Immobilie

projektiert

Badezimmer

1

Schlafzimmer

4

Provision

Käuferprovision beträgt 3,57 % (inkl. MwSt.) des beurkundeten Kaufpreises

Energieinformationen

Befeuerung

Luft/Wasser-Wärmepumpe

Beschreibung

URBANER LUXUS MIT MARITIMEM FLAIR- Stilvolles Reihenendhaus mit Garten, Licht und architektonischer Ruhe

Dieses hochwertig geplante Reihenendhaus in Heiligenhafen verbindet großzügige Wohnflächen, moderne Architektur und ein harmonisches Raumgefühl auf ca. 124m² Wohnfläche. Als Endhaus profitiert diese Einheit von zusätzlicher Belichtung, einem erweiterten Außenbereich und einem besonders angenehmen Wohnambiente, ideal für Familien oder Käufer, die ein wertstabiles, energieeffizientes Zuhause an der Ostseeküste suchen.

Im Erdgeschoss ist ein offen gestalteter Wohn-, Ess- und Kochbereich mit ca. 48m² vorgesehen, der durch seine Großzügigkeit und Helligkeit eine einladende Wohnatmosphäre schaffen wird. Große Fensterflächen sind geplant und sorgen für viel Tageslicht sowie für eine harmonische Verbindung zwischen dem Innenraum und der angrenzenden Terrasse, deren anteilige Fläche in die Wohnfläche einfließt. Der durchdachte Grundriss ermöglicht die Umsetzung einer modernen Einbauküche nach individuellen Vorstellungen und bietet ideale Voraussetzungen für gesellige Abende oder entspannte Stunden mit Blick ins Grüne. Ergänzt wird das Erdgeschoss durch eine geplante Diele, einen Hauswirtschafts- bzw. Abstellbereich sowie ein Gäste-WC.

PRIVATE RÜCKZUGSRÄUME IM OBERGESCHOSS

Im Obergeschoss sind zwei nahezu identische, großzügig geschnittene Schlafzimmer geplant. Diese sind flexibel nutzbar und eignen sich ideal als Kinderzimmer, Homeoffice oder persönliche Rückzugsorte. Dank der durchdachten Planung lassen sich die Räume individuell an unterschiedliche Lebensphasen und Bedürfnisse anpassen. Ergänzt wird die Etage durch ein modern konzipiertes Badezimmer, das ausreichend Raum für eine hochwertige Ausstattung bietet, beispielsweise mit bodengleicher Dusche. Hier entsteht ein privater Rückzugsbereich mit ruhiger, wohnlicher Atmosphäre.

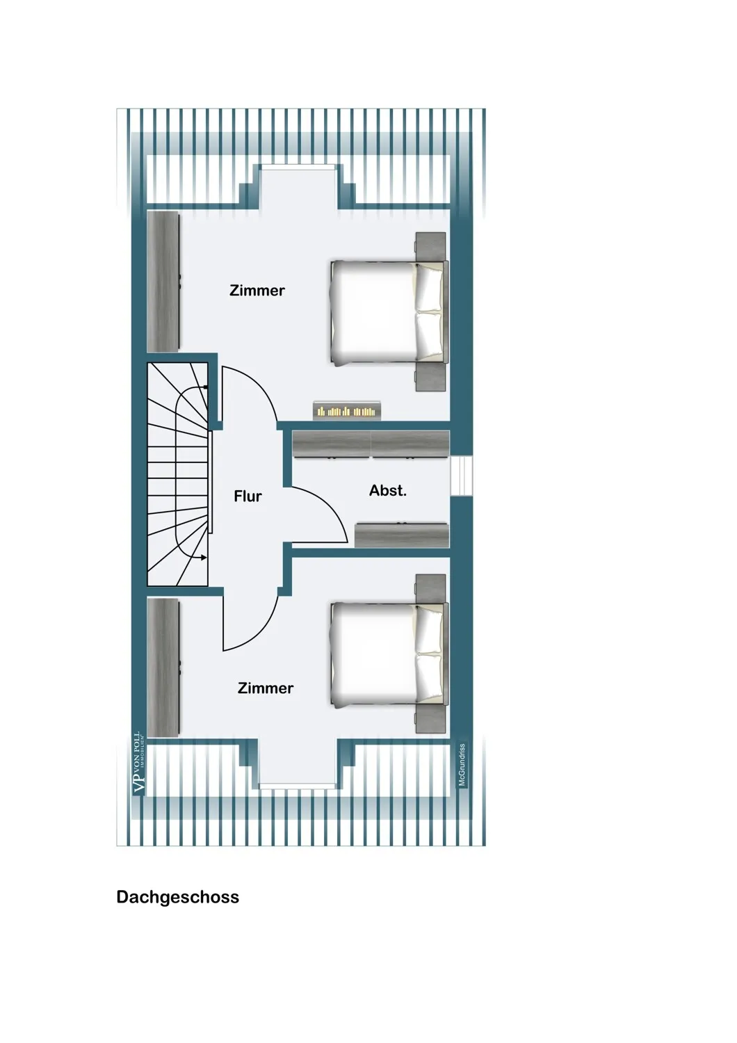
FLEXIBLE NUTZUNG IM DACHGESCHOSS

Das Dachgeschoss ist als Erweiterung des Wohnkonzepts um zwei weitere Zimmer geplant und bietet vielseitige Nutzungsmöglichkeiten. Ob als Gästezimmer, Atelier, Arbeitsbereich oder privater Rückzugsort – die Räume eröffnen zahlreiche individuelle Gestaltungsoptionen. Ein separat vorgesehener Abstellraum ergänzt diese Ebene und sorgt auch hier für funktionale Abläufe sowie zusätzlichen Stauraum im Alltag.

INDIVIDUALITÄT & GESTALTUNGSSPIELRAUM

Ein besonderes Merkmal dieses Projekts ist der aktuelle Planungs- und Umsetzungsstand. Viele Ausstattungsdetails, Materialien und Raumlösungen können noch in enger Abstimmung mit dem Bauträger individuell gestaltet werden. So entsteht ein Zuhause, das nicht nur hochwertig, sondern auch persönlich ist, abgestimmt auf Ihre Wünsche und Ihren Lebensstil.

AUSTATTUNG & VORTEILE AUF EINEN BLICK -Energetisch sanierter und erweiterter Neubau -Ca. 124m² Wohnfläche auf drei Ebenen -Offener Wohn-/Ess-/Kochbereich mit Terrassenzugang -Moderne Einbauküche nach individueller Planung -Großzügige, flexibel nutzbare Schlaf- und Arbeitsräume -Hochwertiges Badezimmer mit bodengleicher Dusche (geplant) -Separates Gäste-WC -Parkettböden, Hamburger Leisten, Smart-Home-Vorbereitung (geplant) -Eigener Gartenbereich -Ruhige, zentrale Wohnlage in Heiligenhafen

FAZIT Dieses exklusive Reihenendhaus in Heiligenhafen vereint moderne Architektur, hochwertige Planung und individuelle Gestaltungsmöglichkeiten zu einem Zuhause mit besonderem Anspruch. Die zentrale Lage, das durchdachte Raumkonzept und die hochwertige Ausrichtung machen diese Immobilie zu einer idealen Wahl für Eigennutzer, die urbanen Komfort mit maritimem Lebensgefühl verbinden möchten.

Gerne lassen wir Ihnen weitere Informationen zukommen oder nehmen Sie unverbindlich in unsere Vormerkliste auf.

Weiterlesen

Lage

Nahversorgung
Gastronomie
5
 / 5
Gesundheit
5
 / 5
Freizeit
1,5
 / 5
Familie
Einkaufen
Geräusche
icon Sehen Sie diese und weitere Daten mit Ihrem Kundenkonto – kostenlos
Melden Sie sich an oder registrieren Sie sich in wenigen Minuten, um alle Angaben sehen zu können.
icon Weitere Angaben freischalten
Beschreibung

WILLKOMMEN IN HEILIGENHAFEN – MARITIM, ZENTRAL UND OSTSEENAHE LEBENSQUALITÄT

Lebendig. Küstennah. Bestens angebunden. Die Immobilie befindet sich in zentraler Lage des beliebten Ostseebades Heiligenhafen. Eingebettet in eine gewachsene, urbane Umgebung mit maritimem Charakter verbindet dieser Standort kurze Wege im Alltag mit der besonderen Lebensqualität der Ostseeküste. Hier treffen Stadtleben, Hafenflair und Erholung auf harmonische Weise zusammen.

Die Mikrolage überzeugt durch ihre zentrale, gut erreichbare Position innerhalb der Stadt. Das direkte Umfeld ist geprägt von gepflegten Wohn- und Geschäftshäusern, charmanten Straßenzügen und einer lebendigen Nachbarschaft. Einkaufsmöglichkeiten für den täglichen Bedarf, Bäckereien, Cafés, Restaurants sowie Ärzte und Apotheken befinden sich in unmittelbarer Nähe und sind größtenteils fußläufig erreichbar. Schulen, Kindergärten und weitere öffentliche Einrichtungen sind ebenfalls schnell zugänglich und unterstreichen die hohe Alltagstauglichkeit dieser Lage.

Besonders hervorzuheben ist die Nähe zum Hafen, zur Marina und zur historischen Innenstadt, die in wenigen Minuten erreicht werden können. Die Promenade, der Strandbereich sowie die bekannte Seebrücke bieten vielfältige Freizeit- und Erholungsmöglichkeiten und verleihen der Lage eine besondere Aufenthaltsqualität – ideal für Spaziergänge, sportliche Aktivitäten oder entspannte Stunden am Wasser.

Die Verkehrsanbindung ist sowohl innerörtlich als auch überregional sehr komfortabel. Bushaltestellen befinden sich in kurzer Distanz und ermöglichen eine gute Anbindung innerhalb des Stadtgebiets sowie in die umliegenden Regionen. Mit dem Auto ist die A1 schnell erreicht, über die Lübeck, Hamburg und die Insel Fehmarn bequem angebunden sind. Der nächstgelegene Bahnhof befindet sich in Oldenburg in Holstein und bietet regelmäßige Zugverbindungen in Richtung Lübeck und Hamburg.

Heiligenhafen selbst gilt als eines der attraktivsten Ostseebäder Schleswig-Holsteins. Die Stadt verbindet maritime Tradition mit moderner Infrastruktur, wirtschaftlicher Stabilität und hoher touristischer Nachfrage. Die geplante Fehmarnbelt-Querung stärkt die langfristige Bedeutung des Standorts zusätzlich. Ob als Wohnort, Zweitwohnsitz oder Kapitalanlage – Heiligenhafen bietet eine ausgezeichnete Mischung aus Wertstabilität, Lebensqualität und Zukunftsperspektive.

Weiterlesen

Finanzierung

Sie interessieren sich für eine Baufinanzierung? Finden Sie mit VON POLL FINANCE* die richtige Immobilienfinanzierung.

Gesamtkosten: 1.036.648 EUR
Kaufpreis
925.000 EUR
Grunderwerbsteuer
60.125 EUR
6,50 %
Maklerprovision
33.023 EUR
3,57 %
Notarkosten
13.875 EUR
1,50 %
Grundbucheintrag
4.625 EUR
0,50 %
Passendes Finanzierungsangebot:
Eigenkapital: 259.162 EUR
Nettodarlehen: 776.000 EUR
Sollzinsbindung: 10 Jahre; Tilgungsrate: 1,18 %
Ihr Finanzierungsbeispiel:
Sollzins: 3,40 %
Effektivzins: 3,47 %

Basierend auf einem Nettoeinkommen von 7.289 EUR und einer Eigenkapitalquote von 25 %.

Darlehensanbieter: Commerzbank

Baufinanzierung unverbindlich anfragen. Über 700 Darlehensgeber im Vergleich. Jetzt Ihren persönlichen Finanzierungsexperten kontaktieren.
Finanzierung berechnen

Ausstattung

  • Zeitgemäße Architektur und hochwertige Bauweise
  • Energetisch saniert und neuwertig
  • Ca. 124m² Wohnfläche verteilt auf drei Ebenen
  • Offener Wohn-, Ess- und Kochbereich
  • Cleverer, lichtdurchfluteter Grundriss
  • Terrasse mit Gartenanteil
  • Moderne Einbauküche
  • Praktische Diele im Eingangsbereich
  • Hauswirtschafts-/Abstellraum im Erdgeschoss
  • Separates Gäste-WC
  • zwei nahezu identische, großzügige Schlafzimmer im Obergeschoss
  • Modernes Badezimmer und bodengleiche Dusche
  • zwei weitere flexibel nutzbare Zimmer im Dachgeschoss
  • Hochwertige Ausstattung vorgesehen (z. B. Parkett, Hamburger Leisten)
  • Smart-Home-System
  • Eigener Gartenbereich
  • Zeitgemäße, energieeffiziente Bauweise
  • Pkw-Stellplatz
  • Gestaltungsfreiheit bei Materialien, Farben und Ausstattung

Sonstiges

GELDWÄSCHE: Als Immobilienmaklerunternehmen ist die von Poll Immobilien GmbH nach § 2 Abs. 1 Nr. 14 und § 11 Abs. 1, 2 Geldwäschegesetz (GwG) dazu verpflichtet, bei der Begründung einer Geschäftsbeziehung die Identität des Vertragspartners festzustellen und zu überprüfen, bzw. sobald ein ernsthaftes Interesse an der Durchführung des Immobilienkaufvertrages besteht. Hierzu ist es erforderlich, dass wir nach § 11 Abs. 4 GwG die relevanten Daten Ihres Personalausweises festhalten (wenn Sie als natürliche Person handeln) – beispielsweise mittels einer Kopie. Bei einer juristischen Person benötigen wir eine Kopie des Handelsregisterauszugs, aus welchem der wirtschaftlich Berechtigte hervorgeht. Das Geldwäschegesetz sieht vor, dass der Makler die Kopien bzw. Unterlagen fünf Jahre aufbewahren muss. Als unser Vertragspartner haben Sie auch eine Mitwirkungspflicht nach § 11 Abs. 6 GwG.

HAFTUNG: Wir weisen darauf hin, dass die von uns weitergegebenen Objektinformationen, Unterlagen, Pläne etc. vom Verkäufer bzw. Vermieter stammen. Eine Haftung für die Richtigkeit oder Vollständigkeit der Angaben übernehmen wir daher nicht. Es obliegt daher unseren Kunden, die darin enthaltenen Objektinformationen und Angaben auf ihre Richtigkeit hin zu überprüfen. Alle Immobilienangebote sind freibleibend und vorbehaltlich Irrtümer, Zwischenverkauf- und Vermietung oder sonstiger Zwischenverwertung.

UNSER SERVICE FÜR SIE ALS EIGENTÜMER: Planen Sie den Verkauf oder die Vermietung Ihrer Immobilie, so ist es für Sie wichtig, deren Marktwert zu kennen. Lassen Sie kostenfrei und unverbindlich den aktuellen Wert Ihrer Immobilie professionell durch einen unserer Immobilienspezialisten einschätzen. Unser bundesweites und internationales Netzwerk ermöglicht es uns, Verkäufer bzw. Vermieter und Interessenten bestmöglich zusammenzuführen.

Weiterlesen

23774 HEILIGENHAFEN

Ankommen am Meer – energieeffizientes Wohnen mit Freiraum und Küstennähe

ca. 123,75 m² 5 Zimmer 925.000 EUR

Anbieter
  • Nico Pfützenreuter
  • Shop Norderstedt
  • Ochsenzoller Straße 211
  • 22848 Norderstedt