Titelbild
76534 BADEN-BADEN
Wohnen am Klosterplatz 4 luxuriöse und exklusive Eigentumswohnungen entstehen
6.038.440 EUR
Wohnfläche ca. 860 m²
Grundstück ca. 977 m²
Zimmer 20
Kaufpreis 6.038.440 EUR
Anbieter
  • Rainer Harter
  • Shop Baden-Baden
  • Lichtentaler Straße 73
  • 76530 Baden-Baden
Bewerbung wird geladen...

Immobilienanfrage

Füllen Sie das Formular aus und unsere Immobilien-Experten melden sich in Kürze bei Ihnen.

Ihre persönlichen Daten

Ihre Bewerbung wird vertraulich behandelt.

Übersicht

Highlights

Terrasse
Gäste-WC
Garten/-mitbenutzung

Details

Objektnummer

19011008

Haustyp

Mehrfamilienhaus

Bauweise

Massiv

Stellplatz

4 x Tiefgarage, 25000 EUR (Verkauf)

Zustand der Immobilie

Erstbezug

Baujahr

2021

Provision

keine Käuferprovision

Energieinformationen

Skala

A

Energieeffizienzklasse

A

Endenergiebedarf

40,00 kWh/m²a

Energieausweis

Bedarfsausweis

Energieausweis gültig bis

19.08.2030

Baujahr laut Energieausweis

2021

Wesentlicher Energieträger

Gas

Befeuerung

Gas

Heizungsart

Zentralheizung

Beschreibung

Freuen Sie sich auf Wohnungen, die in Qualität und Lage einzigartig bleiben!

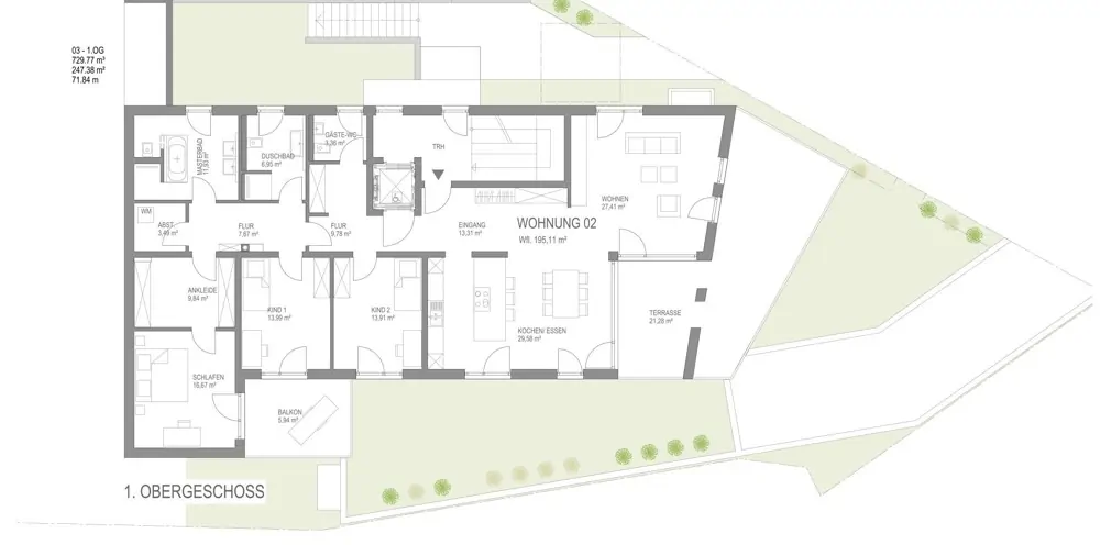
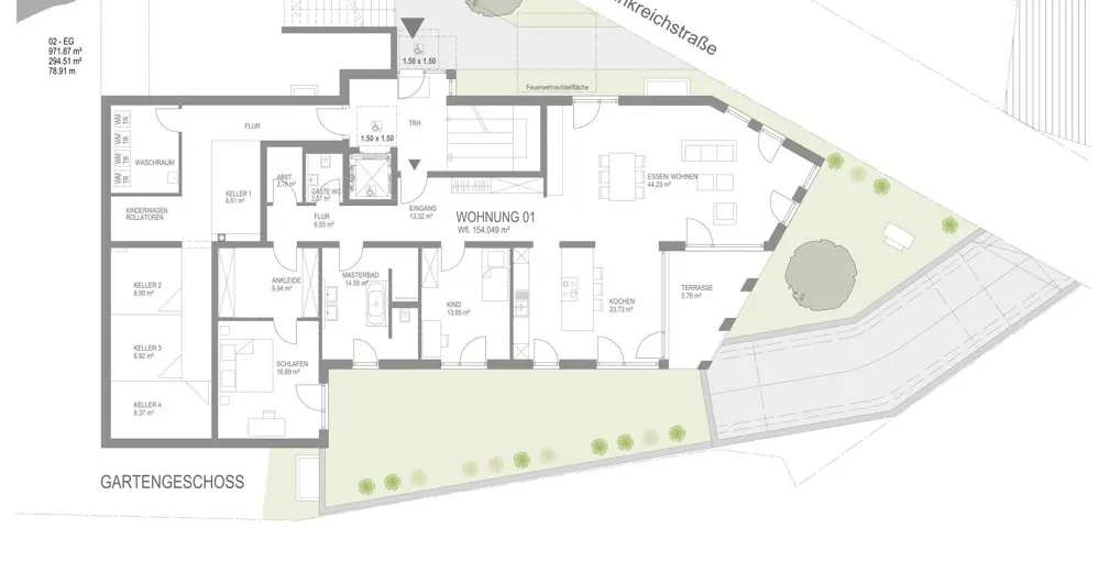
In unverbaubarer Lage, an der Oos steht dieses neu erbaute Wohnjuwel. Nur einen Steinwurf entfernt liegt die weltberühmte Lichtentaler Allee und der Klosterplatz mit dem bekannten Kloster Lichtenthal. Baden-Baden-Lichtentals "Neue Mitte" und die Einkaufsstraße ist zu Fuß zu erreichen. Wenige Schritte weiter führen direkt in die Natur zu Streuobstwiesen und dem Schwarzwald. In modernster Technik und Bauweise entstehen 4 hochwertige Wohnungen. Das großzügige Treppenhaus gewährleistet Individualität und Ruhe. Durch atmungsaktive Poroton-Ziegel entsteht ein Wohlfühlklima in der bestmöglichen Energie-Effizienz A.

Großzügige Wohnbereiche in hochwertigem Finish, Parkettböden, Fußbodenheizung, attraktive Bäder im exklusiven Design u.v.m. Bodentiefe Fenster und breite Glasfronten holen Licht und Sonne in die Räume. Von Balkon, Terrasse oder Loggia in Südostlage fällt der Blick weit über den Klosterplatz in Richtung Merkurberg.

Weitere Details: Video-Gegensprechanlage, Tiefgarage, 1 Wohnung in barrierefreier Ausführung, Lift, Gasbrennwert-Therme mit Solarunterstützung, Designbäder, hochwertige Holzrahmenfenster mit 3-fach Verglasung, funkgesteuerte Rollläden, sichere Wohnungseingangstüren mit Schalldämmung, Außenwasseranschluss für Begrünung, eigener Gartenanteil in EG-Wohnungen, extrabreiter Garagenplatz in der Tiefgarage gegen Aufpreis.

Vereinbaren Sie jetzt Ihren persönlichen Termin, wir freuen uns auf Sie.

Weiterlesen

Lage

Nahversorgung
Gastronomie
4,4
 / 5
Gesundheit
3,9
 / 5
Freizeit
4,4
 / 5
Familie
Einkaufen
Geräusche
icon Sehen Sie diese und weitere Daten mit Ihrem Kundenkonto – kostenlos
Melden Sie sich an oder registrieren Sie sich in wenigen Minuten, um alle Angaben sehen zu können.
icon Weitere Angaben freischalten
Beschreibung

Baden-Baden liegt im Südwesten Deutschlands und ist weltweit bekannt für seine Thermalheilbäder, als ansehnlicher Urlaubsort, sowie als Medien-, Kunst und internationale Festspielstadt.

Nirgendwo sonst findet man so viel Flair und exklusive Lebensart im angenehmen Rahmen einer grünen, überschaubaren Stadt mit dem wohlerhaltenen Charme der Belle Epoche. Ob Wellness, Kultur, Sport, oder Gastronomie, die Angebote sind genau so vielfältig wie erstklassig. Die Stadt, auch bekannt als Sommerhauptstadt Europas, wurde für die UNESCO-Liste des Weltkulturerbes vorgeschlagen und normiert.

Die hier angebotene Immobilie befindet sich in bester und stadtnaher Lage von Baden-Baden und liegt unweit vom Kurhaus und der Lichtentaler Allee. Zum Festspielhaus benötigen Sie von hier aus nur wenige Gehminuten. Die Innenstadt und alle Läden des täglichen Bedarfs sind fußläufig zu erreichen.

Weiterlesen

Finanzierung

Sie interessieren sich für eine Baufinanzierung? Finden Sie mit VON POLL FINANCE* die richtige Immobilienfinanzierung.

Gesamtkosten: 6.676.703 EUR
Kaufpreis
6.038.440 EUR
Grunderwerbsteuer
301.922 EUR
5,00%
Maklerprovision
215.572 EUR
3,57%
Notarkosten
90.577 EUR
1,50%
Grundbucheintrag
30.192 EUR
0,50%
Passendes Finanzierungsangebot:
Eigenkapital: 1.669.176 EUR
Nettodarlehen: 4.996.000 EUR
Sollzinsbindung: 10 Jahre; Tilgungsrate: 1,16 %
Ihr Finanzierungsbeispiel:
Monatsrate:
19.526 EUR
pencil-edit-monthly
Sollzins: 3,53 %
Effektivzins: 3,61 %

Basierend auf einem Nettoeinkommen von 46.946 EUR und einer Eigenkapitalquote von 25 %

Darlehensanbieter: DKB

Baufinanzierung unverbindlich anfragen. Über 700 Darlehensgeber im Vergleich. Jetzt Ihren persönlichen Finanzierungsexperten kontaktieren.
Finanzierung berechnen

Ausstattung

  • Hochwertige Ausstattung
  • Energieeffizienz KFW 55 - Massivhaus nach EnEV 2016

Sonstiges

Es liegt ein Energiebedarfsausweis vor. Dieser ist gültig bis 19.8.2030. Endenergiebedarf beträgt 40.00 kwh/(m²*a). Wesentlicher Energieträger der Heizung ist Gas. Das Baujahr des Objekts lt. Energieausweis ist 2021. Die Energieeffizienzklasse ist A.

GELDWÄSCHE: Als Immobilienmaklerunternehmen ist die von Poll Immobilien GmbH nach § 2 Abs. 1 Nr. 14 und § 11 Abs. 1, 2 Geldwäschegesetz (GwG) dazu verpflichtet, bei der Begründung einer Geschäftsbeziehung die Identität des Vertragspartners festzustellen und zu überprüfen, bzw. sobald ein ernsthaftes Interesse an der Durchführung des Immobilienkaufvertrages besteht. Hierzu ist es erforderlich, dass wir nach § 11 Abs. 4 GwG die relevanten Daten Ihres Personalausweises festhalten (wenn Sie als natürliche Person handeln) – beispielsweise mittels einer Kopie. Bei einer juristischen Person benötigen wir eine Kopie des Handelsregisterauszugs, aus welchem der wirtschaftlich Berechtigte hervorgeht. Das Geldwäschegesetz sieht vor, dass der Makler die Kopien bzw. Unterlagen fünf Jahre aufbewahren muss. Als unser Vertragspartner haben Sie auch ein Mitwirkungspflicht nach § 11 Abs. 6 GwG.

HAFTUNG: Wir weisen darauf hin, dass die von uns weitergegebenen Objektinformationen, Unterlagen, Pläne etc. vom Verkäufer bzw. Vermieter stammen. Eine Haftung für die Richtigkeit oder Vollständigkeit der Angaben übernehmen wir daher nicht. Es obliegt daher unseren Kunden, die darin enthaltenen Objektinformationen und Angaben auf ihre Richtigkeit hin zu überprüfen. Alle Immobilienangebote sind freibleibend und vorbehaltlich Irrtümer, Zwischenverkauf- und Vermietung oder sonstiger Zwischenverwertung.

UNSER SERVICE FÜR SIE ALS EIGENTÜMER: Planen Sie den Verkauf oder die Vermietung Ihrer Immobilie, so ist es für Sie wichtig, deren Marktwert zu kennen. Lassen Sie kostenfrei und unverbindlich den aktuellen Wert Ihrer Immobilie professionell durch einen unserer Immobilienspezialisten einschätzen. Unser bundesweites und internationales Netzwerk ermöglicht es uns, Verkäufer bzw. Vermieter und Interessenten bestmöglich zusammenzuführen.

Weiterlesen

76534 BADEN-BADEN

Wohnen am Klosterplatz 4 luxuriöse und exklusive Eigentumswohnungen entstehen

ca. 860 m² 20 Zimmer 6.038.440 EUR

Anbieter
  • Rainer Harter
  • Shop Baden-Baden
  • Lichtentaler Straße 73
  • 76530 Baden-Baden
KI-Inhalt

Aufgrund Ihrer Cookie-Einstellungen kann dieses Video nicht angezeigt werden.