Ansicht F
99098 ERFURT
Effizienz trifft auf Komfort: Entdecken Sie die modernen Büroflächen im GVZ!
Auf Anfrage
Kaufpreis Auf Anfrage

Anbieter

  • Daniel Hellmuth
  • Shop Erfurt – Commercial
  • Kettenstraße 7
  • 99084 Erfurt
Bewerbung wird geladen...

Immobilienanfrage

Füllen Sie das Formular aus und unsere Immobilien-Experten melden sich in Kürze bei Ihnen.

Ihre persönlichen Daten

Ihre Bewerbung wird vertraulich behandelt.

Übersicht

Highlights

Details

Objektnummer

25478932

Haustyp

Bürohaus

Bauweise

Massiv

Stellplatz

10 x Freiplatz, 17 EUR (Miete)

Baujahr

1995

Provision

Mieterprovision beträgt das 3,57-fache (inkl. MwSt.) der vereinbarten Monatsmiete

Energieinformationen

Skala

D

Energieeffizienzklasse

D

Endenergieverbrauch

125,00 kWh/m²a

Energieinformationen

VERBRAUCH

Energieausweis gültig bis

30.12.2027

Baujahr laut Energieausweis

1995

Wesentlicher Energieträger

Gas

Objektbeschreibung

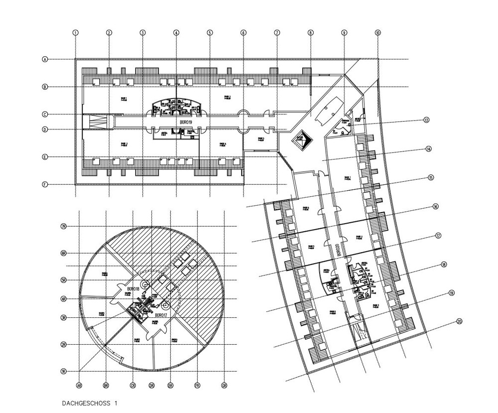
Diese neuwertige Büroetage aus dem Jahr 1995, befindet sich in einem modernen Geschäftskomplex und bietet dem potenziellen Mieter ein flexibles Bürokonzept. Die Büroflächen befinden sich im Dachgeschoss und profitieren von einer architektonisch interessanten Dachform. Eine Datenverkabelung der Kategorie 7 garantiert schnelles und effektives Arbeiten. Die gesamte Fläche ist klimatisiert, um die beste Arbeitsumgebung zu schaffen. Die Aufteilung der beiden Büroeinheiten ist variabel und bietet großzügige Räumlichkeiten, die individuell an die Bedürfnisse des künftigen Eigentümers angepasst werden können.

Zur Innenausstattung der Büroetage gehört aktuell ein strapazierfähiger Teppichboden, der Gemütlichkeit und Komfort vermittelt. Innenjalousien sorgen für ausreichend Helligkeit und optimale Belichtung. Ein Personenaufzug steht zur Verfügung, damit Kunden und Mitarbeiter bequem und barrierefrei in die Büros gelangen. Außenstellplätze stehen ausreichend zur Verfügung und bieten den Kunden und Mitarbeitern eine bequeme Anreise.

Die Lage des Geschäftskomplexes ist ideal, da er sich in einer zentralen Lage des Gewerbegebietes befindet befindet. Eine gute Anbindung an die öffentliche Verkehrsmittel, die Autobahn und das Stadtzentrum ist jederzeit gegeben. In der Umgebung haben sich einige namhafte Unternehmen aus der Logistik, Industrie- und Onlinehandel angesiedelt.

Die Büroetage eignet sich perfekt für Unternehmen, die nach modernen und flexiblen Büroflächen suchen. Die hervorragende Lage und die Ausstattungsqualität machen die Immobilie zu einer interessanten Option für Start-ups, etablierte Unternehmen oder Investoren, die in eine zukunftssichere Immobilie investieren möchten. Vereinbaren Sie noch heute eine Besichtigung und entdecken Sie das Potenzial dieser modernen Büroetage.

Weiterlesen

Lage: Erfurt

Lagebeschreibung

Die Immobilie befindet sich im GVZ Erfurt. Das GVZ (Güterverkehrszentrum) Erfurt befindet sich im Südwesten von Erfurt, in der Nähe des Flughafens. Das Güterverkehrszentrum Erfurt, kurz GVZ, ist das größte und wohl bekannteste Erfurter Gewerbegebiet.

Das GVZ Erfurt ist von wichtigen Autobahnen gut erreichbar. Es liegt direkt an der Autobahn A71 und in der Nähe der Autobahnen A4 und A38. Außerdem ist es auch per Bahn oder Flugzeug erreichbar, da sich der Flughafen Erfurt-Weimar in unmittelbarer Nähe befindet.

Im GVZ Erfurt gibt es verschiedene Logistik- und Transportunternehmen sowie eine Vielzahl von Dienstleistern, die das Güterverkehrszentrum nutzen. Das GVZ Erfurt bietet umfangreiche Logistik- und Umschlagsmöglichkeiten für den Straßen- und Schienenverkehr sowie für den Luftverkehr an.

Weiterlesen

Ausstattung

  • Personenaufzug
  • Klimatisierung
  • flexible Raumaufteilung
  • Teppichboden
  • PKW-Stellplätze

Sonstiges

Es liegt ein Energieverbrauchsausweis vor. Dieser ist gültig bis 30.12.2027. Endenergieverbrauch beträgt 125.00 kwh/(m²*a). Wesentlicher Energieträger der Heizung ist Gas. Das Baujahr des Objekts lt. Energieausweis ist 1995.

HAFTUNG: Wir weisen darauf hin, dass die von uns weitergegebenen Objektinformationen, Unterlagen, Pläne etc. vom Verkäufer bzw. Vermieter stammen. Eine Haftung für die Richtigkeit oder Vollständigkeit der Angaben übernehmen wir daher nicht. Es obliegt daher unseren Kunden, die darin enthaltenen Objektinformationen und Angaben auf ihre Richtigkeit hin zu überprüfen. Alle Immobilienangebote sind freibleibend und vorbehaltlich Irrtümer, Zwischenverkauf- und Vermietung oder sonstiger Zwischenverwertung.

UNSER SERVICE FÜR SIE ALS EIGENTÜMER: Planen Sie den Verkauf oder die Vermietung Ihrer Immobilie, so ist es für Sie wichtig, deren Marktwert zu kennen. Lassen Sie kostenfrei und unverbindlich den aktuellen Wert Ihrer Immobilie professionell durch einen unserer Immobilienspezialisten einschätzen. Unser bundesweites und internationales Netzwerk ermöglicht es uns, Verkäufer bzw. Vermieter und Interessenten bestmöglich zusammenzuführen.

Weiterlesen

Grundriss

Grundriss 3

99098 ERFURT

Effizienz trifft auf Komfort: Entdecken Sie die modernen Büroflächen im GVZ!

Auf Anfrage

Anbieter

  • Daniel Hellmuth
  • Shop Erfurt – Commercial
  • Kettenstraße 7
  • 99084 Erfurt