Villa en Camp de Mar
07160 CAMP DE MAR (ES) (ESP) – SüDWEST
Neubauvilla in Traumlage in Camp de Mar, Andratx
5.500.000 EUR
Área do terreno ca. 1.828 m²
Quartos 6
Preço de compra 5.500.000 EUR

Fornecedor

  • Florian Waetzoldt
  • Loja Maiorca - Santa Maria
  • Placa Hostals 11
  • 07320 Santa Maria del Camí
A aplicação é carregada...

Pedido de informações sobre o imóvel

Preencha o formulário e os nossos especialistas imobiliários entrarão em contacto consigo em breve.

Os seus dados pessoais

A sua candidatura será tratada de forma confidencial.

Visão geral

Destaques

Terraço
Piscina
Lareira
Cozinha embutida

Detalhes

Número da propriedade

ES263745774

Lugar de estacionamento

3 x Lugar de estacionamento ao ar livre

Casas de banho

4

Ano de construção

2025

Quartos

4

Informações sobre energia

Escala

A

Classe de eficiência energética

A

Certificado Energético válido até

02.12.2034

Ano de construção de acordo com o certificado energético

2025

Fonte de Energia

Bomba de calor ar-água

Aquecimento

Bomba de calor ar-água

Sistemas de aquecimento

Aquecimento por chão radiante

Descrição do imóvel

Diese exklusive Luxusvilla in Camp de Mar bietet Ihnen ein einzigartiges Wohnerlebnis im Südwesten Mallorcas. Eingebettet in eine ruhige und private Umgebung, ist diese stilvolle, neu erbaute Villa das perfekte Refugium für anspruchsvolle Käufer.

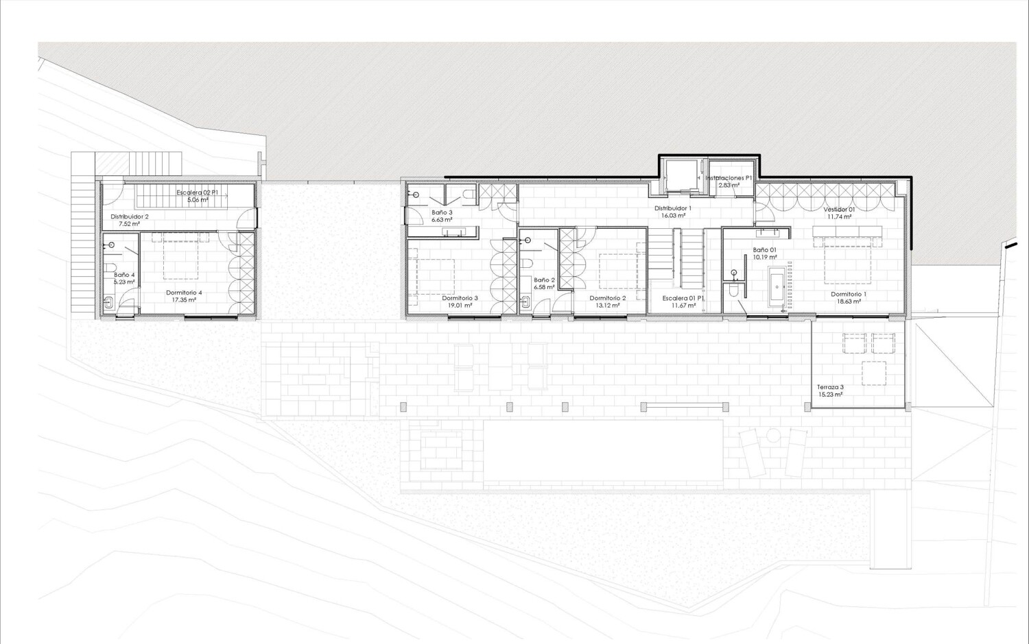
Auf einem großzügigen Grundstück von etwa 1.828 m² erstreckt sich die massiv gebaute Immobilie über zwei Etagen und bietet mit ihren 6 Zimmern ausreichend Platz für Ihre individuellen Wohnbedürfnisse. Die Villa verfügt über 4 luxuriöse Schlafzimmer und 4 moderne Badezimmer – ideal für Familien oder als Ferienresidenz.

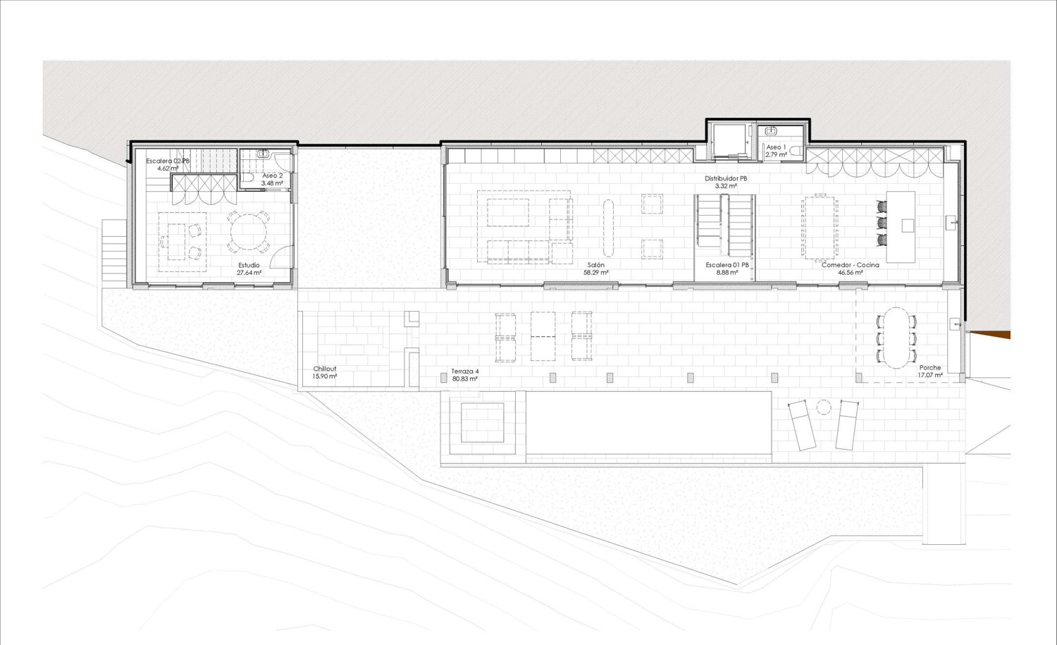
Der hochwertige Innenausbau umfasst eine offene Einbauküche der Marke Bulthaup und Gaggenau, die sowohl funktional als auch ästhetisch beeindruckend ist. Der Wohnbereich besticht durch einen gemütlichen Kamin und stilvolle Fliesenböden. Die Klimaanlage und die Fußbodenheizung, gespeist durch eine effiziente Luft/Wasser-Wärmepumpe, garantieren das ganze Jahr über höchsten Wohnkomfort.

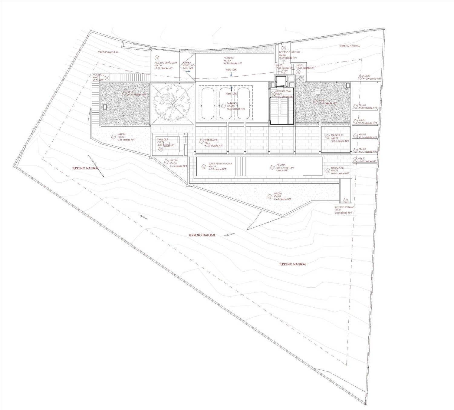
Genießen Sie sonnige Tage auf der großzügigen Terrasse oder dem Balkon mit traumhaftem Blick auf die Umgebung. Ein Highlight des Außenbereichs ist der 17 Meter lange Swimmingpool mit beheizbarem Jacuzzi, der zusammen mit dem Lounge-Bereich inklusive Firepit eine einzigartige Oase zum Entspannen darstellt.

Zusätzlich bietet das Anwesen ein exklusives Gästeapartment im Duplex-Stil, das sich ideal für Besucher eignet. Ihr Komfort wird durch die barrierefreie Gestaltung und die Möblierung der Villa vervollständigt. Drei Stellplätze sowie ein vielseitig nutzbarer Keller ergänzen das Angebot dieser außergewöhnlichen Immobilie.

Profitieren Sie von der erstklassigen Lage in der Nähe der atemberaubenden Küste von Camp de Mar, einem exklusiven Küstenort, der abseits des Trubels liegt und dennoch alle Annehmlichkeiten in Reichweite bietet. Lassen Sie sich von dieser einzigartigen Villa verzaubern und erleben Sie Luxuswohnen auf höchstem Niveau.

Ler mais

Localizações: Camp De Mar (Es) - Südwest

Descrição da localização

Camp de Mar ist ein exklusiver, überschaubarer Küstenort in der Gemeinde Andratx im Südwesten Mallorcas und zählt nur rund 300 feste Einwohner, was ihm eine ruhige und private Atmosphäre verleiht. Ursprünglich ein kleines Fischerei- und Küstengebiet, entwickelte sich Camp de Mar erst in der zweiten Hälfte des 20. Jahrhunderts zu einem hochwertigen Ferien- und Wohnstandort, wobei der Fokus stets auf einer lockeren Bebauung und der Einbettung in die Natur lag. Heute steht der Ort für entspannten Luxus, gepflegte Wohnanlagen und eine der schönsten, feinsandigen Buchten der Region, bekannt für ihr klares Wasser und das ikonische Holzsteg-Restaurant, das direkt ins Meer führt.

Die Lage zwischen dem Tramuntana-Gebirge und dem Mittelmeer macht Camp de Mar besonders attraktiv: ruhig, grün und dennoch hervorragend angebunden. Palma de Mallorca ist in etwa 25 Kilometern erreichbar, der internationale Flughafen Son Sant Joan liegt rund 35 Kilometer entfernt. Internationale Schulen befinden sich vor allem in den benachbarten Gemeinden Calvià und Palma und sind mit dem Auto in etwa 20 bis 30 Minuten gut erreichbar, was Camp de Mar auch für Familien interessant macht.

Sportlich bietet die Umgebung ein breites Spektrum, das von Wassersport wie Schwimmen, Stand-up-Paddling und Tauchen über Wandern und Radfahren bis hin zu Golf reicht, denn der renommierte Golfplatz Golf de Andratx liegt direkt am Ort und zählt zu den anspruchsvollsten der Insel. Camp de Mar vereint damit naturnahe Ruhe, gehobene Wohnqualität und eine privilegierte Lage im Südwesten Mallorcas – ideal für anspruchsvolle Käufer, die Diskretion, Meerblick und Nähe zu Palma schätzen.

Ler mais

Características

  • Offene Einbauküche mit Geräten von Bulthaup und Gaggenau
  • Fliesenböden
  • Kamin
  • Klimaanlage
  • Terrasse
  • Balkon
  • Swimmingpool von ca. 17 m mit beheizbarem Jacuzzi und Lounge-Bereich mit Firepit
  • Drei Stellplätze
  • Unterkellert
  • Fußbodenheizung
  • Luft/Wasser Wärmepumpe
  • Garten
  • Barrierefrei
  • Möbliert
  • Gästeapartment

Outras informações

Grundsätzlich empfehlen wir, die baurechtliche Situation durch einen Fachanwalt prüfen zu lassen. Alle Angaben basieren ausschließlich auf den Informationen des Eigentümers bzw. Auftraggeber. Wir übernehmen keine Gewähr für die Vollständigkeit, Richtigkeit und Aktualität der Angaben. Die Courtage geht zu Lasten des Verkäufers. Die beim Kauf anfallenden Steuern, die Notar- und die Grundbuchkosten sind vom Käufer zu tragen.

Ler mais

Planta

Área de acceso
Primera planta
Planta baja
Corte
Corte
Planta baja
Vista superior

07160 CAMP DE MAR (ES) (ESP) – SüDWEST

Neubauvilla in Traumlage in Camp de Mar, Andratx

ca. 1.828 m² 6 Quartos 5.500.000 EUR

Fornecedor

  • Florian Waetzoldt
  • Loja Maiorca - Santa Maria
  • Placa Hostals 11
  • 07320 Santa Maria del Camí