Hausansicht
89077 ULM
Mehrfamilienhaus, beste Lage in Ulm
1.197.000 EUR
Surface habitable ca. 326 m²
Superficie du terrain ca. 502 m²
Pièces 12
Prix d'achat 1.197.000 EUR

Fournisseur

  • Tobias Saur
  • Agence de Ulm
  • Turmgasse 13
  • 89073 Ulm
Chargement de la candidature...

Demande de renseignements immobiliers

Remplissez le formulaire et nos experts immobiliers vous contacteront dans les plus brefs délais.

Vos données personnelles

Votre candidature sera traitée de manière confidentielle.

Aperçu

Points forts

WC invités
Jardin / utilisation partagée
Bloc-cuisine
Balcon

Détails

CODE DU BIEN

26069005

Type de maison

Maison multifamiliale

Méthode de construction

massif

Surface utile

ca. 865 m²

Place de stationnement

8 x Garage

Modernisation / Rénovation

2025

État de la propriété

Bon état

Salles de bains

8

Année de construction

1970

Commission pour le locataire

Käuferprovision beträgt 3,57 % (inkl. MwSt.) des beurkundeten Kaufpreises

Informations sur l'énergie

Échelle

E

Classe d'efficacité énergétique

E

Consommation finale d'énergie

136,20 kWh/m²a

Certification énergétique

Certificat de performance énergétique

Certification énergétiquew valable jusqu'au

08.02.2036

Année de construction selon le certificat énergétique

1968

Chauffage

Gaz naturel lourd

Source d'alimentation

Gaz

Type de chauffage

Chauffage à l'étage

Description du bien

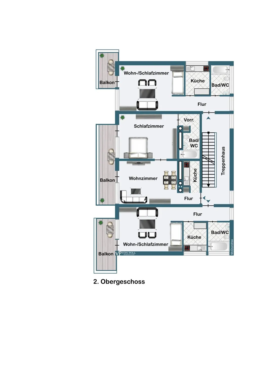
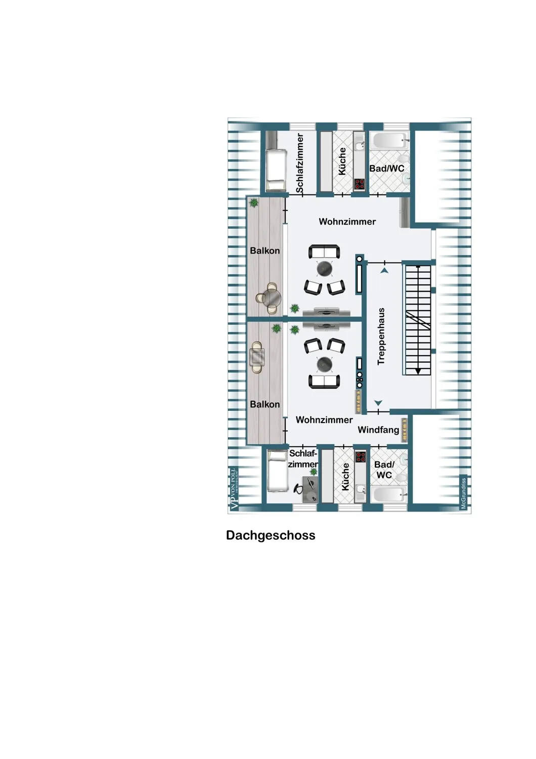
Bei dem angebotenen Objekt handelt es sich um ein sehr gepflegtes Mehrfamilienhaus mit insgesamt acht Wohnungen, acht Garagen sowie einem großzügigen, gemeinschaftlich nutzbaren Garten. Das Gebäude wurde laufend instand gehalten und die Wohnungen wurden regelmäßig modernisiert. Der Zugang zum Wohnhaus erfolgt an der Nordseite über ein zentrales, lichtdurchflutetes Treppenhaus mit einer repräsentativen Marmortreppe, über das sämtliche Geschossebenen erschlossen werden. Im Untergeschoss befinden sich die den Wohnungen zugeordneten Kellerabteile, ein Raum für den Gasanschluss, ein gemeinschaftlicher Trocken- und Waschraum, zwei Lagerräume, sowie ein Bad. Diese können separat vermietet werden und sind somit zusätzliches Ertragspotenzial. Das Erdgeschoss beherbergt neben dem Treppenhaus einen Technikraum, einen Fahrradraum sowie insgesamt zwei Doppelgaragen und vier Einzelgaragen. Ein direkter Zugang von den Garagen in das Treppenhaus ist nicht vorhanden. Im ersten Obergeschoss befinden sich drei Wohnungen. Die Wohnung auf der Ostseite ist als 1-Zimmer-Wohnung ausgeführt und verfügt über einen Flur, ein Bad, eine Küche sowie ein Wohn- und Schlafzimmer mit Zugang zu einem Balkon an der Südseite. Die mittlere Wohnung ist eine 2-Zimmer-Wohnung mit innenliegender Küche, Wohnzimmer, Schlafzimmer, einem innenliegenden Bad sowie einem Südbalkon. Schlafzimmer und Wohnzimmer sind hierbei als Durchgangszimmer konzipiert. Die Wohnung auf der Westseite entspricht in ihrem Grundriss dem gespiegelt angeordneten Pendant der Ostwohnung. Das zweite Obergeschoss weist eine nahezu identische Grundrissstruktur zum ersten Obergeschoss auf und umfasst ebenfalls drei Wohnungen mit gleicher Aufteilung. Im Dachgeschoss befinden sich zwei weitere Wohnungen. Die Wohnung auf der Ostseite wird über eine Wohndiele betreten, von der aus das Bad, die Küche, eine Schlafnische sowie der Balkon an der Südseite erschlossen werden. Die Wohnung auf der Westseite entspricht dem gespiegelten Grundriss der Ostwohnung. Der Dachspitz ist aufgrund der geringen Höhe nicht nutzbar. Insgesamt verfügt das Gebäude über sechs Balkone und zwei Loggien mit Südausrichtung. Jede Wohnung ist mit einer eigenen Gastherme inklusive Warmwasserbereitung ausgestattet. Die Gasthermen des Fabrikats Junkers stammen überwiegend aus den Baujahren 1994 bis 2001, eine Therme wurde im Jahr 2020 erneuert. Die Wärmeabgabe erfolgt über Heizkörper mit Thermostatventilen. Das gesamte Anwesen befindet sich in einem sehr gepflegten Zustand. Sowohl das Gebäude als auch die einzelnen Wohnungen wurden fortlaufend modernisiert und instand gehalten.

Lire la suite

Implantations: Ulm

Description de l’emplacement

Ulm, Universitätsstadt an der Donau, ist eine kreisfreie Stadt in Baden-Württemberg mit gegenwärtig ca. 130.000 Einwohnern und somit eine der kleinsten Großstädte des Landes. Die Stadt ist Sitz des Alb-Donau-Kreises und gehört zur Region Donau-Iller innerhalb des Regierungsbezirks Tübingen, zu der auch bayerische Gebiete gehören. Zur wirt-schafts- und kulturrelevanten Einwohnerzahl ist jedoch auch die bayerische Nachbarstadt Neu-Ulm zu rechnen, so dass sich für die Doppelstadt eine effektive Größe von rund 190.000 Einwohnern ergibt. Die Zusammenarbeit beider Städte zeigt sich im gemeinschaftlichen Internetportal und in der Wahrnehmung gemeinsamer Aufgaben wie Wirt-schaftsförderung oder Energie und ÖPNV (SWU Stadtwerke Ulm/Neu-Ulm). Ulm verfügt über alle Infrastruktureinrichtungen einer Großstadt. So finden sich eine Universität und zwei Fachhochschulen, Verwaltungen, Handelsbetriebe und vielzähliges Gewerbe aus dem sekundären und tertiären Sektor in der Stadt an der Donau. Der Bestand an Unterneh-men und Arbeitsplätzen ist gut, die Arbeitslosenquoten sind so niedrig, dass nahezu von Vollbeschäftigung gesprochen werden kann. Überregionale Verkehrsanbindungen bestehen über die Autobahnen A7 und A8 sowie die Bundesstraßen B10, B30, B28 und B311. Ulm besitzt einen ICE-Bahnhof an der Strecke München-Stuttgart sowie Anschluss an weitere regionale Bahnlinien. Durch den Ausbau der Zugverbindungen und der Autobahnen nach Stuttgart und München gewinnt Ulm als Wirtschafts- und Wissenschaftsstandort weiter an Attraktivität. Die kulturelle Vielfalt, die abwechslungsreichen Freizeitmöglichkeiten und bezahlbares Wohnen machen Ulm zu einem interessanten und attraktiven Wohn- und Arbeitsstandort.

Lire la suite

Caractéristiques

  • Gastherme mit Warmwasserbereitung in jeder Wohnung
  • Holz und Isolierglasfenster 2-fach Verglasung
  • Bodenbeläge Fliesen, PVC, Laminat
  • Einbauküchen
  • Zwei Lagerräume und ein Bad im Untergeschoss
  • Fahrradraum
  • Separate Waschküche

Informations diverses

GELDWÄSCHE: Als Immobilienmaklerunternehmen ist die von Poll Immobilien GmbH nach § 2 Abs. 1 Nr. 14 und § 11 Abs. 1, 2 Geldwäschegesetz (GwG) dazu verpflichtet, bei der Begründung einer Geschäftsbeziehung die Identität des Vertragspartners festzustellen und zu überprüfen, bzw. sobald ein ernsthaftes Interesse an der Durchführung des Immobilienkaufvertrages besteht. Hierzu ist es erforderlich, dass wir nach § 11 Abs. 4 GwG die relevanten Daten Ihres Personalausweises festhalten (wenn Sie als natürliche Person handeln) – beispielsweise mittels einer Kopie. Bei einer juristischen Person benötigen wir eine Kopie des Handelsregisterauszugs, aus welchem der wirtschaftlich Berechtigte hervorgeht. Das Geldwäschegesetz sieht vor, dass der Makler die Kopien bzw. Unterlagen fünf Jahre aufbewahren muss. Als unser Vertragspartner haben Sie auch eine Mitwirkungspflicht nach § 11 Abs. 6 GwG.

HAFTUNG: Wir weisen darauf hin, dass die von uns weitergegebenen Objektinformationen, Unterlagen, Pläne etc. vom Verkäufer bzw. Vermieter stammen. Eine Haftung für die Richtigkeit oder Vollständigkeit der Angaben übernehmen wir daher nicht. Es obliegt daher unseren Kunden, die darin enthaltenen Objektinformationen und Angaben auf ihre Richtigkeit hin zu überprüfen. Alle Immobilienangebote sind freibleibend und vorbehaltlich Irrtümer, Zwischenverkauf- und Vermietung oder sonstiger Zwischenverwertung.

UNSER SERVICE FÜR SIE ALS EIGENTÜMER: Planen Sie den Verkauf oder die Vermietung Ihrer Immobilie, so ist es für Sie wichtig, deren Marktwert zu kennen. Lassen Sie kostenfrei und unverbindlich den aktuellen Wert Ihrer Immobilie professionell durch einen unserer Immobilienspezialisten einschätzen. Unser bundesweites und internationales Netzwerk ermöglicht es uns, Verkäufer bzw. Vermieter und Interessenten bestmöglich zusammenzuführen.

Alle im Exposé veröffentlichten Angaben, insbesondere zur (Wohn-)Fläche sowie (Wohn-)Flächenberechnungsmethode, sind ungeprüfte Angaben des Auftraggebers und können vom aktuellen Stand abweichen. Die (Wohn-)Flächenangaben stellen "circa"-Flächenangaben, also nur Näherungswerte, dar. Sämtliche im Exposé abgedruckten Grundrisspläne und Lichtbilder dienen lediglich der Visualisierung, sind nicht maßstäblich und können vom aktuellen Stand abweichen. Irrtum und Fehler bleiben vorbehalten.

Lire la suite

89077 ULM

Mehrfamilienhaus, beste Lage in Ulm

ca. 326 m² 12 Pièces 1.197.000 EUR

Fournisseur

  • Tobias Saur
  • Agence de Ulm
  • Turmgasse 13
  • 89073 Ulm