1 bild
L-3364 LEUDELANGE (LUX) – LUX PéRIPHéRIE OUEST
Surfaces de bureaux à louer
Sur demande
Prix d'achat Sur demande

Fournisseur

  • VON POLL REAL ESTATE Limpertsberg
  • Agence de Limpertsberg
  • 6, avenue Pasteur
  • L-2310 Luxembourg
Chargement de la candidature...

Demande de renseignements immobiliers

Remplissez le formulaire et nos experts immobiliers vous contacteront dans les plus brefs délais.

Vos données personnelles

Votre candidature sera traitée de manière confidentielle.

Aperçu

Points forts

Détails

CODE DU BIEN

LU881800069_3

Type de maison

Centre bureaux

Disponible à partir du

29.04.2019

Place de stationnement

3 x surface libre, 115 EUR (Location), 37 x Parking souterrain, 161 EUR (Location)

Commission pour le locataire

Oui

Informations sur l'énergie

Lors de la création du document, son diagnostic de performance énergétique n'était pas encore disponible.

Description du bien

Immeuble de bureaux récent avec belle visibilité. Ils se composent de 2 plateaux tout équipés de 686 m² chacun, au 2ème et 3ème étage de l'immeuble. Les surfaces sont composées d'open space, de bureaux cloisonnés, sanitaires, kitchenette, salle IT. Proche de toutes commodités. Axes autoroutiers à proximité.

Lire la suite

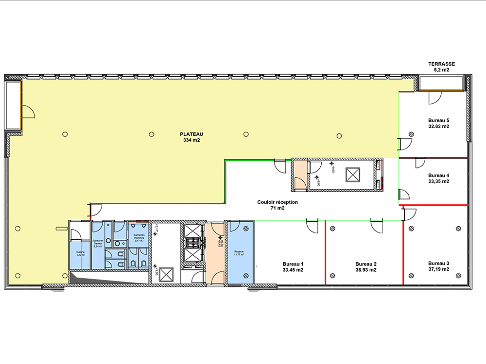
Planimétrie

plan 2e étage
plan 3e étage

L-3364 LEUDELANGE (LUX) – LUX PéRIPHéRIE OUEST

Surfaces de bureaux à louer

Sur demande

Fournisseur

  • VON POLL REAL ESTATE Limpertsberg
  • Agence de Limpertsberg
  • 6, avenue Pasteur
  • L-2310 Luxembourg