07006 PALMA (ESP)
Reihenhaus mit Pool in Molinar, fußläufig zur Strandpromenade und zum Meer
- ca. 139,39 m² Wohnfläche
- ca. 161 m² Grundstück
- 4 Zimmer
- 2.790.000 EUR Kaufpreis
Übersicht
Highlights
Details
Objektnummer
ES233744160
Haustyp
Reihenhaus
Zustand der Immobilie
projektiert
Badezimmer
3
Baujahr
2022
Schlafzimmer
3
Energieinformationen
Heizungsart
Fußbodenheizung
Beschreibung
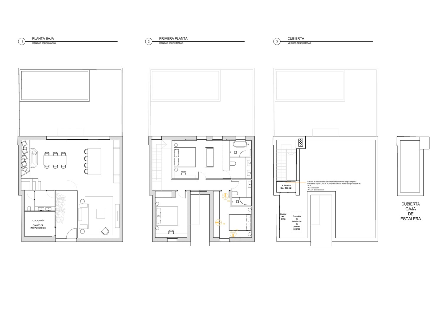
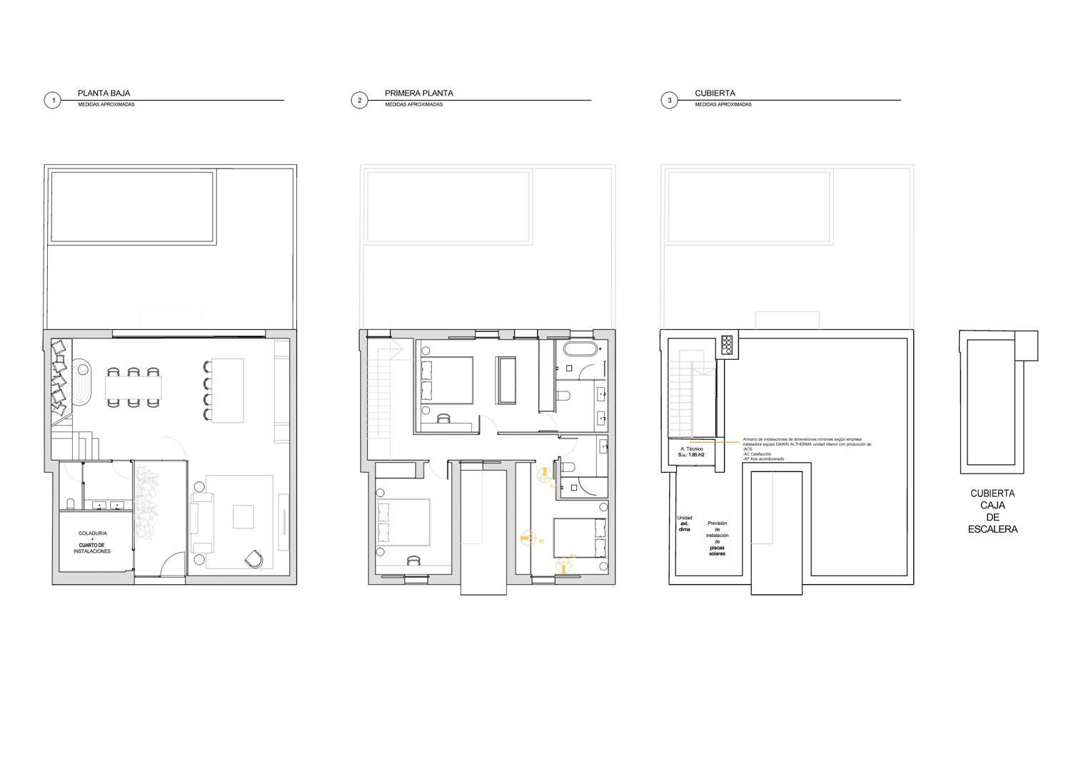
Diese exklusive Doppelhaushälfte über zwei Etagen, in einem ruhigen Viertel von El Molinar, nur wenige Schritte vom Meer entfernt, überzeugt nicht nur durch ihre hervorragende Lage, sondern auch durch ihre hochwertige Ausstattung und den modernen Komfort. Mit einer großzügigen bebauten Fläche von ca. 201 m² bietet es ausreichend Platz für komfortables Wohnen. Im Erdgeschoss finden Sie neben einer modernen offenen Küche einen stilvollen Wohnbereich mit gemütlichem Sofa und einer hochmodernen TV-Ecke, während sich die Schlafbereiche im zweiten Stock befinden. Diese Doppelhaushälfte verfügt über erstklassige Ausstattungsmerkmale wie Fußbodenheizung, Klimaanlage und ein modernes KNX-System zur komfortablen Steuerung der Haustechnik. Die voll ausgestattete Küche verfügt über hochwertige Gaggenau- und Bora-Geräte für Ihre kulinarischen Bedürfnisse. Der ca. 17 m² große Pool lädt zu entspannten Stunden ein. Die Kathedrale und die Altstadt von Palma sind bequem zu Fuß oder mit dem Fahrrad zu erreichen.
Lage
Beschreibung
El Molinar ist ein charmanter Küstenstadtteil von Palma de Mallorca, der sich durch seine Mischung aus traditionellem Flair und modernem Lifestyle auszeichnet. Der ehemalige Fischerort hat sich in den letzten Jahren zu einem beliebten Wohnviertel entwickelt, das vor allem für seine Nähe zum Meer und seine idyllische Promenade bekannt ist. Mit einer Einwohnerzahl von etwa 7.000 Menschen ist El Molinar ein lebendiges Viertel, das dennoch eine ruhige und entspannte Atmosphäre bietet. Die Lage des Viertels ist ideal: El Molinar liegt nur etwa 3 Kilometer vom historischen Zentrum von Palma entfernt, was es besonders attraktiv für diejenigen macht, die die Annehmlichkeiten der Stadt genießen und gleichzeitig in einer ruhigen Umgebung am Meer wohnen möchten. Der Flughafen von Palma ist ebenfalls schnell erreichbar – in nur etwa 7 Kilometern Entfernung liegt er quasi vor der Haustür, was besonders für Vielreisende und Pendler praktisch ist. Neben seiner günstigen Lage besticht El Molinar durch seine charmanten, niedrigen Häuser im mediterranen Stil und die vielen gemütlichen Cafés und Restaurants entlang der Küste. Hier trifft mallorquinische Tradition auf modernen Lifestyle, was den Stadtteil zu einem gefragten Wohnort macht, sowohl für Einheimische als auch für internationale Käufer.
Grundriss

07006 PALMA (ESP)
Reihenhaus mit Pool in Molinar, fußläufig zur Strandpromenade und zum Meer
ca. 139,39 m² • 4 Zimmer • 2.790.000 EUR
Anbieter
- Florian Waetzoldt
- Shop Mallorca - Santa Maria
- Placa Hostals 11
- 07320 Santa Maria del Camí