Wohnen mit Service - Neubauwohnung in der Tagespflege
91617 OBERDACHSTETTEN
Wohnen mit Service - Neubauwohnung in der Tagespflege
196.900 EUR
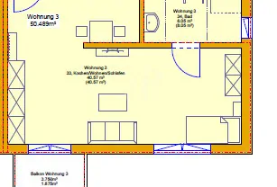
Wohnfläche ca. 50,49 m²
Zimmer 1
Kaufpreis 196.900 EUR
Anbieter
  • Florian Wittmann
  • Shop Ansbach
  • Karlstraße 9
  • 91522 Ansbach
Bewerbung wird geladen...

Immobilienanfrage

Füllen Sie das Formular aus und unsere Immobilien-Experten melden sich in Kürze bei Ihnen.

Ihre persönlichen Daten

Ihre Bewerbung wird vertraulich behandelt.

Übersicht

Highlights

Garten/-mitbenutzung
Balkon

Details

Objektnummer

25208756

Haustyp

Etagenwohnung

Stellplatz

1 x Freiplatz, 7500 EUR (Verkauf)

Badezimmer

1

Baujahr

2025

Schlafzimmer

1

Energieinformationen

Skala

A+

Energieeffizienzklasse

A+

Endenergieverbrauch

9,90 kWh/m²a

Energieinformationen

VERBRAUCH

Energieausweis gültig bis

18.11.2035

Baujahr laut Energieausweis

2026

Wesentlicher Energieträger

Luft/Wasser-Wärmepumpe

Befeuerung

Luft/Wasser-Wärmepumpe

Beschreibung

WOHNEN mit SERVICE

Dieses Neubauprojekt in Oberdachstetten bietet Ihnen die Möglichkeit, eine zukunftssichere, barrierefreie Neubauwohnung zu erwerben, die speziell auf die Bedürfnisse des modernen Wohnens mit Service zugeschnitten ist. Die projektierten Einheiten vereinen modernen Wohnkomfort mit funktionalen Serviceleistungen, die das Leben angenehm und sicher machen. Die angebotene Etagenwohnung umfasst eine Wohnfläche von ca. 50,49 m² und überzeugt mit einer klar strukturierten Raumaufteilung. Das Herzstück der Wohnung ist der großzügige, lichtdurchflutete Wohn- und Essbereich, welcher durch den direkten Zugang zum Balkon Raum für entspannte Stunden im Freien schafft. Große Fensterflächen sorgen für eine angenehme Tageslichtatmosphäre und ein offenes Raumgefühl. Die Küche ist offen in den Wohnbereich integriert und lässt individuelle Gestaltungsmöglichkeiten zu. Das Schlafzimmer bietet ausreichend Platz für erholsame Nächte und ist aufgrund der barrierefreien Bauweise optimal erreichbar und nutzbar, ebenso wie das moderne Badezimmer mit ebenerdiger Dusche. Hochwertige Materialien sorgen hier für eine angenehme Haptik und pflegeleichte Oberflächen. Besondere Aufmerksamkeit wurde auf die Zugänglichkeit und Alltagstauglichkeit gelegt: Ein Aufzug verbindet sämtliche Etagen, sodass die Wohnung vollständig barrierefrei erreichbar ist. Die gesamte Bauweise ist seniorengerecht konzipiert. Optional stehen Ihnen PKW-Stellplätze zur Verfügung. Der Servicecharakter des Gebäudes ist ein zentrales Element dieses Neubauprojekts: Ein Hausnotrufsystem ist das ganze Jahr über rund um die Uhr aktiv, sodass Sie sich auf schnelle Hilfe im Bedarfsfall verlassen können. Ein professionelles Pflegepersonal und eine Hausverwaltung stehen ebenfalls bereit. Weiterhin wird ein Verpflegungsangebot für die Bewohner organisiert, das Ihren Alltag spürbar erleichtert.

Zudem ist bereits die Entwicklung einer Nahversorgung direkt auf dem Areal in Planung – kurze Wege bestimmen den Alltag. Das Gesamtpaket dieser Wohnung besticht durch umfassende Serviceleistungen, eine zeitgemäße, barrierefreie Neubauqualität und die ruhige, dennoch gut angebundene Lage.

Hausnotruf – 365 Tage im Jahr Mit unserem Hausnotruf sind Sie rund um die Uhr bestens versorgt.

Ein Knopfdruck genügt, und Sie erhalten innerhalb kürzester Zeit Unterstützung – sei es durch Nachbarn, Angehörige, Ihren Pflegedienst oder den Rettungsdienst.

Flexible Verpflegungsangebote Für Ihr leibliches Wohl ist gesorgt: Es stehen verschiedene Essensoptionen zur Verfügung – von frisch gekochten Mahlzeiten bis hin zu vorbereiteten Gerichten zum Aufwärmen.

Komplette Hausverwaltung Um Reparaturen, Wartungen und alltägliche Anliegen müssen Sie sich nicht kümmern – die ortsansässige Hausverwaltung steht Ihnen zuverlässig zur Seite.

Pflegepersonal in unmittelbarer Nähe Durch die angeschlossene Tagespflege ist während der Öffnungszeiten fachkundiges Pflegepersonal vor Ort, das bei Bedarf für die Bewohner der Wohnungen ansprechbar ist.

Bürgerbus für Ihre Mobilität Unser Bürgerbus bringt Sie sicher und bequem zu Einkäufen, Arztbesuchen oder anderen Terminen.

Aktives Dorfleben Zahlreiche Seniorennachmittage im Ort bieten Gelegenheit für Begegnung, Unterhaltung und Gemeinschaft.

Barrierefreie Anbindung Der Bahnhof in Oberdachstetten ist barrierefrei und nur rund 200 Meter von Ihrer Wohnung entfernt.

Ebenso in Planung ist eine Nahversorgung direkt vor Ort. Geplant wird der Bau eines Supermarktes sowie einer Arztpraxis in Oberdachstetten. Damit werden wichtige Einrichtungen des täglichen Lebens direkt in Ihrer Nähe verfügbar sein.

Ein Baubeginn ist in 2026 vorgesehen. Sichern Sie sich schon heute eine auf Sie perfekt zugeschnittene Wohnung.

Haben wir Ihre Neugier geweckt? Vereinbaren Sie jetzt einen Beratungstermin mit uns.

Weiterlesen

Lage

Beschreibung

Oberdachstetten liegt am nördlichen Rand des Landkreises Ansbach im Regierungsbezirk Mittelfranken, wo sich B13 und die „Hochstraße“, der alte Handelsweg von Rothenburg o.d.T. nach Nürnberg, kreuzen. Aufgrund dieser verkehrsgünstigen Lage sind von Oberdachstetten aus die weiteren Sehenswürdigkeiten des Naturparks Frankenhöhe und der Städte Rothenburg o.d.T., Bad Windsheim und Ansbach gut zu erreichen.

Verkehrsgünstig unmittelbar an der B13 (Würzburg - München) gelegen, sind von Oberdachstetten aus die nächstgrößeren Städte gut zu erreichen (Nürnberg 55 km, Würzburg 59 km, Ansbach 18 km, Rothenburg o.d.T. 23 km - nächste BAB-Auffahrt (Bad Windsheim, A7) 15 km) Oberdachstettens Bahnhof liegt an der DB-Hauptstrecke Würzburg - München mit täglich jeweils über 20 Zügen von und nach Ansbach (11 Minuten) und Würzburg (50 Minuten). Vom Bahnhof fahren auch die Buslinien nach Ansbach und Rothenburg o.d.T. ab.

Zur Deckung des täglichen Bedarfs sind Bäcker und Metzger vorhanden. Die Praxiseröffnung eines Allgemeinarztes ist naher Zukunft geplant. Oberdachstetten verfügt über eine Kindertagesstätte und eine Kinderkrippe und eine Grundschule. Weiterführende Schulen befinden sich in Lehrberg und Ansbach. Oberdachstetten bietet zahlreiche Freizeitmöglichkeiten wie zahlreiche Rad- und Wanderwege, einen Badeweiher mit Jugendzeltplatz und pflegt ein vielfältiges Vereinsleben wie z. B. Gesangs- und Schützenverein, Posaunenchor und Fußballclub

Weiterlesen

Ausstattung

  • Wohnen mit Service:
  • Hausnotruf – 365 Tage im Jahr
  • Sicherheit steht an erster Stelle: Mit unserem Hausnotruf sind Sie rund um die Uhr bestens versorgt.
  • Ein Knopfdruck genügt, und Sie erhalten innerhalb kürzester Zeit Unterstützung – sei es durch Nachbarn, Angehörige, Ihren Pflegedienst oder den Rettungsdienst.
  • Flexible Verpflegungsangebote
  • Für Ihr leibliches Wohl ist gesorgt: Es stehen verschiedene Essensoptionen zur Verfügung – von frisch gekochten Mahlzeiten bis hin zu vorbereiteten Gerichten zum Aufwärmen.
  • So haben Sie stets die Möglichkeit, eine passende Versorgung zu wählen. (Kommt drauf an, wer uns zukünftig beliefert)
  • Komplette Hausverwaltung
  • Um Reparaturen, Wartungen und alltägliche Anliegen müssen Sie sich nicht kümmern – die ortsansässige Hausverwaltung steht Ihnen zuverlässig zur Seite.
  • Pflegepersonal in unmittelbarer Nähe
  • Durch die angeschlossene Tagespflege ist während der Öffnungszeiten fachkundiges Pflegepersonal vor Ort, das bei Bedarf für die Bewohner der Wohnungen ansprechbar ist.
  • Bürgerbus für Ihre Mobilität
  • Unser Bürgerbus bringt Sie sicher und bequem zu Einkäufen, Arztbesuchen oder anderen Terminen.
  • Neben Fahrten im Ort werden auch überregionale Ziele angefahren – von Montag bis Freitag zwischen 08:00 und 17:00 Uhr.
  • Aktives Dorfleben
  • Zahlreiche Seniorennachmittage im Ort bieten Gelegenheit für Begegnung, Unterhaltung und Gemeinschaft.
  • Barrierefreie Anbindung
  • Der Bahnhof in Oberdachstetten ist barrierefrei und nur rund 200 Meter von Ihrer Wohnung entfernt – so bleiben Sie auch überregional mobil.
  • Ebenso in Planung ist eine Nahversorgung direkt vor Ort.
  • Geplant wird der Bau eines Supermarktes sowie einer Arztpraxis in Oberdachstetten. Damit werden wichtige Einrichtungen des täglichen Lebens direkt in Ihrer Nähe verfügbar sein.

Sonstiges

Es liegt ein Energieverbrauchsausweis vor. Dieser ist gültig bis 18.11.2035. Endenergieverbrauch beträgt 9.90 kwh/(m²*a). Wesentlicher Energieträger der Heizung ist Luft/wasser Wärmepumpe. Das Baujahr des Objekts lt. Energieausweis ist 2026. Die Energieeffizienzklasse ist A+.

GELDWÄSCHE: Als Immobilienmaklerunternehmen ist die von Poll Immobilien GmbH nach § 2 Abs. 1 Nr. 14 und § 11 Abs. 1, 2 Geldwäschegesetz (GwG) dazu verpflichtet, bei der Begründung einer Geschäftsbeziehung die Identität des Vertragspartners festzustellen und zu überprüfen, bzw. sobald ein ernsthaftes Interesse an der Durchführung des Immobilienkaufvertrages besteht. Hierzu ist es erforderlich, dass wir nach § 11 Abs. 4 GwG die relevanten Daten Ihres Personalausweises festhalten (wenn Sie als natürliche Person handeln) – beispielsweise mittels einer Kopie. Bei einer juristischen Person benötigen wir eine Kopie des Handelsregisterauszugs, aus welchem der wirtschaftlich Berechtigte hervorgeht. Das Geldwäschegesetz sieht vor, dass der Makler die Kopien bzw. Unterlagen fünf Jahre aufbewahren muss. Als unser Vertragspartner haben Sie auch eine Mitwirkungspflicht nach § 11 Abs. 6 GwG.

HAFTUNG: Wir weisen darauf hin, dass die von uns weitergegebenen Objektinformationen, Unterlagen, Pläne etc. vom Verkäufer bzw. Vermieter stammen. Eine Haftung für die Richtigkeit oder Vollständigkeit der Angaben übernehmen wir daher nicht. Es obliegt daher unseren Kunden, die darin enthaltenen Objektinformationen und Angaben auf ihre Richtigkeit hin zu überprüfen. Alle Immobilienangebote sind freibleibend und vorbehaltlich Irrtümer, Zwischenverkauf- und Vermietung oder sonstiger Zwischenverwertung.

UNSER SERVICE FÜR SIE ALS EIGENTÜMER: Planen Sie den Verkauf oder die Vermietung Ihrer Immobilie, so ist es für Sie wichtig, deren Marktwert zu kennen. Lassen Sie kostenfrei und unverbindlich den aktuellen Wert Ihrer Immobilie professionell durch einen unserer Immobilienspezialisten einschätzen. Unser bundesweites und internationales Netzwerk ermöglicht es uns, Verkäufer bzw. Vermieter und Interessenten bestmöglich zusammenzuführen.

Weiterlesen

91617 OBERDACHSTETTEN

Wohnen mit Service - Neubauwohnung in der Tagespflege

ca. 50,49 m² 1 Zimmer 196.900 EUR

Anbieter
  • Florian Wittmann
  • Shop Ansbach
  • Karlstraße 9
  • 91522 Ansbach