Ansicht R
99610 SöMMERDA / LEUBINGEN
Autohaus auf großzügigem Grundstück
5.000 EUR
Grundstück ca. 5.800 m²
Kaufpreis 5.000 EUR

Anbieter

  • Daniel Hellmuth
  • Shop Erfurt – Commercial
  • Kettenstraße 7
  • 99084 Erfurt
Bewerbung wird geladen...

Immobilienanfrage

Füllen Sie das Formular aus und unsere Immobilien-Experten melden sich in Kürze bei Ihnen.

Ihre persönlichen Daten

Ihre Bewerbung wird vertraulich behandelt.

Übersicht

Highlights

Details

Objektnummer

25478952a

Provision

Mieterprovision beträgt das 3,57-fache (inkl. MwSt.) der vereinbarten Monatsmiete

Energieinformationen

Objektbeschreibung

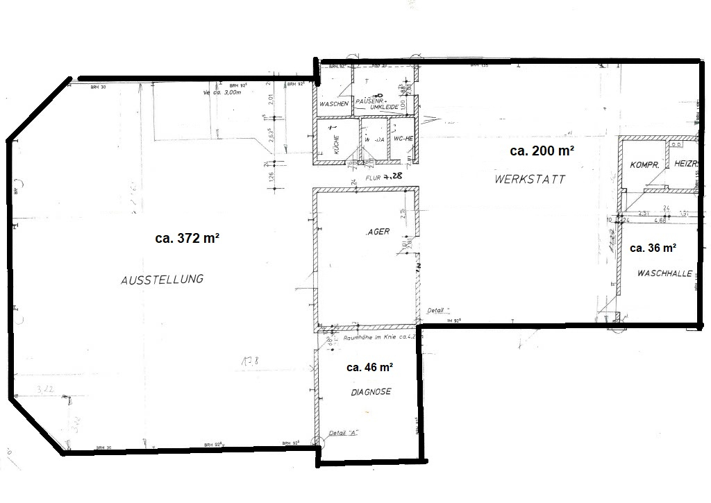
Zum Vermietung steht ein modernes Autohaus auf einem befestigten Gelände in Sömmerda. Die Immobilie bietet ideale Bedingungen für den Automobilhandel und Werkstattbetrieb und erfüllt alle Anforderungen an repräsentative Ausstellungs- und Werkstattflächen.

Ausstattung und Merkmale:

Großzügige Ausstellungsfläche mit großen Fensterfronten, die eine optimale Präsentation von Fahrzeugen ermöglichen.

Werkstattbereich mit mehreren Arbeitsplätzen und separaten Räumen für Diagnose und Annahme.

Zusätzliche Räume wie eine Waschhalle sowie ein separater Diagnose-/Annahmebereich.

Büro- und Sozialräume für Verwaltung und Mitarbeiter.

Befestigte Außenflächen, die als Stellplätze für Fahrzeuge genutzt werden können.

Abgetrennter Hofbereich mit Toranlage.

Weiterlesen

Lage: Sömmerda / Leubingen

Lagebeschreibung

Die Stadt Sömmerda ist die Kreisstadt des gleichnamigen Landkreises im Bundesland Thüringen und zählt rund 19.000 Einwohner. Sie liegt etwa 20 Kilometer nördlich von Erfurt und zeichnet sich durch eine verkehrsgünstige Lage sowie eine gut ausgebaute Infrastruktur aus.

Die Liegenschaft befindet sich im Gewerbegebiet "Am Unterwege", welches verkehrstechnisch hervorragend erschlossen ist:

Autobahnanbindung:

A71 mit den Anschlussstellen Sömmerda Ost, Sömmerda Süd sowie Kölleda mit Wegweisung Sömmerda Nord

A4 in etwa 35 Minuten erreichbar

Bundesstraßen:

B176 (Umgehungsstraße), die direkt das Gewerbegebiet tangiert

B4, in ca. 8 Minuten erreichbar

Eisenbahnanschluss:

Sömmerda als Eisenbahnknotenpunkt mit den Strecken Magdeburg-Erfurt sowie Sömmerda-Buttstädt

Ein angrenzender Güterumschlagplatz sorgt für optimale Logistikmöglichkeiten

Flughafenanbindung:

Der Verkehrsflughafen Erfurt mit internationalen Flugverbindungen liegt etwa 30 Minuten entfernt

Der Verkehrslandeplatz Sömmerda/Dermsdorf, etwa 8 km entfernt, eignet sich für kleinere Maschinen bis 5,7 Tonnen Startmasse

Durch diese ausgezeichnete Verkehrsanbindung ist das Gewerbegebiet "Am Unterwege" ein attraktiver Standort für Unternehmen mit regionalen und überregionalen Wirtschaftsverflechtungen.

Weiterlesen

Ausstattung

  • + Waschhalle
  • + befestigter Außenbereich

Sonstiges

HAFTUNG: Wir weisen darauf hin, dass die von uns weitergegebenen Objektinformationen, Unterlagen, Pläne etc. vom Verkäufer bzw. Vermieter stammen. Eine Haftung für die Richtigkeit oder Vollständigkeit der Angaben übernehmen wir daher nicht. Es obliegt daher unseren Kunden, die darin enthaltenen Objektinformationen und Angaben auf ihre Richtigkeit hin zu überprüfen. Alle Immobilienangebote sind freibleibend und vorbehaltlich Irrtümer, Zwischenverkauf- und Vermietung oder sonstiger Zwischenverwertung.

UNSER SERVICE FÜR SIE ALS EIGENTÜMER: Planen Sie den Verkauf oder die Vermietung Ihrer Immobilie, so ist es für Sie wichtig, deren Marktwert zu kennen. Lassen Sie kostenfrei und unverbindlich den aktuellen Wert Ihrer Immobilie professionell durch einen unserer Immobilienspezialisten einschätzen. Unser bundesweites und internationales Netzwerk ermöglicht es uns, Verkäufer bzw. Vermieter und Interessenten bestmöglich zusammenzuführen.

Weiterlesen

Grundriss

Grundriss

99610 SöMMERDA / LEUBINGEN

Autohaus auf großzügigem Grundstück

ca. 5.800 m² 5.000 EUR

Anbieter

  • Daniel Hellmuth
  • Shop Erfurt – Commercial
  • Kettenstraße 7
  • 99084 Erfurt