Keizer Karelweg 393-1
1181 RG AMSTERDAM (NLD)
Keizer Karelweg 393
2.150.000 EUR
Wohnfläche ca. 225 m²
Zimmer 10
Kaufpreis 2.150.000 EUR
Anbieter
  • Joan Dik, Marie Christine Lodewijk & Elisabeth van Zijverden
  • Shop Amsterdam
  • De Lairessestraat 51
  • 1071 NT Amsterdam
Bewerbung wird geladen...

Immobilienanfrage

Füllen Sie das Formular aus und unsere Immobilien-Experten melden sich in Kürze bei Ihnen.

Ihre persönlichen Daten

Ihre Bewerbung wird vertraulich behandelt.

Übersicht

Highlights

Details

Objektnummer

NL25185571

Baujahr

1939

Schlafzimmer

6

Energieinformationen

Beschreibung

Stijlvol hoogwaardig gerenoveerd hoekhuis in de sfeer van een Engels landhuis – Keizer Karelweg 393, Amstelveen

In een van de mooiste delen van Amstelveen ligt dit royaal opgezette en bijzonder sfeervolle heren-hoekhuis van ca. 225 m² woonoppervlak, met maar liefst vijf (slaap)kamers, drie badkamers een garage en meerdere buitenruimtes, waaronder een zonnige tuin op het zuidwesten. Het huis heeft de uitstraling van een Engels landhuis: denk aan de hoge ronde erker, shutters voor bijna alle ramen, een whitewash eiken vloer, maatwerk kasten en glazen vouwdeuren aan de tuin die volledig openen en binnen en buiten moeiteloos met elkaar verbindt. Het is met zeer veel liefde bewoond en de renovaties zijn smaakvol en op een hoogwaardige wijze uitgevoerd.

Weiterlesen

Lage

Beschreibung

Het huis ligt in de centrale, groene, kindvriendelijke wijk Elsrijk met ruim opgezette, groene lanen en diverse parken en speelgelegenheden in de directe omgeving. Daarnaast is Stadshart Amstelveen, hét overdekte winkelcentrum van Amstelveen, op loopafstand. Verder zijn er voldoende scholen, (buurt)winkels, sportvoorzieningen, kinderopvang en het Amsterdams bos in de nabije omgeving. De ligging is perfect met diverse busverbindingen op de Keizer Karelweg zelf en het busstations op het Stadshart om de hoek. Tevens zijn er diverse uitvalswegen (A9, A2, A4 en A10), u rijdt dan ook in ca. 12 minuten naar Schiphol.

Weiterlesen

Ausstattung

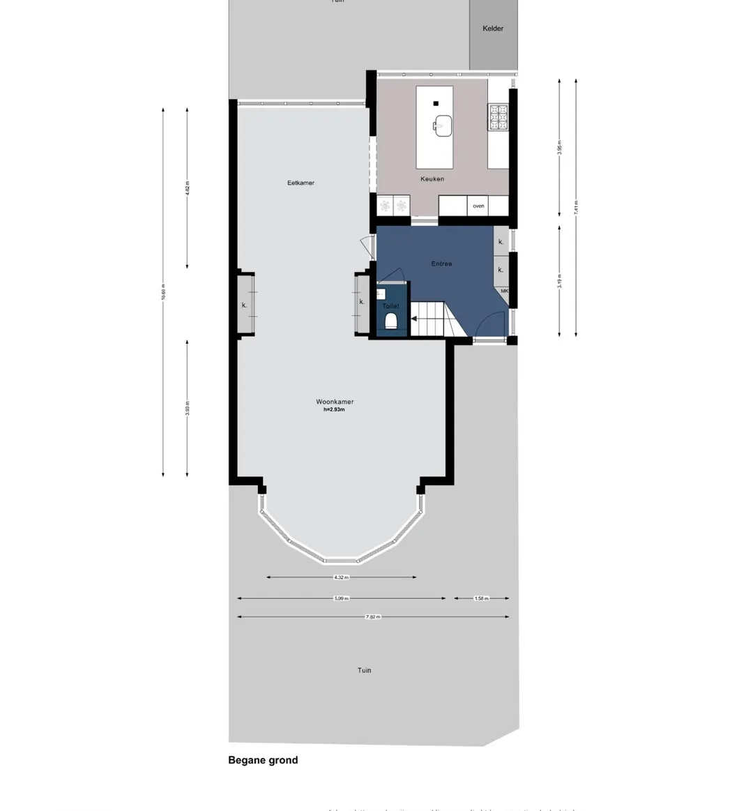
  • Begane grond
  • Statige entree via de ruime voortuin. Binnen valt direct de royale hal met het schitterende trappenhuis op, met garderobekasten en gasten-wc. De sfeervolle living aan de voorzijde heeft een grote ronde erker en een op maat gemaakte wandkast. Aan de achterzijde ligt de eetkamer met een moderne, volledig te openen glazen vouwwand naar de zonnige achtertuin. De halfopen keuken met glazen vouwwand en kookeiland sluit hier perfect op aan.
  • Eerste verdieping
  • Ruime overloop. De ouderslaapkamer aan de voorzijde heeft een eigen badkamer (ligbad, inloopdouche, dubbele wastafel en wc) en toegang tot een elegant, rond balkon. Verder zijn er twee extra slaapkamers, een tweede badkamer en een aparte ruime wasruimte.
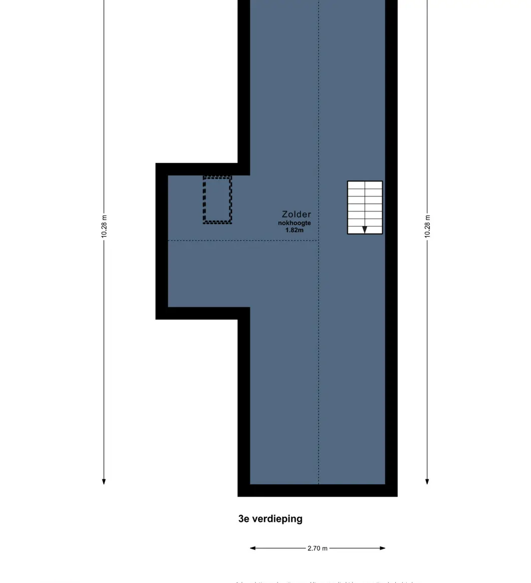
  • Tweede verdieping & vliering
  • Twee grote, lichte slaapkamers met zichtbare houten balken geven deze etage een landelijke charme. De badkamer met douche en wastafel wordt afgesloten met een robuuste houten schuifdeur; aparte wc aanwezig. De vliering is bereikbaar via een vaste trap/ladder en kan dienen als knusse logeerplek of bergruimte.
  • Voor het huis is een parkeerplek beschikbaar, direct voor de voortuin. Deze plek wordt in de praktijk door de bewoners gebruikt, maar maakt formeel geen onderdeel uit van het perceel van Keizer Karelweg 393.

Sonstiges

- Woonoppervlak ca. 225 m² - Perceel: huis en garage 290 m2 - 5 slaapkamers, 3 badkamers - Whitewash eiken vloer, shutters, maatwerk kasten - Twee grote vouwdeuren (Solarlux) van 3 meter hoog naar achtertuin (zuidwest) - Balkon op het oosten - Nieuw trappenhuis met daklicht - Volledig geïsoleerd - energielabel C - 10 zonnepanelen - Garage direct achter het huis - Berging met kelder - Uitstekend onderhouden, documentatie van de renovatie is op te vragen

Deze informatie is door ons met de nodige zorgvuldigheid samengesteld. Onzerzijds wordt echter geen enkele aansprakelijkheid aanvaard voor enige onvolledigheid, onjuistheid of anderszins, dan wel de gevolgen daarvan. Alle opgegeven maten en oppervlakten zijn indicatief. Koper heeft zijn eigen onderzoek plicht naar alle zaken die voor hem of haar van belang zijn. Met betrekking tot deze woning is de makelaar adviseur van verkoper. Wij adviseren u een deskundige (NVM-)makelaar in te schakelen die u begeleidt bij het aankoopproces. Indien u specifieke wensen heeft omtrent de woning, adviseren wij u deze tijdig kenbaar te maken aan uw aankopend makelaar en hiernaar zelfstandig onderzoek te (laten) doen. Indien u geen deskundige vertegenwoordiger inschakelt, acht u zich volgens de wet deskundige genoeg om alle zaken die van belang zijn te kunnen overzien. Van toepassing zijn de NVM voorwaarden.

Weiterlesen

1181 RG AMSTERDAM (NLD)

Keizer Karelweg 393

ca. 225 m² 10 Zimmer 2.150.000 EUR

Anbieter
  • Joan Dik, Marie Christine Lodewijk & Elisabeth van Zijverden
  • Shop Amsterdam
  • De Lairessestraat 51
  • 1071 NT Amsterdam