Titelbild
76534 BADEN-BADEN
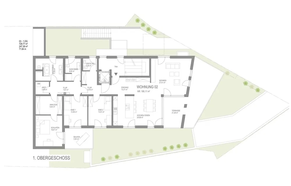
Premium Wohnen an der Lichtentaler Allee Whg #2
1.560.000 EUR
Área ca. 199 m²
Quartos 5
Preço de compra 1.560.000 EUR
Fornecedor
  • Rainer Harter
  • Loja Baden-Baden
  • Lichtentaler Straße 73
  • 76530 Baden-Baden
A aplicação é carregada...

Pedido de informações sobre o imóvel

Preencha o formulário e os nossos especialistas imobiliários entrarão em contacto consigo em breve.

Os seus dados pessoais

A sua candidatura será tratada de forma confidencial.

Visão geral

Destaques

Terraço
WC de hóspedes

Detalhes

Número da propriedade

19011010

Tipo de casa

Piso

Método de construção

Sólido

Lugar de estacionamento

1 x Parque de estacionamento subterrâneo, 25000 EUR (Venda)

Casas de banho

2

Ano de construção

2021

Quartos

4

Comissão para arrendatários

keine Käuferprovision

Informações sobre energia

Escala

A

Classe de eficiência energética

A

Demanda final de energia

40,00 kWh/m²a

Certificado Energético

Consumo energético final

Certificado Energético válido até

19.08.2030

Ano de construção de acordo com o certificado energético

2021

Fonte de Energia

Gás

Aquecimento

Gás

Sistemas de aquecimento

Aquecimento central

Descrição

Freuen Sie sich auf Wohnungen, die in Qualität und Lage einzigartig bleiben!

In unverbaubarer Lage, an der Oos steht dieses neu erbaute Wohnjuwel. Nur einen Steinwurf entfernt liegt die weltberühmte Lichtentaler Allee und der Klosterplatz mit dem bekannten Kloster Lichtenthal. Baden-Baden-Lichtentals "Neue Mitte" und die Einkaufsstraße ist zu Fuß zu erreichen. Wenige Schritte weiter führen direkt in die Natur zu Streuobstwiesen und dem Schwarzwald. In modernster Technik und Bauweise entstehen 4 hochwertige Wohnungen. Das großzügige Treppenhaus gewährleistet Individualität und Ruhe. Durch atmungsaktive Poroton-Ziegel entsteht ein Wohlfühlklima in der bestmöglichen Energie-Effizienz A.

Großzügige Wohnbereiche in hochwertigem Finish, Parkettböden, Fußbodenheizung, attraktive Bäder in exklusiven Design u.v.m. Bodentiefe Fenster und breite Glasfronten holen Licht und Sonne in die Räume. Von Balkon, Terrasse oder Loggia in Südostlage fällt der Blick weit über den Klosterplatz in Richtung Merkurberg.

Weitere Details: Video-Gegensprechanlage, Tiefgarage, 1 Wohnung in barrierefreier Ausführung, Lift, Gasbrennwert-Therme mit Solarunterstützung, Designbäder, hochwertige Holzrahmenfenster mit 3-fach Verglasung, funkgesteuerte Rollläden, sichere Wohnungseingangstüren mit Schalldämmung, Außenwasseranschluss für Begrünung, eigener Gartenanteil in EG-Wohnungen, extrabreiter Garagenplatz in der Tiefgarage gegen Aufpreis.

Vereinbaren Sie jetzt Ihren persönlichen Termin, wir freuen uns auf Sie.

Ler mais

Localizações

Descrição

Baden-Baden liegt im Südwesten Deutschlands und ist weltweit bekannt für seine Thermalheilbäder, als ansehnlicher Urlaubsort, sowie als Medien-, Kunst und internationale Festspielstadt.

Nirgendwo sonst findet man so viel Flair und exklusive Lebensart im angenehmen Rahmen einer grünen, überschaubaren Stadt mit dem wohlerhaltenen Charme der Belle Epoche. Ob Wellness, Kultur, Sport, oder Gastronomie, die Angebote sind genau so vielfältig wie erstklassig. Die Stadt, auch bekannt als Sommerhauptstadt Europas, wurde für die UNESCO-Liste des Weltkulturerbes vorgeschlagen und normiert.

Die hier angebotene Immobilie befindet sich in bester und stadtnaher Lage von Baden-Baden und liegt unweit vom Kurhaus und der Lichtentaler Allee. Zum Festspielhaus benötigen Sie von hier aus nur wenige Gehminuten. Die Innenstadt und alle Läden des täglichen Bedarfs sind fußläufig zu erreichen.

Ler mais

Características

  • Hochwertige Ausstattung
  • Energieeffizienz KFW 55 - Massivhaus nach EnEV 2016

Outras informações

Es liegt ein Energiebedarfsausweis vor. Dieser ist gültig bis 19.8.2030. Endenergiebedarf beträgt 40.00 kwh/(m²*a). Wesentlicher Energieträger der Heizung ist Gas. Das Baujahr des Objekts lt. Energieausweis ist 2021. Die Energieeffizienzklasse ist A.

GELDWÄSCHE: Als Immobilienmaklerunternehmen ist die von Poll Immobilien GmbH nach § 2 Abs. 1 Nr. 14 und § 11 Abs. 1, 2 Geldwäschegesetz (GwG) dazu verpflichtet, bei der Begründung einer Geschäftsbeziehung die Identität des Vertragspartners festzustellen und zu überprüfen, bzw. sobald ein ernsthaftes Interesse an der Durchführung des Immobilienkaufvertrages besteht. Hierzu ist es erforderlich, dass wir nach § 11 Abs. 4 GwG die relevanten Daten Ihres Personalausweises festhalten (wenn Sie als natürliche Person handeln) – beispielsweise mittels einer Kopie. Bei einer juristischen Person benötigen wir eine Kopie des Handelsregisterauszugs, aus welchem der wirtschaftlich Berechtigte hervorgeht. Das Geldwäschegesetz sieht vor, dass der Makler die Kopien bzw. Unterlagen fünf Jahre aufbewahren muss. Als unser Vertragspartner haben Sie auch ein Mitwirkungspflicht nach § 11 Abs. 6 GwG.

HAFTUNG: Wir weisen darauf hin, dass die von uns weitergegebenen Objektinformationen, Unterlagen, Pläne etc. vom Verkäufer bzw. Vermieter stammen. Eine Haftung für die Richtigkeit oder Vollständigkeit der Angaben übernehmen wir daher nicht. Es obliegt daher unseren Kunden, die darin enthaltenen Objektinformationen und Angaben auf ihre Richtigkeit hin zu überprüfen. Alle Immobilienangebote sind freibleibend und vorbehaltlich Irrtümer, Zwischenverkauf- und Vermietung oder sonstiger Zwischenverwertung.

UNSER SERVICE FÜR SIE ALS EIGENTÜMER: Planen Sie den Verkauf oder die Vermietung Ihrer Immobilie, so ist es für Sie wichtig, deren Marktwert zu kennen. Lassen Sie kostenfrei und unverbindlich den aktuellen Wert Ihrer Immobilie professionell durch einen unserer Immobilienspezialisten einschätzen. Unser bundesweites und internationales Netzwerk ermöglicht es uns, Verkäufer bzw. Vermieter und Interessenten bestmöglich zusammenzuführen.

Ler mais

76534 BADEN-BADEN

Premium Wohnen an der Lichtentaler Allee Whg #2

ca. 199 m² 5 Quartos 1.560.000 EUR

Fornecedor
  • Rainer Harter
  • Loja Baden-Baden
  • Lichtentaler Straße 73
  • 76530 Baden-Baden