Baugrundstück am Waldrand
32457 PORTA WESTFALICA – KLEINENBREMEN
Baugrundstück am Waldrand
40.000 EUR
Área do terreno ca. 494 m²
Preço de compra 40.000 EUR
Fornecedor
  • Peter Hofmann
  • Loja Minden
  • Kampstraße 37
  • 32423 Minden
A aplicação é carregada...

Pedido de informações sobre o imóvel

Preencha o formulário e os nossos especialistas imobiliários entrarão em contacto consigo em breve.

Os seus dados pessoais

A sua candidatura será tratada de forma confidencial.

Visão geral

Destaques

Detalhes

Número da propriedade

25231027

Tipo de casa

Terreno

Comissão para arrendatários

Käuferprovision beträgt 4,76 % (inkl. MwSt.) des beurkundeten Kaufpreises

Informações sobre energia

N/A

Descrição

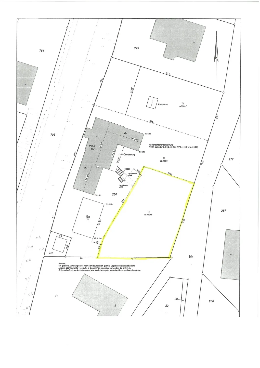
Bauen Sie Ihr Traumhaus auf einem Baugrundstück in einer ruhigen Wohnlage mit guter Anbindung.

Eine positive Bauvoranfrage für die Bebauung mit einem Einfamilienhaus liegt vor.

Zum Verkauf steht ein erschlossenes Grundstück mit 494 m² Größe. Der Anschluss an die in der Straße vorhandenen Versorgungsleitungen zu den üblichen Bedingungen ist unkompliziert möglich. Ebenfalls zum Verkauf steht das Nachbargrundstück mit 531m² Areal.

Für das Wohngebiet liegt aktuell kein Bebauungsplan vor. Die Bebauung muss sich nach § 34 in die Nachbarbebauung einfügen.

Gerne stehen wir Ihnen bei weiteren Fragen zur Verfügung.

Ler mais

Localizações

Descrição

Porta Westfalica ist eine Stadt mit rund 37.000 Einwohnern im Kreis Minden-Lübbecke. Sie liegt im nordöstlichen Nordrhein-Westfalen, in der Region Ostwestfalen-Lippe zwischen Minden und Bielefeld; überwiegend östlich der Weser gelegen.

Die Stadt gehört zum landschaftlich attraktiven Weserbergland und bietet mit ihren zahlreichen Seen und Wäldern ein umfangreiches Natur- und Freizeiterlebnis.

Als Zentrum und Verwaltungssitz fungiert der Stadtteil Hausberge (ca. 5 km entfernt).

Das Grundstück liegt an einer Sackgasse im Ortsteil Kleinenbremen. Den Bahnhof in Bückeburg oder die Autobahn A2 kann man in wenigen Minuten mit dem PKW erreichen.

Kleinenbremen selbst hat viel zu bieten, z.B. einen Edeka Markt, Bäcker, Fleischer, Kindergarten, Grundschule und noch viel mehr direkt vor Ort.

Die Altstadt Rinteln oder die Residenzstadt Bückeburg sind in wenigen Minuten mit dem Auto zu erreichen.

Die nächstgelegenen Großstädte sind Bielefeld (48 Kilometer südwestlich gelegen), Osnabrück (75 km westlich) und Hannover (70 km nordöstlich).

Ler mais

Outras informações

GELDWÄSCHE: Als Immobilienmaklerunternehmen ist die von Poll Immobilien GmbH nach § 2 Abs. 1 Nr. 14 und § 11 Abs. 1, 2 Geldwäschegesetz (GwG) dazu verpflichtet, bei der Begründung einer Geschäftsbeziehung die Identität des Vertragspartners festzustellen und zu überprüfen, bzw. sobald ein ernsthaftes Interesse an der Durchführung des Immobilienkaufvertrages besteht. Hierzu ist es erforderlich, dass wir nach § 11 Abs. 4 GwG die relevanten Daten Ihres Personalausweises festhalten (wenn Sie als natürliche Person handeln) – beispielsweise mittels einer Kopie. Bei einer juristischen Person benötigen wir eine Kopie des Handelsregisterauszugs, aus welchem der wirtschaftlich Berechtigte hervorgeht. Das Geldwäschegesetz sieht vor, dass der Makler die Kopien bzw. Unterlagen fünf Jahre aufbewahren muss. Als unser Vertragspartner haben Sie auch ein Mitwirkungspflicht nach § 11 Abs. 6 GwG. PROVISIONSHINWEIS: Mit der Anfrage bei und durch Inanspruchnahme der Dienstleistung der Firma von Poll Immobilien GmbH, wird ein Maklervertrag geschlossen. Sofern es durch die Tätigkeit der Firma VON POLL IMMOBILIEN GmbH zu einem wirksamen Hauptvertrag mit der Eigentümerseite kommt, hat der Interessent bei Abschluss - eines MIETVERTRAGES keine Provision/Maklercourtage an die von Poll Immobilien GmbH zu zahlen. - eines KAUFVERTRAGES die ortsübliche Provision/Maklercourtage an die von Poll Immobilien GmbH gegen Rechnung zu zahlen. HAFTUNG: Wir weisen darauf hin, dass die von uns weitergegebenen Objektinformationen, Unterlagen, Pläne etc. vom Verkäufer bzw. Vermieter stammen. Eine Haftung für die Richtigkeit oder Vollständigkeit der Angaben übernehmen wir daher nicht. Es obliegt daher unseren Kunden, die darin enthaltenen Objektinformationen und Angaben auf ihre Richtigkeit hin zu überprüfen. Alle Immobilienangebote sind freibleibend und vorbehaltlich Irrtümer, Zwischenverkauf- und Vermietung oder sonstiger Zwischenverwertung.

UNSER SERVICE FÜR SIE ALS EIGENTÜMER: Planen Sie den Verkauf oder die Vermietung Ihrer Immobilie, so ist es für Sie wichtig, deren Marktwert zu kennen. Lassen Sie kostenfrei und unverbindlich den aktuellen Wert Ihrer Immobilie professionell durch einen unserer Immobilienspezialisten einschätzen. Unser bundesweites und internationales Netzwerk ermöglicht es uns, Verkäufer bzw. Vermieter und Interessenten bestmöglich zusammenzuführen.

Ler mais

32457 PORTA WESTFALICA – KLEINENBREMEN

Baugrundstück am Waldrand

ca. 494 m² 40.000 EUR

Fornecedor
  • Peter Hofmann
  • Loja Minden
  • Kampstraße 37
  • 32423 Minden