Titelbild
12167 BERLIN – STEGLITZ
Charmantes Apartment mit Sonnenbalkon
185.000 EUR
Área ca. 38 m²
Quartos 1
Preço de compra 185.000 EUR
Fornecedor
  • Nicole Pötter
  • Loja Berlim - Centro
  • Französische Straße 14
  • 10117 Berlin
A aplicação é carregada...

Pedido de informações sobre o imóvel

Preencha o formulário e os nossos especialistas imobiliários entrarão em contacto consigo em breve.

Os seus dados pessoais

A sua candidatura será tratada de forma confidencial.

Visão geral

Destaques

Cozinha embutida
Varanda

Detalhes

Número da propriedade

25331051

Método de construção

Sólido

Modernização / Reciclagem

1960

Casas de banho

1

Ano de construção

1960

Quartos

1

Comissão para arrendatários

Käuferprovision beträgt 3,57 % (inkl. MwSt.) des beurkundeten Kaufpreises

Informações sobre energia

Escala

E

Classe de eficiência energética

E

Consumo final de energia

140,00 kWh/m²a

Certificado Energético

Certificado de consumo de energia

Certificado Energético válido até

22.11.2034

Ano de construção de acordo com o certificado energético

1960

Fonte de Energia

Gás natural leve

Aquecimento

Gás

Sistemas de aquecimento

Aquecimento central

Descrição

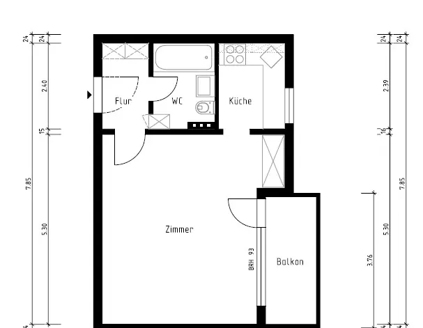
Dieses charmante Apartment befindet sich im beliebten Berliner Stadtteil Steglitz und überzeugt durch seinen sonnigen Balkon sowie eine kompakte und funktionale Raumaufteilung. Auf rund 38 m² Wohnfläche bietet die Wohnung einen hellen Wohn- und Schlafbereich, eine praktische Einbauküche sowie ein Badezimmer. Der circa 6 m² große Balkon lädt zum Entspannen ein und sorgt für zusätzlichen Wohnkomfort. Das Apartment liegt im 3. Obergeschoss eines gepflegten Mehrfamilienhauses aus dem Jahr 1960, welches über einen Personenaufzug verfügt. Ein Kellerabteil ist ebenfalls vorhanden. Beheizt wird die Immobilie über eine Gas-Zentralheizung, die Fenster sind doppelt verglast.

Die Wohnung eignet sich sowohl für Eigennutzer, die ein gemütliches Zuhause in zentraler Lage suchen, als auch für Kapitalanleger, die von der attraktiven Lage profitieren möchten.

Die Lage ist besonders attraktiv: Mitten in Steglitz gelegen, profitieren Sie von einer hervorragenden Infrastruktur, vielfältigen Einkaufsmöglichkeiten, Gastronomie sowie einer sehr guten Anbindung an den öffentlichen Nahverkehr. Grünanlagen wie der Stadtpark Steglitz oder der Insulaner-Park bieten zudem beste Möglichkeiten zur Erholung.

Ler mais

Localizações

Descrição

Die Wohnung liegt in einer begehrten Wohngegend im charmanten Berliner Stadtteil Steglitz. Die Umgebung besticht durch eine perfekte Balance aus urbanem Leben und entspannter Wohnruhe. In fußläufiger Entfernung finden sich alle Einrichtungen des täglichen Bedarfs: Supermärkte, Bäckereien, Drogerien und Apotheken sind bequem erreichbar und ermöglichen einen unkomplizierten Alltag.

Für den spontanen Einkauf oder die entspannte Mittagspause laden nahegelegene Cafés und kleine Boutiquen zum verweilen ein. Die gepflegte Nachbarschaft wird von zahlreicher Gastronomie bereichert – von klassischer Berliner Bistrokultur bis zu modernen Kaffeehäusern – wodurch sich eine lebendige, aber zugleich gemütliche Atmosphäre ergibt.

Erholung und Natur sind hier in greifbarer Nähe. Der Stadtpark Steglitz bietet ruhige Wege unter alten Bäumen und ein willkommenes Durchatmen vom städtischen Treiben. Auch der beliebte Insulaner-Park mit seinem historisch interessanten Freiluftprogramm verspricht entspannte Stunden im Freien. Kinderfreundliche Grünflächen und Spielmöglichkeiten runden das Freizeitangebot ideal ab.

Die Verkehrsanbindung ist ausgezeichnet: Mehrere Buslinien in der Nachbarschaft stellen eine schnelle Verbindung zu nahegelegenen Bahnhöfen her, von denen aus man über S- und U-Bahnlinien sehr zügig ins Zentrum oder andere Stadtteile gelangt. Innerhalb weniger Minuten erreicht man verkehrstechnische Knotenpunkte, die zahlreiche Wege in alle Richtungen eröffnen – schnell, zuverlässig und bequem.

Zudem profitieren Familien und Anwohner gleichermaßen von der ausgezeichneten Infrastruktur: Kindertagesstätten, eine Grundschule sowie medizinische Praxen sind ohne großen Aufwand erreichbar – ideal für Familien mit kleinen Kindern oder für Menschen, die Wert auf kurze Wege legen.

Diese Lage verbindet urbanen Komfort, Naturnähe und hervorragende Verkehrsanbindung auf besonders harmonische Weise – ein Lebensraum, der Alltagserleichterung, Lebensqualität und Wohnanspruch gleichermaßen vereint.

Ler mais

Outras informações

Es liegt ein Energieverbrauchsausweis vor. Dieser ist gültig bis 22.11.2034. Endenergieverbrauch beträgt 140.00 kwh/(m²*a). Wesentlicher Energieträger der Heizung ist Erdgas leicht. Das Baujahr des Objekts lt. Energieausweis ist 1960. Die Energieeffizienzklasse ist E.

Ler mais

12167 BERLIN – STEGLITZ

Charmantes Apartment mit Sonnenbalkon

ca. 38 m² 1 Quartos 185.000 EUR

Fornecedor
  • Nicole Pötter
  • Loja Berlim - Centro
  • Französische Straße 14
  • 10117 Berlin