Gartenansicht
66787 WADGASSEN
*R E S E R V I E R T* Traumhafte Doppelhaushälfte in erstklassiger Lage
498.000 EUR
Living Space ca. 146 m²
Land area ca. 330 m²
Rooms 5
Purchase Price 498.000 EUR
Provider
  • Marie-Louise Frank
  • Shop Saarlouis
  • Großer Markt 4
  • 66740 Saarlouis
Application is loaded...

Real estate inquiry

Fill out the form and our real estate experts will get back to you shortly.

Your personal data

Your application will be treated confidentially.

Overview

Highlights

Terrace
Guest WC
Balcony

Details

Property ID

26171242

Construction method

Solid

Parking space

1 x Outdoor parking space, 1 x Garage

Modernisation / Refurbishment

2024

Condition of property

Well-maintained

Bathrooms

1

Year of construction

2004

Bedrooms

2

Commission

Käuferprovision beträgt 3,57 % (inkl. MwSt.) des beurkundeten Kaufpreises

Energy information

Scale

D

Energy efficiency class

D

Final energy demand

127,60 kWh/m²a

Energy Certificate

Energy demand certificate

Energy certificate valid until

28.01.2036

Year of construction according to energy certificate

2004

Energy Source

Gas

Power Source

Gas

Type of heating

Underfloor heating

Description

Diese schöne und äußerst gepflegte Doppelhaushälfte mit südwestlicher Gartenausrichtung befindet sich in einer begehrten Wohnlage und bietet eine Wohnfläche von ca. 146 m² auf einem 330 m² großen Grundstück. Die Immobilie kann ab 21.02.26 besichtigt werden und überzeugt durch ihre gepflegte Erscheinung und ihren hervorragenden Zustand – hier können Sie direkt einziehen, wohnen und sich wohlfühlen.

Bereits im Eingangsbereich empfängt Sie eine kleine Diele, die nahtlos in die Wohnräume überleitet. Hier befinden sich eine Garderobe sowie ein Gäste-WC. Der offen gestaltete Küchenbereich geht fließend in den großzügigen Wohn- und Essbereich über und schafft ein modernes, kommunikatives Raumgefühl. Die Küche ist mit hochwertigen Elektrogeräten ausgestattet und fügt sich harmonisch in das Gesamtbild ein. Bodentiefe Fenster auf beiden Seiten sorgen für ein außergewöhnlich helles Ambiente – selbst an Wintertagen profitieren Sie von optimalem Tageslichteinfall.

Vom Wohnbereich aus gelangen Sie auf die südwestlich ausgerichtete Terrasse und in den überaus gepflegten Garten. Dieser bietet nicht nur ausreichend Platz zum Entspannen und Genießen, sondern verfügt auch über ein praktisches Gartenhäuschen zur Unterbringung von Gartenmöbeln und Geräten. Die Garage ist besonders funktional konzipiert: Zwei Tore ermöglichen eine komfortable Zufahrt sowohl von vorne als auch von der Gartenseite – ein deutlicher Mehrwert im Alltag. Zusätzlich wurde bereits eine Wallbox integriert, sodass das Laden eines Elektrofahrzeugs bequem und zukunftssicher direkt am Haus möglich ist.

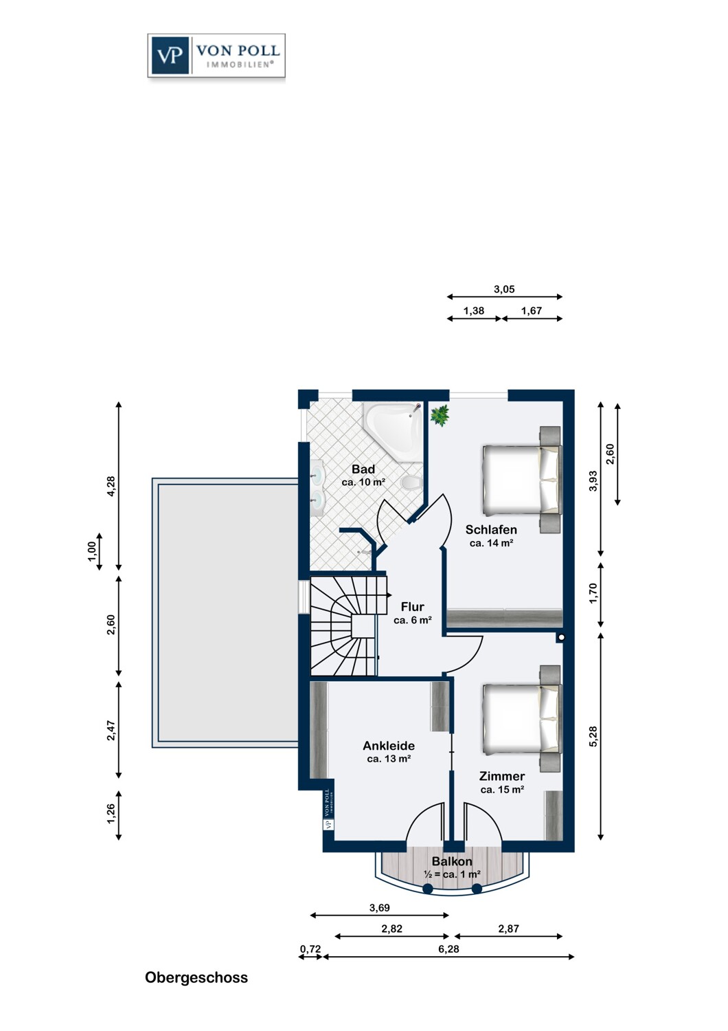
Im Obergeschoss erwarten Sie zwei helle Schlafzimmer sowie ein großzügiges Badezimmer mit Badewanne und Dusche. Auch hier schaffen bodentiefe Fenster eine freundliche, lichtdurchflutete Atmosphäre. In einem der Schlafzimmer wurde ein Ankleidezimmer integriert. Dieses kann bei Bedarf wieder als separates Zimmer genutzt werden und bietet somit zusätzliche Flexibilität in der Raumgestaltung.

Der gepflegte Keller ergänzt das Raumangebot sinnvoll: Neben einem Vorratsraum sowie einem Wasch- und Trockenraum steht Ihnen ein weiterer Raum zur Verfügung, der derzeit als Büro genutzt wird und sich alternativ hervorragend als Fitnessraum eignet.

Das gesamte Haus ist mit einer Fußbodenheizung sowie elektrischen Rollläden ausgestattet und bietet somit modernen Wohnkomfort auf hohem Niveau. In dieser Immobilie wurden ausschließlich hochwertige Materialien wie Granit, Edelstahl und Feinsteinzeug verarbeitet. Zudem ist bereits Glasfaser verlegt – beste Voraussetzungen für zeitgemäßes, komfortables Wohnen und Arbeiten von zu Hause.

Diese Immobilie vereint Qualität, Funktionalität und eine attraktive Lage – ein ideales Zuhause für alle, die Wert auf gepflegtes Wohnen in ansprechender Umgebung legen.

Gerne präsentieren wir Ihnen diese besondere Immobilie persönlich im Rahmen einer individuellen Besichtigung und stimmen hierzu einen gemeinsamen Termin nach Ihren zeitlichen Möglichkeiten ab. Wir bitten um Verständnis, dass vor Vereinbarung eines Besichtigungstermins ein entsprechender Finanzierungs- bzw. Banknachweis vorzulegen ist.

Wir freuen uns auf Ihre Kontaktaufnahme.

Read more

Location

Description

Die gepflegte Doppelhaushälfte befindet sich in einem ruhigen und gewachsenen Ortsteil der Gemeinde Wadgassen im Landkreis Saarlouis. Die Umgebung ist geprägt von einer angenehmen Wohnatmosphäre mit überwiegend Ein- und Zweifamilienhäusern sowie großzügigen Grünflächen. Felder und Waldgebiete in unmittelbarer Nähe laden zu Spaziergängen, sportlichen Aktivitäten und zur Naherholung ein.

Die Infrastruktur ist sehr gut ausgebaut. Einkaufsmöglichkeiten für den täglichen Bedarf sind bequem fußläufig erreichbar. Darüber hinaus befinden sich verschiedene Schulen, Kindergärten, Ärzte und Apotheken im näheren Umfeld, wodurch eine familienfreundliche und komfortable Wohnsituation gewährleistet ist.

Die Verkehrsanbindung ist als optimal zu bezeichnen. Die Autobahnanschlüsse in Richtung Saarlouis, Merzig und Luxemburg sowie in Richtung Saarbrücken sind in wenigen Fahrminuten erreichbar. Somit ist sowohl eine schnelle regionale als auch überregionale Anbindung gegeben, was den Standort insbesondere für Berufspendler attraktiv macht.

Insgesamt verbindet die Lage eine ruhige, naturnahe Wohnqualität mit einer guten Infrastruktur und einer ausgezeichneten Verkehrsanbindung.

Read more

Features

  • FUSSBODENHEIZUNG
  • WALLBOX
  • ELEKTRISCHE ROLLLÄDEN
  • BODENTIEFE FENSTER
  • BUS-SCHALTUNG FÜR ROLLLÄDEN
  • EINBAUKÜCHE INKL ELEKTROGERÄTE
  • BIOHORT GARTENHAUS
  • EDELSTAHL
  • FEINSTEINFLIESEN
  • GRANIT
  • SPRECHANLAGE
  • PFLASTERSTEINE ERNEURT
  • TERRASSENBELAG ERNEUERT

Miscellaneous

GELDWÄSCHE: Als Immobilienmaklerunternehmen ist die von Poll Immobilien GmbH nach § 2 Abs. 1 Nr. 14 und § 11 Abs. 1, 2 Geldwäschegesetz (GwG) dazu verpflichtet, bei der Begründung einer Geschäftsbeziehung die Identität des Vertragspartners festzustellen und zu überprüfen, bzw. sobald ein ernsthaftes Interesse an der Durchführung des Immobilienkaufvertrages besteht. Hierzu ist es erforderlich, dass wir nach § 11 Abs. 4 GwG die relevanten Daten Ihres Personalausweises festhalten (wenn Sie als natürliche Person handeln) – beispielsweise mittels einer Kopie. Bei einer juristischen Person benötigen wir eine Kopie des Handelsregisterauszugs, aus welchem der wirtschaftlich Berechtigte hervorgeht. Das Geldwäschegesetz sieht vor, dass der Makler die Kopien bzw. Unterlagen fünf Jahre aufbewahren muss. Als unser Vertragspartner haben Sie auch eine Mitwirkungspflicht nach § 11 Abs. 6 GwG.

HAFTUNG: Wir weisen darauf hin, dass die von uns weitergegebenen Objektinformationen, Unterlagen, Pläne etc. vom Verkäufer bzw. Vermieter stammen. Eine Haftung für die Richtigkeit oder Vollständigkeit der Angaben übernehmen wir daher nicht. Es obliegt daher unseren Kunden, die darin enthaltenen Objektinformationen und Angaben auf ihre Richtigkeit hin zu überprüfen. Alle Immobilienangebote sind freibleibend und vorbehaltlich Irrtümer, Zwischenverkauf- und Vermietung oder sonstiger Zwischenverwertung.

UNSER SERVICE FÜR SIE ALS EIGENTÜMER: Planen Sie den Verkauf oder die Vermietung Ihrer Immobilie, so ist es für Sie wichtig, deren Marktwert zu kennen. Lassen Sie kostenfrei und unverbindlich den aktuellen Wert Ihrer Immobilie professionell durch einen unserer Immobilienspezialisten einschätzen. Unser bundesweites und internationales Netzwerk ermöglicht es uns, Verkäufer bzw. Vermieter und Interessenten bestmöglich zusammenzuführen.

Read more

Floor Plan

ERDGESCHOSS
OBERGESCHOSS
KELLERGESCHOSS

66787 WADGASSEN

*R E S E R V I E R T* Traumhafte Doppelhaushälfte in erstklassiger Lage

ca. 146 m² 5 Rooms 498.000 EUR

Provider
  • Marie-Louise Frank
  • Shop Saarlouis
  • Großer Markt 4
  • 66740 Saarlouis