Titelbild
22299 HAMBURG – WINTERHUDE
Charmante Dachgeschosswohnung am Lattenkamp!
449.000 EUR
Living Space ca. 73,66 m²
Rooms 2
Purchase Price 449.000 EUR
Provider
  • Matthias Preuß
  • Shop Hamburg - Alster East
  • Papenhuder Straße 27
  • 22087 Hamburg
Application is loaded...

Real estate inquiry

Fill out the form and our real estate experts will get back to you shortly.

Your personal data

Your application will be treated confidentially.

Overview

Highlights

Built-in kitchen

Details

Property ID

25187021

Construction method

Solid

Modernisation / Refurbishment

2025

Condition of property

Well-maintained

Bathrooms

1

Year of construction

1927

Bedrooms

1

Commission

Käuferprovision beträgt 3,57 % (inkl. MwSt.) des beurkundeten Kaufpreises

Energy information

Scale

E

Energy efficiency class

E

Final energy consumption

132,00 kWh/m²a

Energy Certificate

Energy consumption certificate

Energy certificate valid until

07.07.2028

Year of construction according to energy certificate

1927

Energy Source

Gas

Power Source

Gas

Type of heating

Central heating

Description

Im Lattenkamp gelegen überzeugt schon die gute Infrastruktur und die schöne Umgebung samt seiner herrlichen Altbauten und vielfältigen Möglichkeiten.

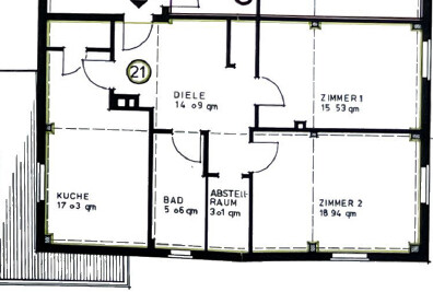
Diese charmante 2-Zimmer-Dachgeschosswohnung befindet sich in einem gepflegten und unter Denkmalschutz stehenden Mehrfamilienhaus aus dem Jahr 1927 und bietet auf ca. 74 m² einen durchdachten Grundriss mit vielen praktischen Highlights.

Bereits der überaus großzügige Flur vermittelt ein offenes Raumgefühl und verbindet sämtliche Wohnbereiche miteinander. Er bietet durch zwei praktische Abstellräume zusätzlichen Nutzen. Sie können zum Beispiel zum Verstauen, oder auch als begehbare Ankleide genutzt werden. Die Wohnküche überzeugt durch ihre Größe und bietet ausreichend Platz für einen Esstisch – ideal für gemütliche Stunden mit Freunden und herrlichem Ausblick über die Dächer des Lattenkamps. Direkt abgehend von der Wohnküche befindet sich eine kleine Speisekammer, die Platz für die Vorräte und Küchengeräte bietet. Das Badezimmer ist derzeit mit einer Badewanne ausgestattet und funktional gestaltet. Die beiden Zimmer mit ca. 19 m² und ca. 16 m² sind gut proportioniert und vielseitig nutzbar – ob als Schlaf-, Arbeits- oder Wohnraum.

Diese Wohnung überzeugt durch ihre klare Raumaufteilung, ihre vielseitigen Nutzungsmöglichkeiten sowie das Potenzial für individuelle Gestaltung und Modernisierung – ideal für Eigennutzer oder auch Kapitalanleger. Sie ist auch sehr gut als WG geeignet. Die Gemeinschaft im Haus ist unkompliziert und angenehm.

Das Wohngeld beträgt derzeit 316 € inklusive Heizkosten und der 80 € für die Rücklage. Zur Wohnung gehört außerdem ein eigener kleiner Kellerraum, der zusätzlichen Stauraum bietet.

Gerne vereinbaren wir einen individuellen Besichtigungstermin mit Ihnen.

Read more

Location

Description

Winterhude: Dieser wunderschöne Stadtteil zählt nicht umsonst zu einem der exklusivsten und begehrtesten Stadtteile Hamburgs. Wer hier lebt, braucht diesen Stadtteil eigentlich gar nicht mehr verlassen: Urbanes Leben mit Kultur, Shopping und kulinarischen Highlights (z.B. Fleisch- Fisch- und Teeladen ) auf der Alsterdorfer Straße sorgen für viel Abwechslung. Freizeitaktivitäten im nur wenige Schritte entferntem Stadtpark und vor allem viel, viel Grün und das Wasser der Alster machen Winterhude einzigartig und besonders lebenswert. Alles liegt in wenigen Minuten zu Fuß vor der Tür.

Der allseits beliebte Goldbekmarkt oder auch der Winterhuder Markt laden zusätzlich zum Shoppen ein.

Winterhude – ein einst kleines Bauerndörfchen – ist heute ein vielseitiger und trendiger Stadtteil, der im Bezirk Hamburg-Nord liegt. Winterhude selbst ist mit ca. 55.000 Einwohnern einer der größten Stadtteile der Hansestadt. Europas Modellstadt der Moderne, die City Nord ist einer der wichtigsten Wirtschaftsstandorten Hamburgs und ebenfalls Teil dieses mit herrlichen Altbaufassaden durchzogenen Stadtteils.

Die bekannteste Grünfläche in Winterhude ist zweifellos der Stadtpark mit dem Stadtparksee und dem beliebten Planetarium. Südlich begrenzt wird Winterhude durch die als Segel-Mekka bekannte Außenalster mit ihren schönen Spazierwegen. Die gut 7,5 km eignen sich hervorragend als Rundwanderweg oder als Joggingstrecke mitten in Hamburg. Weitere Sport- und Freizeitangebote wie z.B. Tennis und Hockey (Harvestehuder Tennis und Hockey Club), das exklusive Fitnessstudio „Aspria“ mit Hallen- und Freibad sowie Saunalandschaft, als auch Stand Up Paddling, Ruder- und Sportvereine sind in Kürze zu erreichen. Hier haben Sie reichlich Möglichkeiten Ihre Freizeit zu genießen.

Die Nachbarschaft Winterhudes etabliert sich durch die Stadtteile Alsterdorf im Norden, Barmbek – Nord im Osten, Uhlenhorst und Barmbek – Süd im Süden sowie Eppendorf und Harvestehude im Westen. Auch das über die Grenzen bekannte Krankenhaus UKE ist in nur 8 MInuten mit dem Auto oder 9 Minuten mit dem Rad zu erreichen! Die U-Bahnlinien U1 (Lattenkamp) und diverse Buslinien (u. a. Metrobusse 6, 17 und 25) erschließen den Stadtteil und sorgen für kurze Wege. Durch die zentrale Lage Winterhudes ist das einfache Erreichen des Hauptbahnhofes, des Flughafens und der großen Ausfahrtsstraßen garantiert.

Read more

Miscellaneous

Es liegt ein Energieverbrauchsausweis vor. Dieser ist gültig bis 7.7.2028. Endenergieverbrauch beträgt 132.00 kwh/(m²*a). Wesentlicher Energieträger der Heizung ist Gas. Das Baujahr des Objekts lt. Energieausweis ist 1927. Die Energieeffizienzklasse ist E.

GELDWÄSCHE: Als Immobilienmaklerunternehmen ist die von Poll Immobilien GmbH nach § 2 Abs. 1 Nr. 14 und § 11 Abs. 1, 2 Geldwäschegesetz (GwG) dazu verpflichtet, bei der Begründung einer Geschäftsbeziehung die Identität des Vertragspartners festzustellen und zu überprüfen, bzw. sobald ein ernsthaftes Interesse an der Durchführung des Immobilienkaufvertrages besteht. Hierzu ist es erforderlich, dass wir nach § 11 Abs. 4 GwG die relevanten Daten Ihres Personalausweises festhalten (wenn Sie als natürliche Person handeln) – beispielsweise mittels einer Kopie. Bei einer juristischen Person benötigen wir eine Kopie des Handelsregisterauszugs, aus welchem der wirtschaftlich Berechtigte hervorgeht. Das Geldwäschegesetz sieht vor, dass der Makler die Kopien bzw. Unterlagen fünf Jahre aufbewahren muss. Als unser Vertragspartner haben Sie auch eine Mitwirkungspflicht nach § 11 Abs. 6 GwG.

HAFTUNG: Wir weisen darauf hin, dass die von uns weitergegebenen Objektinformationen, Unterlagen, Pläne etc. vom Verkäufer bzw. Vermieter stammen. Eine Haftung für die Richtigkeit oder Vollständigkeit der Angaben übernehmen wir daher nicht. Es obliegt daher unseren Kunden, die darin enthaltenen Objektinformationen und Angaben auf ihre Richtigkeit hin zu überprüfen. Alle Immobilienangebote sind freibleibend und vorbehaltlich Irrtümer, Zwischenverkauf- und Vermietung oder sonstiger Zwischenverwertung.

UNSER SERVICE FÜR SIE ALS EIGENTÜMER: Planen Sie den Verkauf oder die Vermietung Ihrer Immobilie, so ist es für Sie wichtig, deren Marktwert zu kennen. Lassen Sie kostenfrei und unverbindlich den aktuellen Wert Ihrer Immobilie professionell durch einen unserer Immobilienspezialisten einschätzen. Unser bundesweites und internationales Netzwerk ermöglicht es uns, Verkäufer bzw. Vermieter und Interessenten bestmöglich zusammenzuführen.

Read more

Floor Plan

GR Exposé

22299 HAMBURG – WINTERHUDE

Charmante Dachgeschosswohnung am Lattenkamp!

ca. 73,66 m² 2 Rooms 449.000 EUR

Provider
  • Matthias Preuß
  • Shop Hamburg - Alster East
  • Papenhuder Straße 27
  • 22087 Hamburg