Titelbild
82067 ZELL – SCHäFTLARN
Isarflimmern - Haus im Haus - 5 Zimmer + Hobby - Maisonette - Neubau
1.990.000 EUR
Living Space ca. 236 m²
Rooms 5
Purchase Price 1.990.000 EUR
Provider
  • Bianca Stich
  • Shop District of Bad Tölz-Wolfratshausen
  • Untermarkt 1
  • 82515 Wolfratshausen
Application is loaded...

Real estate inquiry

Fill out the form and our real estate experts will get back to you shortly.

Your personal data

Your application will be treated confidentially.

Overview

Highlights

Terrace
Guest WC
Garden / shared use
Balcony

Details

Property ID

24289021

Construction method

Solid

Usable floor space

ca. 26 m²

Parking space

1 x Outdoor parking space, 15000 EUR (Sale), 2 x Underground car park, 30000 EUR (Sale)

Condition of property

Projected

Bathrooms

3

Bedrooms

4

Energy information

Energy Certificate

Legally not required

Power Source

Air-to-water heat pump

Type of heating

Underfloor heating

Description

Isarflimmern", a building project by Tschunke Houdek Immobilien GmbH, combines state-of-the-art living with well thought-out architecture, great attention to detail and a clear focus on quality in a perfect location.

Isarflimmern is the name given to the area from Munich to the source of the Isar (called the "raging" by the Celts and still the raging one today), a unique paradox between the sophisticated cosmopolitan city of Munich, the headquarters of 7 DAX-listed global corporations and centuries of tradition in the most beautiful natural landscape.

Isarflimmern is a Bavarian attitude to life or, to give it its full name, the former Bavarian Prime Minister Edmund Stoiber, who lived in the region. Edmund Stoiber "Laptop and Lederhos`n".

Villas and modern detached and semi-detached houses characterize the architectural face of the community.

On the high banks of the Isar in the Zell district, a multi-party house with only 3 residential units and a top-class detached house are being built - pure Isar flicker!

Read more

Location

Description

High above the Isar valley is the municipality of Schäftlarn with its 5 districts and districts Hohenschäftlarn, Kloster Schäftlarn, Neufahrn, Ebenhausen and Zell. Schäftlarn is located right in the middle between cosmopolitan city and mountains - city life and recreation in the Bavarian foothills of the Alps - Five Lakes Region, perfectly connected to the A96 highway (Munich-Garmisch) and the Munich S-Bahn network.

Shopping facilities for daily needs, doctors and pharmacies, three kindergartens, the Schäftlarn elementary school, the grammar school in Kloster Schäftlarn and two further grammar schools in Icking are only a few minutes away.

Thanks to the excellent infrastructural connections, Munich city center can be reached easily and stress-free via the A 95 freeway. You can reach the Ebenhausen-Schäftlarn S-Bahn stop in approx. 10 minutes on foot and are in the heart of Munich, directly at Marienplatz, in approx. 30 minutes.

This combination of urban living, high quality of life and numerous leisure opportunities makes Zell one of the most sought-after residential areas on the high banks of the Isar.

Read more

Features

  • The key data for the maisonette apartment on 3 levels:
  • approx. 239 m² of pure living space
  • approx. 26 m² usable area
  • 5 rooms + hobby room on 3 levels
  • 2 underground parking spaces + outdoor parking space
  • Own spacious south-facing garden
  • Concept house within a house
  • Sophisticated architecture and large windows create a unique sense of space in this maisonette apartment and make the boundaries between indoor and outdoor areas and the terraces almost disappear. On the upper floor, an additional balcony area brings plenty of light into the rooms.
  • All windows, patio and balcony doors are designed as wood-aluminum windows with triple insulating glazing in accordance with the heat requirement calculation. The inside of the windows will be kept classic and timeless in white.
  • Your living rooms, bedrooms, kitchens and hallways will be furnished with high-quality oak planks. Your own ideas can of course also be implemented.
  • A high-quality and exclusive pre-selection of sanitary fittings has been put together for you in collaboration with the company Elements.
  • On the first floor, emphasis is placed on providing space for the whole family in the approx. 67 m² living, dining and cooking area. These rooms can also be separated on request.
  • If you would like to work on the first floor, live on the ground floor as a family member or accommodate a guest, you also have the option of retiring to a separate area with a terrace and en-suite bathroom.
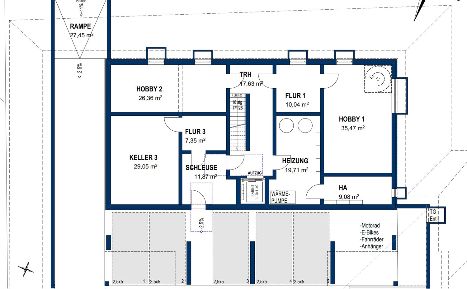
  • A hobby room of approx. 26m² is available in the basement.
  • Modern architecture and design blend perfectly into the landscape.
  • High-quality building materials and exclusive materials in the interior fittings are an immediately visible contribution to lasting sustainability and value retention for generations to come.
  • The energy certificate will be submitted after completion.

Miscellaneous

MONEY LAUNDERING: As a real estate brokerage company, von Poll Immobilien GmbH is obliged under § 2 para. 1 no. 14 and § 11 para. 1, 2 of the Money Laundering Act (GwG) to establish and verify the identity of the contractual partner when establishing a business relationship, or as soon as there is a serious interest in the execution of the real estate purchase contract. For this purpose, it is necessary for us to record the relevant data of your identity card (if you are acting as a natural person) in accordance with § 11 Para. 4 GwG - for example by means of a copy. In the case of a legal entity, we require a copy of the extract from the commercial register showing the beneficial owner. The Money Laundering Act stipulates that the broker must keep the copies or documents for five years. As our contractual partner, you also have a duty to cooperate in accordance with Section 11 (6) GwG.

LIABILITY: We would like to point out that the property information, documents, plans etc. passed on by us originate from the seller or landlord. We therefore accept no liability for the accuracy or completeness of the information. It is therefore the responsibility of our customers to check the correctness of the property information and details contained therein. All real estate offers are non-binding and subject to errors, prior sale and rental or other interim utilization.

OUR SERVICE FOR YOU AS THE OWNER: If you are planning to sell or let your property, it is important for you to know its market value. Have the current value of your property professionally assessed by one of our real estate specialists free of charge and without obligation. Our nationwide and international network enables us to bring sellers or landlords and interested parties together in the best possible way.

Read more

Floor Plan

Untergeschoss
Erdgeschoss
Obergeschoss

82067 ZELL – SCHäFTLARN

Isarflimmern - Haus im Haus - 5 Zimmer + Hobby - Maisonette - Neubau

ca. 236 m² 5 Rooms 1.990.000 EUR

Provider
  • Bianca Stich
  • Shop District of Bad Tölz-Wolfratshausen
  • Untermarkt 1
  • 82515 Wolfratshausen