26419 SCHORTENS / SILLENSTEDE – SILLENSTEDE
Sillenstede: Gepflegter Bungalow mit ausbaufähigem Dachgeschoss
- ca. 132,21 m² Wohnfläche
- ca. 985 m² Grundstück
- 5 Zimmer
- 239.000 EUR Kaufpreis
Übersicht
Highlights
Details
Objektnummer
25284020
Haustyp
Einfamilienhaus
Modernisierung / Sanierung
2010
Zustand der Immobilie
gepflegt
Badezimmer
1
Baujahr
1975
Schlafzimmer
3
Provision
Käuferprovision beträgt 3,57 % (inkl. MwSt.) des beurkundeten Kaufpreises
Energieinformationen
Skala
Energieeffizienzklasse
H
Endenergiebedarf
266,10 kWh/m²a
Energieausweis
Bedarfsausweis
Energieausweis gültig bis
22.07.2035
Baujahr laut Energieausweis
1975
Wesentlicher Energieträger
Erdgas leicht
Befeuerung
Gas
Heizungsart
Zentralheizung
Beschreibung
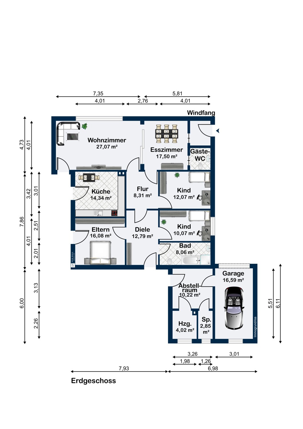
Dieser gepflegte Bungalow aus dem Jahr 1975 liegt im beliebten Schortenser Ortsteil Sillenstede und bietet komfortables Wohnen auf einer Ebene. Das großzügige Grundstück mit sonniger Süd-West-Terrasse und Garten schafft einen Ort, an dem man sofort ankommen und sich wohlfühlen kann. Der Eingangsbereich empfängt Sie mit einem praktischen Windfang und einem Gäste-WC. Im Zentrum des Hauses liegt die helle Wohn- und Essdiele, die als Mittelpunkt alle Räume erschließt. Besonders hervorzuheben ist die große Schiebetür, die von hier aus direkt ins Wohnzimmer führt. So entsteht entweder ein offenes, großzügiges Raumgefühl oder bei geschlossener Tür ein separater Rückzugsort mit viel Gemütlichkeit. Wohnzimmer, Küche und Elternschlafzimmer haben zudem direkten Zugang zur Terrasse und schaffen einen harmonischen Übergang ins Grüne. Zwei weitere Zimmer eignen sich flexibel als Kinder-, Gäste- oder Arbeitszimmer. Ein helles Tageslichtbad mit Dusche und Wanne ergänzt den Grundriss. Die praktischen Nebenräume Abstellkammer, Vorratsraum und Heizungsraum befinden sich direkt angrenzend an die Garage und sorgen für kurze Wege und zusätzlichen Stauraum. Eine Garage sowie Stellplätze direkt am Haus bieten ausreichend Platz für Fahrzeuge. Die Ausstattung des Hauses ist solide. Die Gasheizung stammt aus dem Jahr 2010, in Küche und Badezimmer sorgt eine Fußbodenheizung für angenehme Wärme. Die Fenster sind mit Rollläden ausgestattet, und das ursprüngliche Flachdach wurde 1986 zu einem Satteldach aufgestockt. Besonders interessant ist zudem das ausbaufähige Dachgeschoss, das Raum für individuelle Gestaltungsideen eröffnet. Sillenstede ist ein gewachsener, ruhiger Ortsteil von Schortens mit guter Anbindung. Einkaufsmöglichkeiten für den täglichen Bedarf, Kindergarten und Grundschule sind schnell erreichbar. Zudem bietet der Ort eine gute Verkehrsanbindung nach Wilhelmshaven und in die umliegenden Städte. Dieser Bungalow vereint Gemütlichkeit, praktische Details und Zukunftspotenzial – ein ideales Zuhause für alle, die Wohnen auf einer Ebene mit Garten und Terrasse schätzen. Überzeugen Sie sich selbst von dem besonderen Wohngefühl dieses Bungalows – wir freuen uns, Ihnen die Immobilie bei einer persönlichen Besichtigung vorstellen zu dürfen. Übergabe der Immobilie ist im März/April 2026 möglich!
Lage
Beschreibung
Sillenstede ist einer der besonders familienfreundlichen Ortsteile der Stadt Schortens. Die Regenbogenschule und der Kindergarten Spatzennest liegen nur wenige Meter vom Haus entfernt, was den Alltag mit Kindern spürbar erleichtert. Spielplätze, die Sporthalle und der TuS Sillenstede bieten viele Möglichkeiten für Bewegung und Gemeinschaft. Die Anbindung ist bequem, die Haltestelle für weiterführende Schulen ist in etwa fünf Gehminuten erreichbar. Einkaufsmöglichkeiten für den täglichen Bedarf sind in kurzer Fahrzeit erreichbar oder über den Lieferdienst Picnic von zuhause möglich. Die hausärztliche Versorgung ist im nahen Umfeld gegeben, die nächste Praxis liegt etwa drei Kilometer entfernt. Schortens mit rund 20.800 Einwohnern verbindet urbanen Komfort mit naturnaher Wohnqualität. Familien profitieren von einer stabilen Infrastruktur, einem breiten Bildungsangebot und einer insgesamt sehr guten Lebensqualität. In den vergangenen Jahren entstanden mehrere Wohngebiete, die Einwohnerzahl stieg von etwa 1.800 auf rund 2.100. Die Lage ist ideal für Ausflüge. Nach Wilhelmshaven mit dem Jade-Weser-Port sind es etwa 11 Kilometer, zu den Küstenorten Schillig, Horumersiel und Hooksiel rund 15 Kilometer, nach Jever etwa 7,5 Kilometer. Über die A 29 bestehen schnelle Verbindungen nach Oldenburg und weiter nach Bremen bis zum Flughafen. Wer Natur liebt und mit Kindern, Hund oder Pferd unterwegs ist, findet in Sillenstede ein behütetes Umfeld mit viel Lebensqualität.
Finanzierung
Grundriss

26419 SCHORTENS / SILLENSTEDE – SILLENSTEDE
Sillenstede: Gepflegter Bungalow mit ausbaufähigem Dachgeschoss
ca. 132,21 m² • 5 Zimmer • 239.000 EUR
Anbieter
- Hermann Mehrtens
- Shop Jever
- Wangerstraße 2
- 26441 Jever