88212 RAVENSBURG
Zweifamilienhaus mit Potenzial in zentraler Wohnlage von Ravensburg
- ca. 170 m² Wohnfläche
- ca. 390 m² Grundstück
- 8 Zimmer
- 495.000 EUR Kaufpreis
Übersicht
Highlights
Details
Objektnummer
25258028
Haustyp
Zweifamilienhaus
Modernisierung / Sanierung
2015
Zustand der Immobilie
renovierungsbedürftig
Badezimmer
2
Baujahr
1953
Schlafzimmer
5
Provision
Käuferprovision beträgt 3,57 % (inkl. MwSt.) des beurkundeten Kaufpreises
Energieinformationen
Befeuerung
Gas
Heizungsart
Etagenheizung
Beschreibung
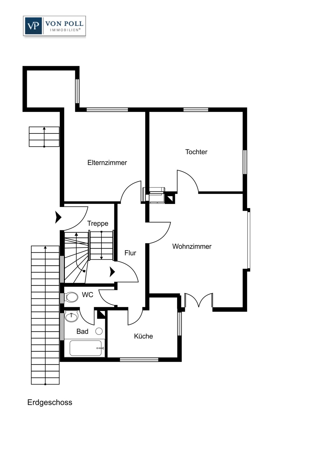
Dieses renovierungsbedürftige Zweifamilienhaus bietet Ihnen vielfältige Möglichkeiten zur individuellen Gestaltung und Nutzung. In begehrter, stadtnaher Lage von Ravensburg gelegen, verbindet es ein familienfreundliches Umfeld mit einer hervorragenden Infrastruktur. Das im Jahr 1953 errichtete Wohnhaus steht auf einem ca. 390 m² großen Grundstück und verfügt über eine Wohnfläche von rund 170 m², verteilt auf insgesamt acht Zimmer. Die Raumaufteilung umfasst fünf Schlafzimmer, zwei Badezimmer mit separater Toilette sowie großzügige Wohn- und Essbereiche, die zahlreiche Nutzungsmöglichkeiten eröffnen. Beide Wohneinheiten sind über ein gemeinsames Treppenhaus zugänglich. Aufgrund der vorhandenen Grundstruktur bietet sich zudem die Möglichkeit, eine dritte Wohneinheit auszubauen. Die Ausstattung entspricht einfachem Standard, das Haus ist renovierungsbedürftig, bietet jedoch eine solide Basis für individuelle Modernisierungen. Wesentliche Arbeiten wurden bereits durchgeführt: •2013: Erneuerung der Gas-Etagenheizung •2015: Sanierung des Daches Weitere Bereiche wie Elektrik, Fenster (teilweise erneuert), Boden- und Wandbeläge stammen überwiegend aus früheren Jahrzehnten und warten darauf, nach Ihren Vorstellungen neu gestaltet zu werden. Diese Immobilie eignet sich ideal für handwerklich versierte Käufer oder Investoren, die das Potenzial erkennen und kreativ ausschöpfen möchten. Ob Sie die bestehenden Einheiten selbst nutzen oder zur Vermietung ausbauen – die Möglichkeiten sind vielfältig. Mit ihrem hohen Entwicklungspotenzial und der zentralen Lage ist dieses Objekt eine interessante Gelegenheit für Individualisten und Familien mit Platzbedarf. Vereinbaren Sie gerne einen Besichtigungstermin und überzeugen Sie sich selbst von den Gestaltungsmöglichkeiten dieses Hauses.
Lage
Beschreibung
Ravensburg ist eine wirtschaftlich stabile Mittelstadt mit rund 50.600 Einwohnern und einer ausgewogenen Altersstruktur. Die sichere und familienfreundliche Stadt bietet eine exzellente Infrastruktur, vielfältige Bildungseinrichtungen und gute Verkehrsanbindungen, darunter Regionalbahn, Autobahn und Flughafen. Dies sorgt für einen dynamischen Immobilienmarkt mit hohen Preisen und stetiger Wertsteigerung, besonders bei Premium- und energieeffizienten Objekten. Das urbane Zentrum überzeugt mit vielfältigen Einkaufsmöglichkeiten wie Norma, Netto und Lidl, die fußläufig erreichbar sind. Die Nähe zu Bushaltestellen („Ravensburg, St. Elisabethen-Klinikum“) und dem Bahnhof Ravensburg gewährleistet optimale Erreichbarkeit. Die medizinische Versorgung ist mit dem MVZ Oberschwabenklinik, St. Elisabethen-Klinikum sowie Fachärzten und Apotheken in wenigen Gehminuten exzellent. Auch das kulturelle und gastronomische Angebot in, unmittelbarer Nähe, bereichert die Lebensqualität. Ravensburg bietet eine Kombination aus Stabilität, Infrastruktur und wachsender Nachfrage – ideale Voraussetzungen für nachhaltige Wertsteigerung und attraktive Renditen.
Finanzierung
Grundriss



88212 RAVENSBURG
Zweifamilienhaus mit Potenzial in zentraler Wohnlage von Ravensburg
ca. 170 m² • 8 Zimmer • 495.000 EUR
Anbieter
- Sylvia Ruchti
- Shop Ravensburg
- Roßbachstraße 17/1
- 88212 Ravensburg