Boutiquehotel, Restaurant & Lebensentwurf im Bayerischen Wald
94139 BREITENBERG
Boutiquehotel, Restaurant & Lebensentwurf im Bayerischen Wald
2.350.000 EUR
Grundstück ca. 3.466 m²
Zimmer 30
Kaufpreis 2.350.000 EUR
Anbieter
  • Mathias Zank
  • Shop Passau
  • Heiliggeistgasse 1
  • 94032 Passau
Bewerbung wird geladen...

Immobilienanfrage

Füllen Sie das Formular aus und unsere Immobilien-Experten melden sich in Kürze bei Ihnen.

Ihre persönlichen Daten

Ihre Bewerbung wird vertraulich behandelt.

Übersicht

Highlights

Details

Objektnummer

26166001

Haustyp

Hotels

Nutzfläche

ca. 390 m²

Stellplatz

12 x Freiplatz

Modernisierung / Sanierung

2016

Baujahr

1907

Provision

Käuferprovision beträgt 3,57 % (inkl. MwSt.) des beurkundeten Kaufpreises

Energieinformationen

Zum Zeitpunkt der Anzeigenerstellung lag kein Energieausweis vor.

Beschreibung

Manchmal stolpert man über Orte, die mehr sind als eine Immobilie. Mehr als Quadratmeter, mehr als Mauern, mehr als Zahlenkolonnen in Excel. Die Villa Breitenberg gehört eindeutig zur zweiten Kategorie. Eine herrschaftliche Gründerzeitvilla in massivem Ziegelbau mit Granitverkleidung, mit weitem Blick in den Böhmerwald, eingebettet in einen gewachsenen Naturgarten – und seit Jahren erfolgreich als Boutiquehotel mit Restaurant betrieben. Ein Ensemble für Menschen, die mehr suchen als nur ein Objekt. Für Gastgeber. Für Individualisten. Für alle, die Arbeiten und Leben nicht trennen wollen.

DAS KONZEPT: Seit dem Umbau 2016/17 befindet sich die Villa in privater Betreiberhand. Zur Verfügung stehen 14 stilvolle Zimmer und 2 Apartments, ergänzt durch eine großzügige und wunderschöne Betreiberwohnung (ca. 161m² Wfl.), ein voll ausgestattetes Restaurant mit Profiküche sowie vielfältige Gemeinschafts- und Veranstaltungsflächen. Alle notwendigen Betriebs- und Nutzungsgenehmigungen liegen vor – inklusive der offiziellen Widmung für standesamtliche Trauungen. Wer selbst kochen möchte, findet hier die perfekte Bühne für ein kleines, feines Restaurant mit persönlicher Handschrift. Wer es reduzierter mag, kann das Anwesen problemlos als Hotel Garni, Retreat- oder Seminarhaus weiterführen. Darüber hinaus eignet sich das Anwesen hervorragend für Stiftungen oder Unternehmen als exklusiver Rückzugs- und Aufenthaltsort für Mitarbeitende.

ZIELGRUPPE: •Betreiberpaare oder Familien mit Gastgebermentalität •Quereinsteiger mit dem Wunsch nach einem anderen Lebensmodell •Hoteliers, Gastronomen oder Individualisten mit Sinn für das Besondere Kein Massenkonzept. Kein Renditeobjekt ohne Seele sondern ein Ort mit Charakter – und tragfähigem wirtschaftlichem Fundament. Ein Ort, an dem man morgens in der Betreiberwohnung Kaffee trinkt, mittags Gäste begrüßt, abends im Garten sitzt – und zwischendurch Geld verdient. Wer so etwas sucht, weiß es meist sofort. Und alle anderen… sind hier schlicht falsch. Das Anwesen befindet sich im laufenden Betrieb. Eine Übernahme ist nach zeitlicher Abstimmung kurzfristig oder mit Übergangsphase möglich.

FAZIT: Die Villa Breitenberg ist etwas ganz Besonders und daher selten. Ein Ort für Gastgeber, Gestalter und alle, die Leben und Wirken neu denken möchten. Solche Immobilien tauchen nicht regelmäßig auf. Und wenn sie weg sind, sind sie weg.

Weiterlesen

Lage

Nahversorgung
Gastronomie
3,3
 / 5
Gesundheit
0,3
 / 5
Freizeit
0,3
 / 5
Familie
Einkaufen
Geräusche
icon Sehen Sie diese und weitere Daten mit Ihrem Kundenkonto – kostenlos
Melden Sie sich an oder registrieren Sie sich in wenigen Minuten, um alle Angaben sehen zu können.
icon Weitere Angaben freischalten
Beschreibung

Die Villa Breitenberg lädt ein, die Natur des Bayerischen Waldes in all ihren Facetten zu entdecken: weite Wälder, stille Seen, tiefe Täler und markante Gipfel sind unmittelbar erlebbar. Direkt vor der Haustür beginnt eine Welt voller Aktivitäten – vom gemütlichen Spaziergang bis zur anspruchsvollen Bergwanderung am Dreisessel. Zahlreiche gut ausgebaute Wege führen durch die Landschaft, darunter Etappen des Goldsteigs und regionaler Rundwege.

Sportbegeisterte finden im Umfeld vielfältige Möglichkeiten: Skigebiet Hochficht ist in wenigen Minuten erreichbar, Langlaufloipen und Radwege durchziehen die Region, und nahegelegene Angebote wie ein 27-Loch-Golfplatz sowie Kletterwald und Baumwipfelpfade runden das Aktivprogramm ab. Die umliegenden Seen und Naturbäder laden im Sommer zum Schwimmen und Entspannen ein.

Auch kulturell und städtisch bietet die Lage enormes Potenzial: reizvolle Städte wie das 30-Autominuten entfernte Passau, das historische Krumau im nahegelegenen Tschechien und das barocke österreichische Schärding mit seinen Sehenswürdigkeiten, kulinarischen Schätzen und kulturellen Highlights sind schnell erreichbar und bereichern das Erlebnis für Gäste wie Betreiber.

Diese Lage ist nicht nur schön – sie ist ein Lebensraum, der Aktivität, Erholung, Inspiration und kulturelle Tiefe miteinander verbindet. Perfekt für Gäste, die Natur und Erlebnis in Balance suchen – und für Gastgeber, die genau dieses Lebensgefühl vermitteln wollen.

Weiterlesen

Ausstattung

  • IMMOBILIE:
  • Herrschaftliche Gründerzeitvilla, Baujahr 1907
  • Massivbauweise mit Granitverkleidung
  • Einmalige, ruhige und diskrete Alleinlage
  • Fernblick in den Böhmerwald
  • Ca. 1.081 m² Gesamtfläche
  • Ca. 3.466 m² Grundstück
  • Kein Durchgangsverkehr
  • GASTGEWERBE:
  • 14 Gästezimmer, 2 Apartments, großzügige Betreiberwohnung
  • Restaurant mit Genehmigung
  • Voll ausgestattete Profiküche
  • Zwei Gasträume
  • Kühlraum und Kühltechnik
  • Alle Betriebsgenehmigungen vorhanden
  • Widmung für standesamtliche Trauungen
  • Seminar- und Veranstaltungsraum (ca. 60 m²)
  • Sauna mit Ruheraum
  • TECHNIK:
  • Pelletheizung Hargassner, 99 kW
  • Pelletbunker ca. 20 m³
  • Pufferspeicher 3.000 Liter
  • Moderne Haustechnik
  • IT-Anlage mit WLAN auf allen Etagen
  • Elektro-Hausanschluss 50 kW
  • Trinkwasseranschluss erneuert
  • Abwasserleitungen teilweise erneuert
  • Drainage und Fundamentabdichtung
  • Blitzschutz vollständig erneuert
  • Brandschutz umfassend verbessert
  • Sicherheitsbeleuchtung installiert
  • Brandmeldeanlage vorhanden
  • Regenwasserzisterne 5.000 Liter
  • AUSSENBEREICH:
  • Naturgarten mit Eventflächen
  • Terrasse und Freischankfläche
  • Markantes Gartenhaus „Blauer Würfel“
  • Fahrradunterstand und Lagerflächen
  • 12 Stellplätze für Gäste
  • Wallbox / Ladesäule vorhanden
  • Garage für einen PKW
  • MÖGLICHKEITEN:
  • Etabliertes Konzept mit Stammgästen
  • Ideal für Gastgeberpaare
  • Auch für Quereinsteiger geeignet
  • Stiftung oder Unternehmensnutzung möglich
  • Mitarbeiter-Retreat oder Urlaubsdomizil
  • Kann im laufenden Betrieb übernommen werden
  • Der Energieausweis wird gerade erstellt und liegt zur Besichtigung vor.

Sonstiges

GELDWÄSCHE: Als Immobilienmaklerunternehmen ist die von Poll Immobilien GmbH nach § 2 Abs. 1 Nr. 14 und § 11 Abs. 1, 2 Geldwäschegesetz (GwG) dazu verpflichtet, bei der Begründung einer Geschäftsbeziehung die Identität des Vertragspartners festzustellen und zu überprüfen, bzw. sobald ein ernsthaftes Interesse an der Durchführung des Immobilienkaufvertrages besteht. Hierzu ist es erforderlich, dass wir nach § 11 Abs. 4 GwG die relevanten Daten Ihres Personalausweises festhalten (wenn Sie als natürliche Person handeln) – beispielsweise mittels einer Kopie. Bei einer juristischen Person benötigen wir eine Kopie des Handelsregisterauszugs, aus welchem der wirtschaftlich Berechtigte hervorgeht. Das Geldwäschegesetz sieht vor, dass der Makler die Kopien bzw. Unterlagen fünf Jahre aufbewahren muss. Als unser Vertragspartner haben Sie auch eine Mitwirkungspflicht nach § 11 Abs. 6 GwG.

HAFTUNG: Wir weisen darauf hin, dass die von uns weitergegebenen Objektinformationen, Unterlagen, Pläne etc. vom Verkäufer bzw. Vermieter stammen. Eine Haftung für die Richtigkeit oder Vollständigkeit der Angaben übernehmen wir daher nicht. Es obliegt daher unseren Kunden, die darin enthaltenen Objektinformationen und Angaben auf ihre Richtigkeit hin zu überprüfen. Alle Immobilienangebote sind freibleibend und vorbehaltlich Irrtümer, Zwischenverkauf- und Vermietung oder sonstiger Zwischenverwertung.

UNSER SERVICE FÜR SIE ALS EIGENTÜMER: Planen Sie den Verkauf oder die Vermietung Ihrer Immobilie, so ist es für Sie wichtig, deren Marktwert zu kennen. Lassen Sie kostenfrei und unverbindlich den aktuellen Wert Ihrer Immobilie professionell durch einen unserer Immobilienspezialisten einschätzen. Unser bundesweites und internationales Netzwerk ermöglicht es uns, Verkäufer bzw. Vermieter und Interessenten bestmöglich zusammenzuführen.

Weiterlesen

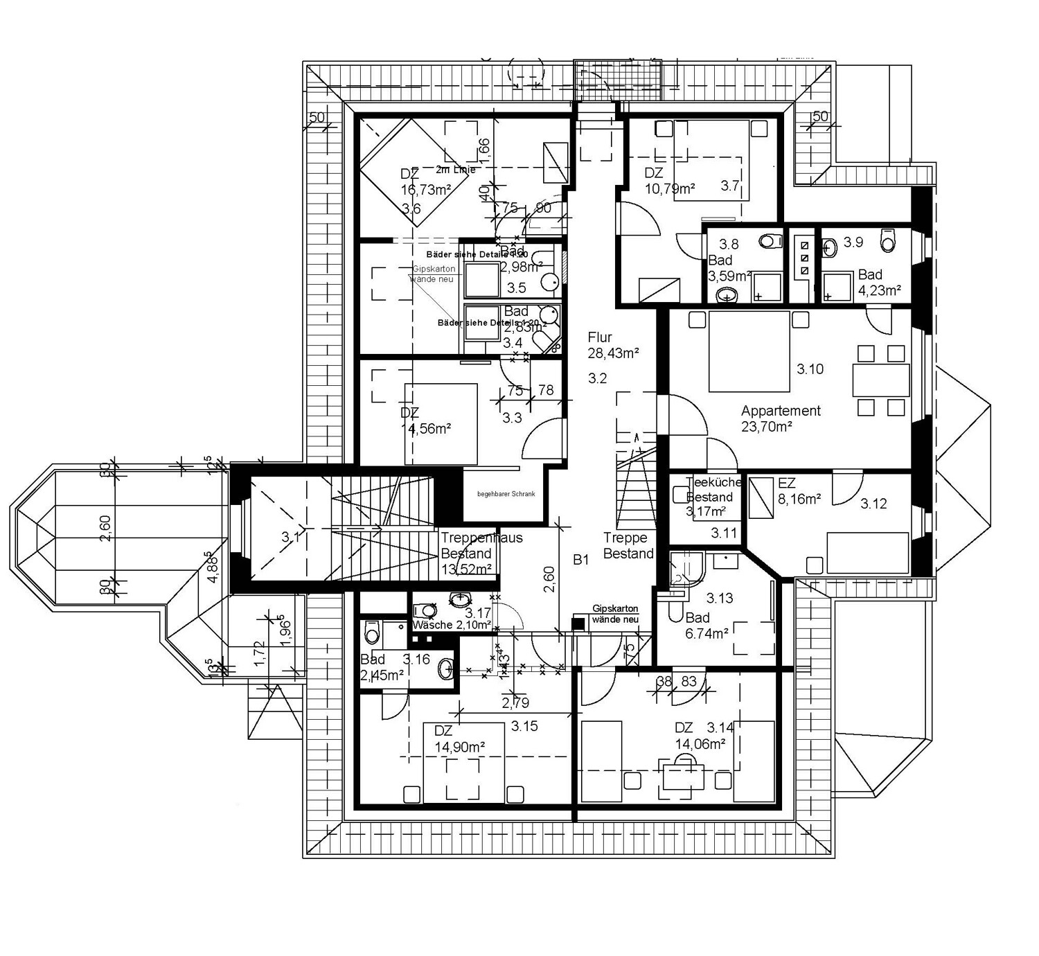
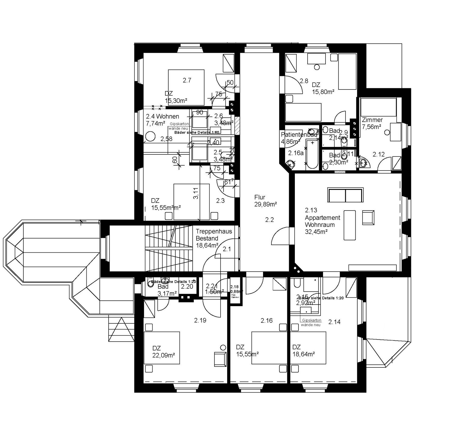
Grundriss

Haupthaus Gartengeschoss
Haupthaus EG
Haupthaus OG
Haupthaus DG
Haupthaus Speicher
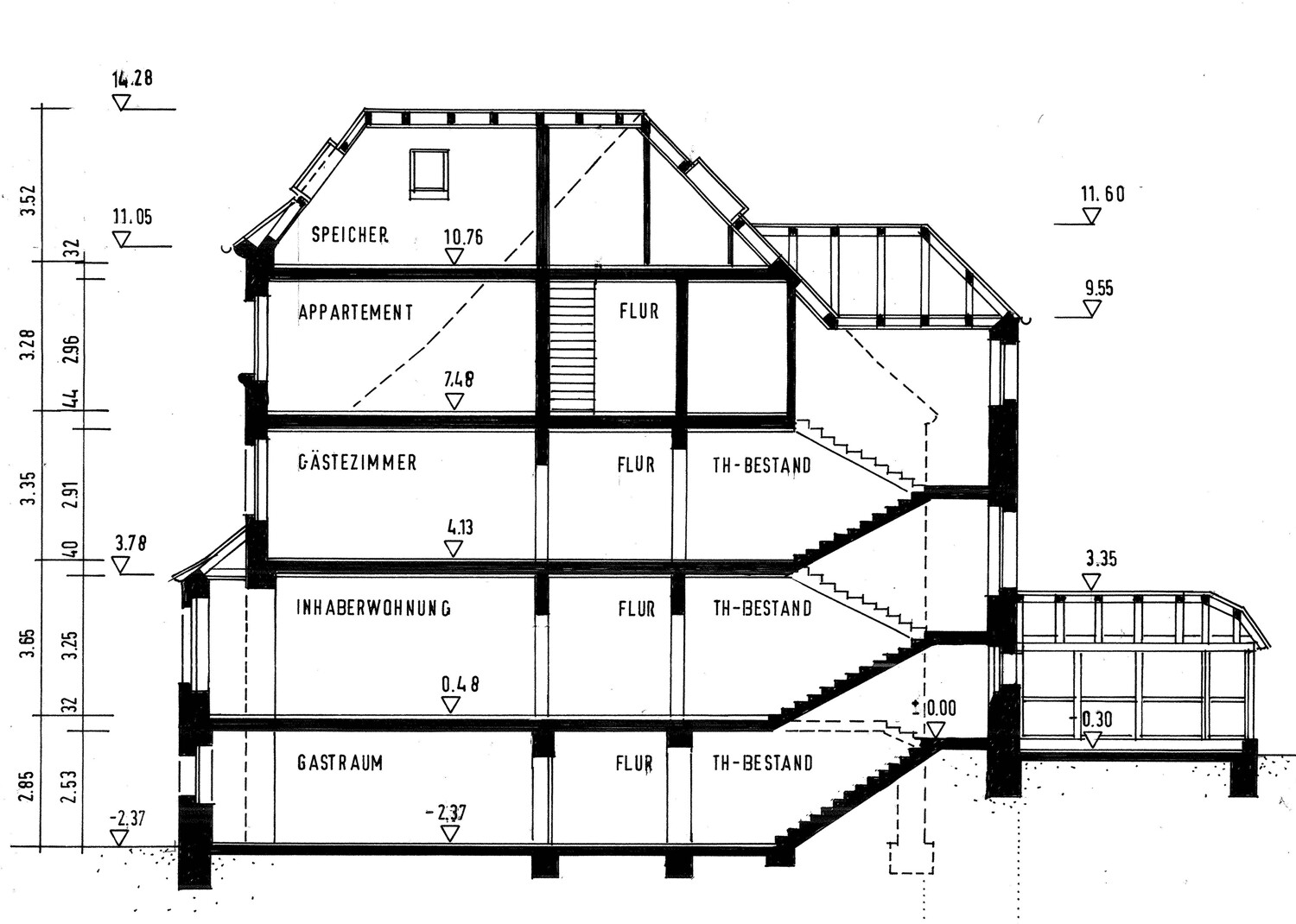
Schnitt

94139 BREITENBERG

Boutiquehotel, Restaurant & Lebensentwurf im Bayerischen Wald

ca. 3.466 m² 30 Zimmer 2.350.000 EUR

Anbieter
  • Mathias Zank
  • Shop Passau
  • Heiliggeistgasse 1
  • 94032 Passau