Titelbild-Logo
65451 KELSTERBACH
Dreifamilienhaus mit Energieeffizienzklasse „B“ und hervorragender Infrastruktur
1.195.000 EUR
Wohnfläche ca. 318 m²
Grundstück ca. 560 m²
Zimmer 11
Kaufpreis 1.195.000 EUR
Anbieter
  • Carel William Hanemann
  • Shop Mörfelden-Walldorf
  • Ludwigstraße 36
  • 64546 Mörfelden-Walldorf
Bewerbung wird geladen...

Immobilienanfrage

Füllen Sie das Formular aus und unsere Immobilien-Experten melden sich in Kürze bei Ihnen.

Ihre persönlichen Daten

Ihre Bewerbung wird vertraulich behandelt.

Übersicht

Highlights

Gäste-WC
Garten/-mitbenutzung
Balkon

Details

Objektnummer

25059038

Haustyp

Mehrfamilienhaus

Bauweise

Massiv

Nutzfläche

ca. 139 m²

Stellplatz

3 x Carport

Modernisierung / Sanierung

2025

Zustand der Immobilie

modernisiert

Badezimmer

3

Baujahr

1978

Schlafzimmer

8

Provision

Käuferprovision beträgt 5,95% (inkl. MwSt.) des beurkundeten Kaufpreises

Energieinformationen

Skala

B

Energieeffizienzklasse

B

Endenergiebedarf

74,60 kWh/m²a

Energieausweis

Bedarfsausweis

Energieausweis gültig bis

30.10.2035

Baujahr laut Energieausweis

1979

Wesentlicher Energieträger

Strom

Befeuerung

Elektro

Beschreibung

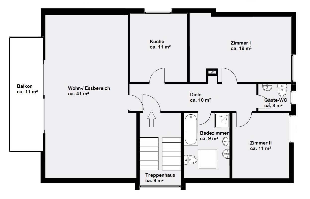
Dieses freistehende Dreifamilienhaus aus dem Jahr 1978 steht auf einem rund 560 m² großen Grundstück und bietet etwa 318 m² Wohnfläche. Es umfasst zwei Vier-Zimmer-Wohnungen (circa 111 m² im Hochparterre und circa 109 m² im ersten Obergeschoss) sowie eine Drei-Zimmer-Wohnung im Dachgeschoss (circa 98 m²). Alle Wohnungen verfügen über einen Balkon, eine Fußbodenheizung, ein Tageslichtbad, ein Gäste-WC sowie einen separaten Küchenraum.

Die Wohnung im Hochparterre mit direktem Gartenzugang ist nur noch bis Ende Januar 2026 vermietet. Die Wohnungen im ersten Obergeschoss und im Dachgeschoss sind langjährig vermietet und erzielen stabile Mieten. Das rund 111 m² große Untergeschoss bietet für jede Wohnung einen separaten Kellerraum sowie weitere Nutzräume und einen gemeinschaftlichen Waschraum.

Die Außenanlage präsentiert sich ebenso wie das Haus selbst gepflegt und umfasst ein Gartenhaus, einen umlaufenden Garten sowie ein Carport mit drei PKW-Stellplätzen. Der Garten steht aktuell exklusiv der Hochparterre-Wohnung zur Verfügung.

Hervorzuheben ist außerdem die erst kürzlich abgeschlossene energetische Sanierung, bei der das Gebäude von einer Ölheizung auf eine moderne, effiziente Wärmepumpe umgestellt wurde. Dadurch verbessert sich die Energiebilanz und es entsteht langfristiges Einspar- und Wertsteigerungspotenzial.

Zusammenfassung:

– Vier-Zimmer-Wohnung im Hochparterre, circa 111 m², ab Februar 2026 mietfrei, mit Gartenzugang – Vier-Zimmer-Wohnung, 1. Obergeschoss, 109 m², seit 1978 vermietet – Dreizimmerwohnung im Dachgeschoss, circa 98 m², seit 1978 vermietet

Die Umrüstung auf eine Wärmepumpe fand erst vor wenigen Wochen statt, weshalb bislang weder die Anpassung der Nebenkosten noch die Umlage der energetischen Sanierung auf die Mieter:innen umgesetzt sind.

Das Haus überzeugt durch seine ruhige Lage und die gute Erreichbarkeit von Einkaufsmöglichkeiten, öffentlichen Verkehrsmitteln, Schulen und Freizeitangeboten. Gleichzeitig laden die umliegenden Grünflächen zu Spaziergängen und Erholung im Freien ein. Nutzen Sie die Gelegenheit, dieses modernisierte Mehrfamilienhaus mit seinem vielseitigen Raumangebot kennenzulernen, und überzeugen Sie sich vor Ort von den Vorzügen dieser Immobilie.

Weiterlesen

Lage

Nahversorgung
Gastronomie
4,5
 / 5
Gesundheit
4,4
 / 5
Freizeit
3,3
 / 5
Familie
Einkaufen
Geräusche
icon Sehen Sie diese und weitere Daten mit Ihrem Kundenkonto – kostenlos
Melden Sie sich an oder registrieren Sie sich in wenigen Minuten, um alle Angaben sehen zu können.
icon Weitere Angaben freischalten
Beschreibung

Kelsterbach, auch 'Die Perle am Untermain' genannt ist eine kleine Stadt mit ca. 17.000 Einwohnern im hessischen Kreis Gross-Gerau. Sie liegt am südwestlichen Stadtrand von Frankfurt am Main in einem Flussbogen am westlichen Mainufer. Der Main, die schönen Grünflächen und der Südpark lassen die Stadt zu einem familienfreundlichen Zuhause werden. Kelsterbach verfügt über eine Vielzahl von Schulen und Kindergärten. Sämtliche Geschäfte des täglichen Bedarfs befinden sich in fussläufiger Nähe. Durch die zentrale Lage im Rhein-Main-Gebiet und die hervorragende Verkehrsanbindung (A3, A5, A60, A66, A67 und B43, als auch den S-Bahn-Anschluss) erreicht man den internationalen Flughafen Frankfurt am Main innerhalb weniger Minuten und die umliegenden Städte Frankfurt am Main, Wiesbaden, Mainz und Darmstadt innerhalb von 15-30 Fahrminuten.

Weiterlesen

Finanzierung

Sie interessieren sich für eine Baufinanzierung? Finden Sie mit VON POLL FINANCE* die richtige Immobilienfinanzierung.

Gesamtkosten: 1.361.703 EUR
Kaufpreis
1.195.000 EUR
Grunderwerbsteuer
71.700 EUR
6,00 %
Maklerprovision
71.103 EUR
5,95 %
Notarkosten
17.925 EUR
1,50 %
Grundbucheintrag
5.975 EUR
0,50 %
Passendes Finanzierungsangebot:
Eigenkapital: 340.426 EUR
Nettodarlehen: 1.019.000 EUR
Sollzinsbindung: 10 Jahre; Tilgungsrate: 1,14 %
Ihr Finanzierungsbeispiel:
Sollzins: 3,57 %
Effektivzins: 3,64 %

Basierend auf einem Nettoeinkommen von 9.574 EUR und einer Eigenkapitalquote von 25 %.

Darlehensanbieter: Commerzbank

Baufinanzierung unverbindlich anfragen. Über 700 Darlehensgeber im Vergleich. Jetzt Ihren persönlichen Finanzierungsexperten kontaktieren.
Finanzierung berechnen

Ausstattung

  • Gegensprechanlage
  • Fußbodenheizung
  • Funkraumthermostate
  • Rollläden
  • Tageslichtbad
  • Wärmepumpe 2025
  • Balkon
  • Keller
  • Gartenhaus
  • Drei Carport-PKW-Stellplätze

Sonstiges

Es liegt ein Energiebedarfsausweis vor. Dieser ist gültig bis 30.10.2035. Endenergiebedarf beträgt 74.60 kwh/(m²*a). Wesentlicher Energieträger der Heizung ist Strom. Das Baujahr des Objekts lt. Energieausweis ist 1979. Die Energieeffizienzklasse ist B.

GELDWÄSCHE: Als Immobilienmaklerunternehmen ist die von Poll Immobilien GmbH nach § 2 Abs. 1 Nr. 14 und § 11 Abs. 1, 2 Geldwäschegesetz (GwG) dazu verpflichtet, bei der Begründung einer Geschäftsbeziehung die Identität des Vertragspartners festzustellen und zu überprüfen, bzw. sobald ein ernsthaftes Interesse an der Durchführung des Immobilienkaufvertrages besteht. Hierzu ist es erforderlich, dass wir nach § 11 Abs. 4 GwG die relevanten Daten Ihres Personalausweises festhalten (wenn Sie als natürliche Person handeln) – beispielsweise mittels einer Kopie. Bei einer juristischen Person benötigen wir eine Kopie des Handelsregisterauszugs, aus welchem der wirtschaftlich Berechtigte hervorgeht. Das Geldwäschegesetz sieht vor, dass der Makler die Kopien bzw. Unterlagen fünf Jahre aufbewahren muss. Als unser Vertragspartner haben Sie auch eine Mitwirkungspflicht nach § 11 Abs. 6 GwG.

HAFTUNG: Wir weisen darauf hin, dass die von uns weitergegebenen Objektinformationen, Unterlagen, Pläne etc. vom Verkäufer bzw. Vermieter stammen. Eine Haftung für die Richtigkeit oder Vollständigkeit der Angaben übernehmen wir daher nicht. Es obliegt daher unseren Kunden, die darin enthaltenen Objektinformationen und Angaben auf ihre Richtigkeit hin zu überprüfen. Alle Immobilienangebote sind freibleibend und vorbehaltlich Irrtümer, Zwischenverkauf- und Vermietung oder sonstiger Zwischenverwertung.

UNSER SERVICE FÜR SIE ALS EIGENTÜMER: Planen Sie den Verkauf oder die Vermietung Ihrer Immobilie, so ist es für Sie wichtig, deren Marktwert zu kennen. Lassen Sie kostenfrei und unverbindlich den aktuellen Wert Ihrer Immobilie professionell durch einen unserer Immobilienspezialisten einschätzen. Unser bundesweites und internationales Netzwerk ermöglicht es uns, Verkäufer bzw. Vermieter und Interessenten bestmöglich zusammenzuführen.

Weiterlesen

Grundriss

Hochparterre
Obergeschoss
Dachgeschoss
Untergeschoss

65451 KELSTERBACH

Dreifamilienhaus mit Energieeffizienzklasse „B“ und hervorragender Infrastruktur

ca. 318 m² 11 Zimmer 1.195.000 EUR

Anbieter
  • Carel William Hanemann
  • Shop Mörfelden-Walldorf
  • Ludwigstraße 36
  • 64546 Mörfelden-Walldorf