Visualisierung 1
63743 ASCHAFFENBURG / SCHWEINHEIM – SCHWEINHEIM
Projektierte Penthouse Gewerbeeinheit mit Dachterrasse
Auf Anfrage
Kaufpreis Auf Anfrage
Anbieter
  • Alexander Rauh
  • Shop Aschaffenburg
  • Sandgasse 42
  • 63739 Aschaffenburg
Bewerbung wird geladen...

Immobilienanfrage

Füllen Sie das Formular aus und unsere Immobilien-Experten melden sich in Kürze bei Ihnen.

Ihre persönlichen Daten

Ihre Bewerbung wird vertraulich behandelt.

Übersicht

Highlights

Details

Objektnummer

26007010

Haustyp

Praxis

Bauweise

Fertigteile

Stellplatz

2 x Tiefgarage, 80 EUR (Miete)

Zustand der Immobilie

Erstbezug

Baujahr

2027

Energieinformationen

Zum Zeitpunkt der Anzeigenerstellung lag kein Energieausweis vor.

Beschreibung

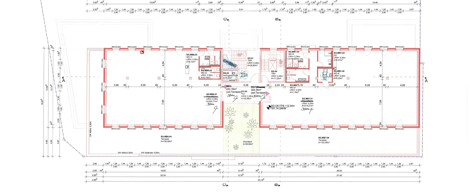
Auf diesem städtebaulichen Filetstück entsteht ein zukunftsweisendes Gebäude mit dieser vielseitig nutzbaren Praxis- oder Bürofläche (SG.MB6). Der fertig projektierte Neubau verbindet modernes Design mit nachhaltiger Bauweise.

Auf Grund der Skelettbauweise sind nur wenige tragende Säulen vorhanden, was wiederum eine maximale Flexibilität bezüglich des zukünftigen Innenausbaus erlaubt.

Aufgrund der starken wirtschaftlichen Entwicklung von Aschaffenburg und der guten Anbindung an die Region Rhein-Main ist der Standort optimal für Unternehmen welche gesteigerten Wert auf ein attraktives Umfeld für seine Kunden und Mitarbeiter bietet.

Kurz gesagt: Die Kombination aus Lage, Infrastruktur und wirtschaftlicher Dynamik macht den Standort für Investoren zu einer lukrativen und zukunftssicheren Wahl.

Sie haben Interesse diese vielversprechende Investition mit viel Potenzial und Charme besser kennen zu lernen? Das von Poll Team Aschaffenburg freut sich auf Ihre Kontaktaufnahme!

Weiterlesen

Lage

Nahversorgung
Gastronomie
4
 / 5
Gesundheit
4,8
 / 5
Freizeit
2,9
 / 5
Familie
Einkaufen
Geräusche
icon Sehen Sie diese und weitere Daten mit Ihrem Kundenkonto – kostenlos
Melden Sie sich an oder registrieren Sie sich in wenigen Minuten, um alle Angaben sehen zu können.
icon Weitere Angaben freischalten
Beschreibung

Das Objekt befindet sich in einer der TOP Lagen von Aschaffenburg. Der Stadtteil Schweinheim ist durch eine hervorragende Anbindung nur gut 10 Minuten vom Zentrum entfernt, das angrenzende Landschaftsschutzgebiet liegt zu gleich nur wenige Fußminuten direkt vor Ihrer Haustüre. Aschaffenburg zeichnet sich durch die sehr gute Infrastruktur mit umfassenden Einkaufsmöglichkeiten, Kindergärten und Schulen, der Hochschule, Fußgängerzone, Geschäften, Restaurants, Theater u.v.m. Ein weiterer Pluspunkt ist die gute Anbindung an den ÖPNV und zur Autobahn A3 Frankfurt/Würzburg (in ca. 30 Minuten zum Flughafen) oder der A45 Hanau/Gießen. Einen hervorragenden Einblick von Aschaffenburg erhaltenSie auch über diesen kleinen Film auf YouTube https://www.youtube.com/watch?v=u3Me3JaQL-w

Weiterlesen

Ausstattung

  • + Baufertigstellung geplant Ende 2027
  • + repräsentative Dachterrasse mit ca. 135 qm
  • + Kennzeichnung innerhalb der Einheit (SG.MB6)
  • + der Mietzins versteht sich bezogen auf einen „veredelten Rohbau“, alle Ausbauleistungen macht der Mieter selbst
  • + geplante Bauweise & Materialien: massive Kalksandstein-Außenwände mit Wärmedämm-Verbundsystem, Stahlbetondecken mit abgehängten Decken, nicht tragende Innenwände in Trockenbauweise
  • + Nachhaltigkeit & Energieeffizienz: Beheizung durch eine Wärmepumpe mit Außengerät in der Außenanlage, moderne Lüftungstechnik, PV-Module auf dem Dach sowie ein begrüntes Flachdach für ökologischen Mehrwert
  • + Verkehrsanbindung: direkte Erschließung des Untergeschosses über die eine angrenzende Straße, zusätzliche Parkflächen auf dem angrenzenden Grundstück

Sonstiges

GELDWÄSCHE: Als Immobilienmaklerunternehmen ist die von Poll Immobilien GmbH nach § 2 Abs. 1 Nr. 14 und § 11 Abs. 1, 2 Geldwäschegesetz (GwG) dazu verpflichtet, bei der Begründung einer Geschäftsbeziehung die Identität des Vertragspartners festzustellen und zu überprüfen, bzw. sobald ein ernsthaftes Interesse an der Durchführung des Immobilienkaufvertrages besteht. Hierzu ist es erforderlich, dass wir nach § 11 Abs. 4 GwG die relevanten Daten Ihres Personalausweises festhalten (wenn Sie als natürliche Person handeln) – beispielsweise mittels einer Kopie. Bei einer juristischen Person benötigen wir eine Kopie des Handelsregisterauszugs, aus welchem der wirtschaftlich Berechtigte hervorgeht. Das Geldwäschegesetz sieht vor, dass der Makler die Kopien bzw. Unterlagen fünf Jahre aufbewahren muss. Als unser Vertragspartner haben Sie auch eine Mitwirkungspflicht nach § 11 Abs. 6 GwG.

HAFTUNG: Wir weisen darauf hin, dass die von uns weitergegebenen Objektinformationen, Unterlagen, Pläne etc. vom Verkäufer bzw. Vermieter stammen. Eine Haftung für die Richtigkeit oder Vollständigkeit der Angaben übernehmen wir daher nicht. Es obliegt daher unseren Kunden, die darin enthaltenen Objektinformationen und Angaben auf ihre Richtigkeit hin zu überprüfen. Alle Immobilienangebote sind freibleibend und vorbehaltlich Irrtümer, Zwischenverkauf- und Vermietung oder sonstiger Zwischenverwertung.

Weiterlesen

63743 ASCHAFFENBURG / SCHWEINHEIM – SCHWEINHEIM

Projektierte Penthouse Gewerbeeinheit mit Dachterrasse

Auf Anfrage

Anbieter
  • Alexander Rauh
  • Shop Aschaffenburg
  • Sandgasse 42
  • 63739 Aschaffenburg