Titelbild
26419 SCHORTENS / GRAFSCHAFT
Flachdach-Einfamilienhaus (Split-Level) mit vermieteter Gewerbeeinheit in Schortens-Grafschaft
200.000 EUR
Wohnfläche ca. 143,5 m²
Grundstück ca. 1.287 m²
Zimmer 7
Kaufpreis 200.000 EUR
Anbieter
  • Hermann Mehrtens
  • Shop Jever
  • Wangerstraße 2
  • 26441 Jever
Bewerbung wird geladen...

Immobilienanfrage

Füllen Sie das Formular aus und unsere Immobilien-Experten melden sich in Kürze bei Ihnen.

Ihre persönlichen Daten

Ihre Bewerbung wird vertraulich behandelt.

Übersicht

Highlights

Terrasse
Kamin
Garten/-mitbenutzung
Einbauküche
Balkon

Details

Objektnummer

25284017

Bauweise

Massiv

Nutzfläche

ca. 115 m²

Stellplatz

7 x Freiplatz

Modernisierung / Sanierung

2014

Zustand der Immobilie

gepflegt

Badezimmer

1

Baujahr

1961

Schlafzimmer

4

Provision

Käuferprovision beträgt 3,57 % (inkl. MwSt.) des beurkundeten Kaufpreises

Energieinformationen

Skala

G

Energieeffizienzklasse

G

Endenergiebedarf

236,20 kWh/m²a

Energieausweis

Bedarfsausweis

Energieausweis gültig bis

04.09.2035

Baujahr laut Energieausweis

1961

Wesentlicher Energieträger

Gas

Befeuerung

Gas

Heizungsart

Zentralheizung

Beschreibung

In ruhiger Wohnlage von Schortens Grafschaft präsentiert sich dieses Flachdach Einfamilienhaus in Split Level Bauweise auf einem Grundstück von ca. 1.287 m². Die Wohnfläche von ca. 143,5 m² verteilt sich auf insgesamt fünf Zimmer, von denen bis zu vier als Schlafzimmer nutzbar sind. Herzstück ist der offene Wohn und Essbereich mit Kamin und direktem Zugang zur teilüberdachten Terrasse; die Überdachung mit Markise wurde 2022 erneuert. Die gepflegte Küche mit angrenzender Speisekammer bietet kurze Wege im Alltag. Über wenige Stufen gelangen Sie auf die obere Ebene mit zwei Kinderzimmern, einem Arbeitszimmer mit Balkonzugang sowie einem gartenseitigen Schlafzimmer mit weiterem Balkon. Kunststofffenster mit Zweifachverglasung aus 2014, eine am gesamten Wohnhaus ausgeführte Hohlraumdämmung sowie die Heizungsanlage aus 2012 untermauern den gepflegten technischen Zustand. Zusätzlich verfügt das Haus über eine Terrassentür mit moderner Dreifachverglasung, die den energetischen Standard weiter verbessert.

Der Garten mit weitläufiger Rasenfläche und Gartenhütte lädt zum Verweilen ein, vor dem Wohnhaus stehen zwei zusätzliche Stellplätze zur Verfügung. Das ebene Flachdach eignet sich ideal zur Ergänzung mit einer Photovoltaikanlage.

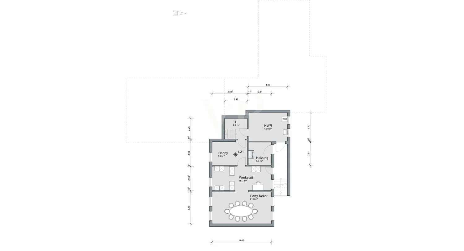
Der Keller ist über einen kurzen Treppenlauf erreichbar und bietet auf ca. 71,8 m² viel Platz für Hauswirtschaft und Technik. Ein Hauswirtschafts und Heizungsraum mit direktem Zugang in den vorderen Gartenbereich, ein Hobbyraum, eine Werkstatt sowie ein gemütlicher Partykeller schaffen ideale Voraussetzungen für Lager, Projekte und Freizeit. Im Kellergeschoss befinden sich Heizkörper; hier sind noch einfach verglaste Fenster vorhanden. Dieser Umstand beeinflusst die energetische Bewertung, eröffnet aber zugleich ein klares Optimierungspotenzial durch den Austausch der Kellerfenster.

Die separat erschlossene Gewerbeeinheit umfasst ca. 79,5 m² mit einem großzügigen Gewerberaum von ca. 66,7 m², Büro und WC. Sie wurde 1993 umgebaut, ist langjährig vermietet und verfügt über fünf Pkw Stellplätze direkt vor dem Eingang. Die Einheit ist baurechtlich genehmigt, das Umfeld als Mischgebiet ausgewiesen; separate Zähler sind vorhanden. Zwischen Wohnhaus und Gewerbefläche besteht eine interne Verbindung, die aufgrund der Fremdvermietung derzeit verschlossen ist und sich bei Bedarf unkompliziert reaktivieren lässt. Auch die Gewerbeeinheit profitiert von der ausgeführten Hohlraumdämmung.

Hinweis zur Energieeinschätzung: Der vorliegende Energieausweis bildet das tatsächliche Potenzial der Immobilie nur eingeschränkt ab, da die Bewertung durch die im Kellergeschoss vorhandenen Heizkörper und die dort noch verbauten einfach verglasten Fenster rechnerisch belastet wird. Mit Zweifachverglasung der Wohnbereiche, Hohlraumdämmung und einer vergleichsweise jungen Heizungsanlage sind bereits wesentliche Schritte umgesetzt; zusätzliche Verbesserungen wie der Austausch der Kellerfenster und die optionale Ergänzung einer Photovoltaikanlage auf dem Flachdach können die energetische Gesamtperformance weiter positiv beeinflussen.

Der Startpreis beträgt 200.000 €. Nach einer Besichtigung erhalten Interessenten Zugang zu unserem Portal für die digitale Angebotslegung. Sie können dort ihr Angebot transparent abgeben. Der Eigentümer entscheidet anschließend, ob und welches Angebot er annimmt.

Diese Immobilie wird in Form einer digitalen Angebotslegung vermittelt. Der angezeigte Preis ist ein Startpreis und kann im Laufe der Vermittlung steigen.

Weiterlesen

Lage

Nahversorgung
Gastronomie
1,5
 / 5
Gesundheit
1,9
 / 5
Freizeit
3,6
 / 5
Familie
Einkaufen
Geräusche
icon Sehen Sie diese und weitere Daten mit Ihrem Kundenkonto – kostenlos
Melden Sie sich an oder registrieren Sie sich in wenigen Minuten, um alle Angaben sehen zu können.
icon Weitere Angaben freischalten
Beschreibung

Der Stadtteil Grafschaft in Schortens überzeugt durch eine ideale Verbindung aus ruhigem, naturnahem Wohnen und exzellenter Erreichbarkeit umliegender Städte wie Wilhelmshaven, Jever oder Oldenburg. Eingebettet in grüne Wiesen, Felder und kleinere Wälder, bietet der Ort zahlreiche Möglichkeiten für Spaziergänge, Radtouren oder Ausflüge an die nahegelegene Nordseeküste, ohne auf eine gute Infrastruktur verzichten zu müssen. Einkaufsmöglichkeiten, Schulen, Kindergärten, Ärzte und Freizeiteinrichtungen sind schnell erreichbar, sodass Grafschaft besonders für Familien attraktiv ist.

Auch die Verkehrsanbindung ist hervorragend: Über die Autobahn A29 erreichen Sie Wilhelmshaven in weniger als zehn Minuten und Oldenburg in rund 40 Minuten. Die Bundesstraße 210 verbindet direkt nach Aurich und Emden. Für den öffentlichen Nahverkehr stehen Buslinien sowie die Bahnhöfe Schortens-Heidmühle und Sande zur Verfügung, die Anbindungen nach Wilhelmshaven, Oldenburg, Bremen und Hannover bieten. Der internationale Flughafen Bremen ist in etwa einer Stunde erreichbar.

Grafschaft besticht durch seine hohe Lebensqualität: Die ruhige, naturnahe Umgebung, der dörfliche Charakter und die gleichzeitig schnelle Anbindung an städtische Zentren schaffen ideale Voraussetzungen für Familien, Pendler und alle, die Wert auf eine ausgewogene Work-Life-Balance legen. Ursprünglich landwirtschaftlich geprägt, vereint Grafschaft heute Tradition und Moderne auf einzigartige Weise und ist damit ein attraktiver Wohnstandort in der Region Friesland.

Weiterlesen

Finanzierung

Sie interessieren sich für eine Baufinanzierung? Finden Sie mit VON POLL FINANCE* die richtige Immobilienfinanzierung.

Gesamtkosten: 221.140 EUR
Kaufpreis
200.000 EUR
Grunderwerbsteuer
10.000 EUR
5,00 %
Maklerprovision
7.140 EUR
3,57 %
Notarkosten
3.000 EUR
1,50 %
Grundbucheintrag
1.000 EUR
0,50 %
Passendes Finanzierungsangebot:
Eigenkapital: 55.285 EUR
Nettodarlehen: 166.000 EUR
Sollzinsbindung: 10 Jahre; Tilgungsrate: 1,00 %
Ihr Finanzierungsbeispiel:
Sollzins: 3,51 %
Effektivzins: 3,60 %

Basierend auf einem Nettoeinkommen von 1.555 EUR und einer Eigenkapitalquote von 25 %.

Darlehensanbieter: HypoVereinsbank

Baufinanzierung unverbindlich anfragen. Über 700 Darlehensgeber im Vergleich. Jetzt Ihren persönlichen Finanzierungsexperten kontaktieren.
Finanzierung berechnen

Ausstattung

  • Ausstattung:
  • Baujahr: 1961
  • Grundstück: ca. 1.287 m²
  • Wohnfläche: ca. 143,50 m²
  • Gewerbefläche: ca. 79,50 m² (derzeit als Friseursalon vermietet)
  • Kellerfläche: ca. 71,80 m²
  • Wohnbereich:
  • Offener Wohn- und Essbereich mit Zugang zur Terrasse
  • Gepflegte Küche mit Speisekammer
  • 2 Kinderzimmer
  • 1 Arbeitszimmer mit Balkonzugang
  • 1 Schlafzimmer mit gartenseitigem Balkon
  • Zentrales Badezimmer
  • Gewerbeeinheit:
  • Großzügiger Gewerberaum (ca. 66,70 m²)
  • Büro
  • WC
  • 5 Pkw-Stellplätze direkt vor der Einheit
  • Keller:
  • Hauswirtschafts- und Heizungsraum
  • Hobbyraum
  • Werkstatt
  • Partykeller
  • Außenbereich:
  • Teilüberdachte Terrasse mit elektrischer Markise
  • Weitläufige Rasenfläche
  • Gartenhütte
  • Ruhige Lage mit viel Privatsphäre
  • Technische Ausstattung:
  • Heizungsanlage aus 2012
  • Zweifachverglaste Fenster 2014
  • 1x Dreifachverglaste Terrassentür
  • Hohlraumdämmung
  • getrennte Zähler
  • Gepflegter Gesamtzustand

Sonstiges

Es liegt ein Energiebedarfsausweis vor. Dieser ist gültig bis 4.9.2035. Endenergiebedarf beträgt 236.20 kwh/(m²*a). Wesentlicher Energieträger der Heizung ist Gas. Das Baujahr des Objekts lt. Energieausweis ist 1961. Die Energieeffizienzklasse ist G.

GELDWÄSCHE: Als Immobilienmaklerunternehmen ist die von Poll Immobilien GmbH nach § 2 Abs. 1 Nr. 14 und § 11 Abs. 1, 2 Geldwäschegesetz (GwG) dazu verpflichtet, bei der Begründung einer Geschäftsbeziehung die Identität des Vertragspartners festzustellen und zu überprüfen, bzw. sobald ein ernsthaftes Interesse an der Durchführung des Immobilienkaufvertrages besteht. Hierzu ist es erforderlich, dass wir nach § 11 Abs. 4 GwG die relevanten Daten Ihres Personalausweises festhalten (wenn Sie als natürliche Person handeln) – beispielsweise mittels einer Kopie. Bei einer juristischen Person benötigen wir eine Kopie des Handelsregisterauszugs, aus welchem der wirtschaftlich Berechtigte hervorgeht. Das Geldwäschegesetz sieht vor, dass der Makler die Kopien bzw. Unterlagen fünf Jahre aufbewahren muss. Als unser Vertragspartner haben Sie auch eine Mitwirkungspflicht nach § 11 Abs. 6 GwG.

HAFTUNG: Wir weisen darauf hin, dass die von uns weitergegebenen Objektinformationen, Unterlagen, Pläne etc. vom Verkäufer bzw. Vermieter stammen. Eine Haftung für die Richtigkeit oder Vollständigkeit der Angaben übernehmen wir daher nicht. Es obliegt daher unseren Kunden, die darin enthaltenen Objektinformationen und Angaben auf ihre Richtigkeit hin zu überprüfen. Alle Immobilienangebote sind freibleibend und vorbehaltlich Irrtümer, Zwischenverkauf- und Vermietung oder sonstiger Zwischenverwertung.

UNSER SERVICE FÜR SIE ALS EIGENTÜMER: Planen Sie den Verkauf oder die Vermietung Ihrer Immobilie, so ist es für Sie wichtig, deren Marktwert zu kennen. Lassen Sie kostenfrei und unverbindlich den aktuellen Wert Ihrer Immobilie professionell durch einen unserer Immobilienspezialisten einschätzen. Unser bundesweites und internationales Netzwerk ermöglicht es uns, Verkäufer bzw. Vermieter und Interessenten bestmöglich zusammenzuführen.

Weiterlesen

26419 SCHORTENS / GRAFSCHAFT

Flachdach-Einfamilienhaus (Split-Level) mit vermieteter Gewerbeeinheit in Schortens-Grafschaft

ca. 143,5 m² 7 Zimmer 200.000 EUR

Anbieter
  • Hermann Mehrtens
  • Shop Jever
  • Wangerstraße 2
  • 26441 Jever