Garten
16775 LöWENBERGER LAND / NEULöWENBERG
Naturnah wohnen – stadtnah leben
349.000 EUR
Wohnfläche ca. 151 m²
Grundstück ca. 1.375 m²
Zimmer 5
Kaufpreis 349.000 EUR
Anbieter
  • Martin Fräder
  • Shop Oranienburg
  • André-Pican-Straße 63
  • 16515 Oranienburg
Bewerbung wird geladen...

Immobilienanfrage

Füllen Sie das Formular aus und unsere Immobilien-Experten melden sich in Kürze bei Ihnen.

Ihre persönlichen Daten

Ihre Bewerbung wird vertraulich behandelt.

Übersicht

Highlights

Terrasse
Kamin

Details

Objektnummer

25476001

Haustyp

Doppelhaushälfte

Bauweise

Massiv

Nutzfläche

ca. 224 m²

Stellplatz

2 x Carport

Zustand der Immobilie

gepflegt

Badezimmer

2

Baujahr

1921

Provision

Käuferprovision beträgt 3,57 % (inkl. MwSt.) des beurkundeten Kaufpreises

Energieinformationen

Skala

G

Energieeffizienzklasse

G

Endenergiebedarf

223,80 kWh/m²a

Energieausweis

Bedarfsausweis

Energieausweis gültig bis

18.09.2035

Baujahr laut Energieausweis

1921

Wesentlicher Energieträger

Strom

Befeuerung

Elektro

Beschreibung

Diese großzügige Doppelhaushälfte mit einer Wohnfläche von ca. 151 m² befindet sich auf einem weitläufigen Grundstück von rund 1.375 m² und bietet viel Raum für individuelle Gestaltungsideen. Das Haus verfügt über zwei Wohnebenen sowie einen Dachboden und eignet sich ideal für Familien, Mehrgenerationenwohnen oder Wohnen und Arbeiten unter einem Dach. Der großzügige Wohn- und Essbereich im Erdgeschoss mit Zugang zur Terrasse bildet das Herzstück des Hauses. Große Fenster sorgen für viel Tageslicht und schaffen eine freundliche Wohnatmosphäre. Die Terrasse bietet einen schönen Blick in den weitläufigen Garten, der mit seiner Größe von über 1.300 m² zahlreiche Nutzungsmöglichkeiten für Freizeit, Gartenprojekte oder Spielflächen für Kinder eröffnet. Das Haus befindet sich in einem gepflegten Zustand und kann grundsätzlich bezogen werden. Einige Bereiche entsprechen noch dem älteren Standard, bieten aber eine solide Grundlage für spätere Modernisierungen nach eigenen Vorstellungen.

Diese Immobilie bietet eine solide Grundstruktur, großzügige Flächen und viel Potenzial, um persönliche Wohnideen zu verwirklichen – ideal für Käufer, die Platz, Ruhe und Gestaltungsspielraum suchen.

Weiterlesen

Lage

Nahversorgung
Gastronomie
0,9
 / 5
Gesundheit
0
 / 5
Freizeit
1,1
 / 5
Familie
Einkaufen
Geräusche
icon Sehen Sie diese und weitere Daten mit Ihrem Kundenkonto – kostenlos
Melden Sie sich an oder registrieren Sie sich in wenigen Minuten, um alle Angaben sehen zu können.
icon Weitere Angaben freischalten
Beschreibung

Das Löwenberger Land vereint ländliche Ruhe mit moderner Infrastruktur im Berliner Pendlergürtel. Die Region zeichnet sich durch eine niedrige Bevölkerungsdichte und eine hohe Lebensqualität aus – ideal für Familien, die ein naturnahes Umfeld mit guter Anbindung an die Hauptstadt suchen.

Schulen, Kindergärten, Ärzte und Einkaufsmöglichkeiten sind im Ort und in der näheren Umgebung vorhanden. Der Bahnhof Löwenberg (Mark) liegt nur wenige Minuten entfernt und bietet eine direkte Bahnverbindung nach Berlin – in rund 40 Minuten erreicht man ohne Umsteigen den Potsdamer Platz.

Die Umgebung lädt mit weitläufigen Feldern, Wäldern und mehreren Badeseen, die mit dem Fahrrad in wenigen Minuten erreichbar sind, zu Erholung und Freizeitaktivitäten im Grünen ein.

Weiterlesen

Finanzierung

Sie interessieren sich für eine Baufinanzierung? Finden Sie mit VON POLL FINANCE* die richtige Immobilienfinanzierung.

Gesamtkosten: 385.889 EUR
Kaufpreis
349.000 EUR
Grunderwerbsteuer
17.450 EUR
5,00%
Maklerprovision
12.459 EUR
3,57%
Notarkosten
5.235 EUR
1,50%
Grundbucheintrag
1.745 EUR
0,50%
Passendes Finanzierungsangebot:
Eigenkapital: 96.472 EUR
Nettodarlehen: 293.000 EUR
Sollzinsbindung: 10 Jahre; Tilgungsrate: 1,18 %
Ihr Finanzierungsbeispiel:
Monatsrate:
1.121 EUR
pencil-edit-monthly
Sollzins: 3,41 %
Effektivzins: 3,48 %

Basierend auf einem Nettoeinkommen von 2.713 EUR und einer Eigenkapitalquote von 25 %

Darlehensanbieter: Commerzbank

Baufinanzierung unverbindlich anfragen. Über 700 Darlehensgeber im Vergleich. Jetzt Ihren persönlichen Finanzierungsexperten kontaktieren.
Finanzierung berechnen

Ausstattung

  • Das Haus befindet sich in einem gepflegten Zustand und bietet eine solide Basis für individuelles Wohnen. In den vergangenen Jahren wurden Teilmodernisierungen durchgeführt.
  • Beide Etagen verfügen jeweils über einen Kamin, der für eine angenehme Wohnatmosphäre sorgt und eine zusätzliche Heizquelle bietet.
  • Ein Carport mit der Möglichkeit für zwei Stellplätze bietet praktischen Schutz für Fahrzeuge. Insgesamt überzeugt die Immobilie durch funktionale Grundstrukturen und Potenzial zur individuellen Weiterentwicklung.

Sonstiges

Es liegt ein Energiebedarfsausweis vor. Dieser ist gültig bis 18.9.2035. Endenergiebedarf beträgt 223.80 kwh/(m²*a). Wesentlicher Energieträger der Heizung ist Strom. Das Baujahr des Objekts lt. Energieausweis ist 1921. Die Energieeffizienzklasse ist G.

GELDWÄSCHE: Als Immobilienmaklerunternehmen ist die von Poll Immobilien GmbH nach § 2 Abs. 1 Nr. 14 und § 11 Abs. 1, 2 Geldwäschegesetz (GwG) dazu verpflichtet, bei der Begründung einer Geschäftsbeziehung die Identität des Vertragspartners festzustellen und zu überprüfen, bzw. sobald ein ernsthaftes Interesse an der Durchführung des Immobilienkaufvertrages besteht. Hierzu ist es erforderlich, dass wir nach § 11 Abs. 4 GwG die relevanten Daten Ihres Personalausweises festhalten (wenn Sie als natürliche Person handeln) – beispielsweise mittels einer Kopie. Bei einer juristischen Person benötigen wir eine Kopie des Handelsregisterauszugs, aus welchem der wirtschaftlich Berechtigte hervorgeht. Das Geldwäschegesetz sieht vor, dass der Makler die Kopien bzw. Unterlagen fünf Jahre aufbewahren muss. Als unser Vertragspartner haben Sie auch eine Mitwirkungspflicht nach § 11 Abs. 6 GwG.

HAFTUNG: Wir weisen darauf hin, dass die von uns weitergegebenen Objektinformationen, Unterlagen, Pläne etc. vom Verkäufer bzw. Vermieter stammen. Eine Haftung für die Richtigkeit oder Vollständigkeit der Angaben übernehmen wir daher nicht. Es obliegt daher unseren Kunden, die darin enthaltenen Objektinformationen und Angaben auf ihre Richtigkeit hin zu überprüfen. Alle Immobilienangebote sind freibleibend und vorbehaltlich Irrtümer, Zwischenverkauf- und Vermietung oder sonstiger Zwischenverwertung.

UNSER SERVICE FÜR SIE ALS EIGENTÜMER: Planen Sie den Verkauf oder die Vermietung Ihrer Immobilie, so ist es für Sie wichtig, deren Marktwert zu kennen. Lassen Sie kostenfrei und unverbindlich den aktuellen Wert Ihrer Immobilie professionell durch einen unserer Immobilienspezialisten einschätzen. Unser bundesweites und internationales Netzwerk ermöglicht es uns, Verkäufer bzw. Vermieter und Interessenten bestmöglich zusammenzuführen.

Weiterlesen

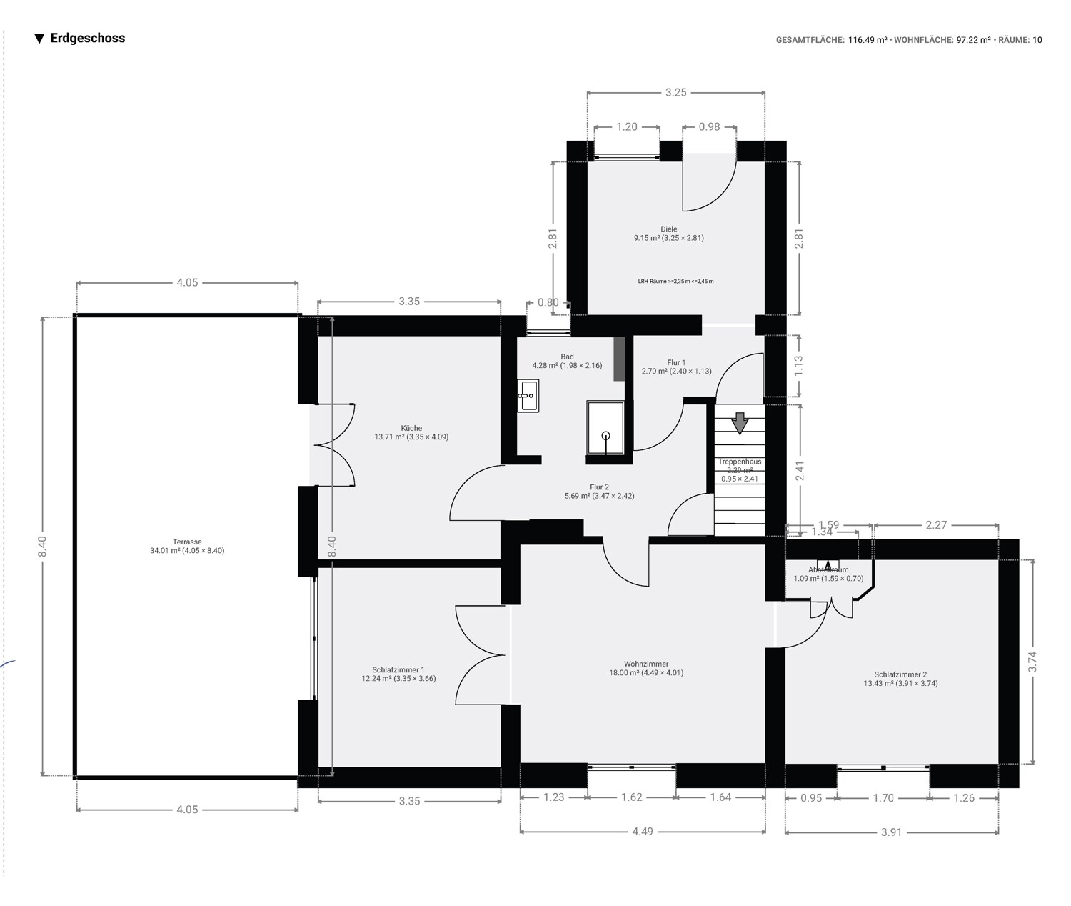
Grundriss

Grundriss EG
Grundriss DG
Grundriss DB

16775 LöWENBERGER LAND / NEULöWENBERG

Naturnah wohnen – stadtnah leben

ca. 151 m² 5 Zimmer 349.000 EUR

Anbieter
  • Martin Fräder
  • Shop Oranienburg
  • André-Pican-Straße 63
  • 16515 Oranienburg
KI-Inhalt

Aufgrund Ihrer Cookie-Einstellungen kann dieses Video nicht angezeigt werden.