Titelbild
15345 ALTLANDSBERG – WEGENDORF
Schicker Bungalow in familienfreundlicher Wohnlage
429.500 EUR
Wohnfläche ca. 140 m²
Grundstück ca. 512 m²
Zimmer 5
Kaufpreis 429.500 EUR
Anbieter
  • Petra Haseloff
  • Shop Barnim
  • An der Stadtmauer 14
  • 16321 Bernau
Bewerbung wird geladen...

Immobilienanfrage

Füllen Sie das Formular aus und unsere Immobilien-Experten melden sich in Kürze bei Ihnen.

Ihre persönlichen Daten

Ihre Bewerbung wird vertraulich behandelt.

Übersicht

Highlights

Terrasse
Sauna
Einbauküche

Details

Objektnummer

25138022

Haustyp

Einfamilienhaus

Bauweise

Massiv

Nutzfläche

ca. 56 m²

Stellplatz

1 x Freiplatz, 1 x Garage

Modernisierung / Sanierung

2021

Zustand der Immobilie

gepflegt

Badezimmer

1

Baujahr

2000

Schlafzimmer

4

Provision

Käuferprovision beträgt 3,57 % (inkl. MwSt.) des beurkundeten Kaufpreises

Energieinformationen

Skala

C

Energieeffizienzklasse

C

Endenergieverbrauch

82,50 kWh/m²a

Energieausweis

Verbrauchsausweis

Energieausweis gültig bis

22.08.2035

Baujahr laut Energieausweis

2000

Wesentlicher Energieträger

Gas

Befeuerung

Gas

Heizungsart

Fußbodenheizung

Beschreibung

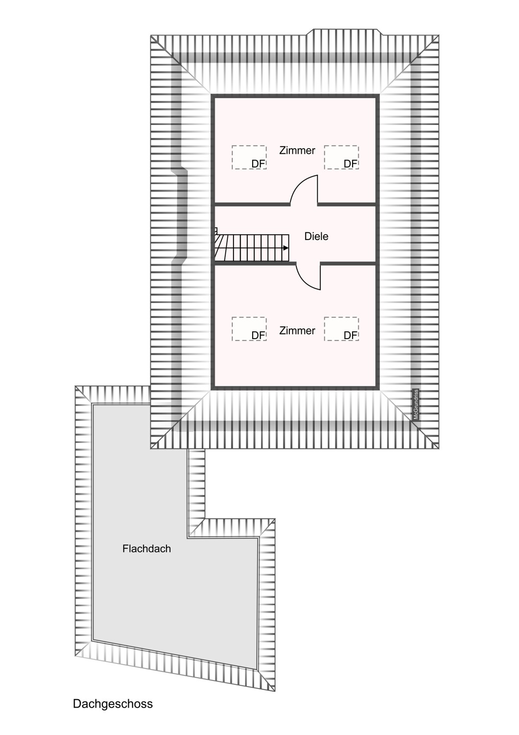
Zum Verkauf steht ein anspruchsvoller Bungalow in einer ruhigen und naturnahen Siedlung in Altlandsberg. Das Haus wurde im Jahr 2000 mit Blähton-Fertigelementen der Firma City Haus zunächst als Musterhaus errichtet und mit einer aufwendigen Klinkerfassade versehen, die dem Gebäude einen zeitlosen und wertbeständigen Charakter verleiht. 2005 wurde es an die heutigen Eigentümer verkauft. Im Erdgeschoss erwartet Sie ein großzügiges Wohnzimmer, das mit einer zusätzlichen Konvektorheizung als Fußbodenheizung an den bodentiefen Fenstern der Terrasse ausgestattet ist und eine behagliche Wohnatmosphäre schafft. Die geräumige Diele verbindet alle weiteren Bereiche des Hauses. Hier befindet sich eine moderne Küche mit hochwertigen Markengeräten und einer gemütlichen Sitzecke aus Holz, die im Haus verbleibt. Über den angrenzenden Flurbereich gelangt man in ein Gäste- oder Ankleidezimmer, in dem sich auch eine Sauna befindet, die ebenfalls Teil des Angebotes ist. Ein Schlafzimmer sowie ein funktionaler Hauswirtschaftsraum mit direktem Zugang zur Garage und in den Garten runden das Raumangebot im Erdgeschoss ab. Im Obergeschoss stehen zwei weitere gemütliche Zimmer zur Verfügung, die durch die Dachflächenfenster lichtdurchflutet sind. Besonders hervorzuheben ist der idyllische Hofgarten, der sowohl über den Hauswirtschaftsraum als auch über die Garage erreichbar ist. Hier lässt es sich wunderbar entspannen, den Tag bei einem Glas Wein ausklingen lassen oder in geselliger Runde mit Familie und Freunden verweilen. Das Grundstück ist pflegeleicht angelegt und überzeugt mit liebevollen Details wie Lavendelbüschen, Rhododendren und sogar eigenen Weintrauben. Das Haus ist vollständig erschlossen mit Gas, Wasser, Abwasser, Strom und Glasfaser. Für Familien besonders attraktiv ist die gute Infrastruktur: Ein Kindergarten liegt nur rund 200 Meter entfernt, und die Schulanbindung erfolgt bequem per Bus nach Altlandsberg. Insgesamt präsentiert sich dieser Bungalow als ein ideales Zuhause für jede Altersklasse, komfortabel, naturnah und bestens ausgestattet.

Weiterlesen

Lage

Nahversorgung
Gastronomie
0,5
 / 5
Gesundheit
1,4
 / 5
Freizeit
1
 / 5
Familie
Einkaufen
Geräusche
icon Sehen Sie diese und weitere Daten mit Ihrem Kundenkonto – kostenlos
Melden Sie sich an oder registrieren Sie sich in wenigen Minuten, um alle Angaben sehen zu können.
icon Weitere Angaben freischalten
Beschreibung

Der charmante Ortsteil Wegendorf bei Altlandsberg bietet die perfekte Verbindung aus ländlicher Ruhe und urbaner Nähe. Nur rund 35 km von Berlin entfernt erreicht man die Hauptstadt mit dem Auto in ca. 40 Minuten oder bequem per Regionalbahn ab Werneuchen. Buslinien binden Wegendorf zusätzlich an Altlandsberg, Strausberg , Werneuchen und die umliegenden Ortschaften an. Im nahen Altlandsberg finden sich alle Einkaufsmöglichkeiten, Schulen und Kitas, ebenso Ärzte und vielfältige Dienstleistungen. Kulturelle Highlights wie das Schlossgut Altlandsberg, traditionelle Stadtfeste und Konzerte verleihen der Region ein lebendiges Flair. Zahlreiche Rad- und Wanderwege sowie die Nähe zur Barnimer Feldmark und zum Strausberger See machen das Wohnen hier auch für Naturliebhaber besonders attraktiv. Wegendorf ist ideal für alle, die entspannt im Grünen leben möchten und zugleich die Vorzüge Berlins in Reichweite schätzen, ob für Familien, Paare oder Berufspendler.

Weiterlesen

Ausstattung

  • Rollläden im Wohnzimmer
  • elektrische Markise /Terrasse
  • Konvektorheizung + Fußbodenheizung/Fensterfront/Wohnzimmer
  • Fußbodenheizung im Dusch-/Wannenbad
  • Infrarotsauna im Gästezimmer
  • Küche mit hochwertigen Markengeräten
  • Hofterrasse ca. 30 m²
  • Garage für zwei Autos und Abstellraum mit Nebeneingangstür
  • 1 Außenparkplatz
  • erschlossen mit Wasser- Abwasser, Gas, Strom, Glasfaser,

Sonstiges

Es liegt ein Energieverbrauchsausweis vor. Dieser ist gültig bis 22.8.2035. Endenergieverbrauch beträgt 82.50 kwh/(m²*a). Wesentlicher Energieträger der Heizung ist Gas. Das Baujahr des Objekts lt. Energieausweis ist 2000. Die Energieeffizienzklasse ist C.

GELDWÄSCHE: Als Immobilienmaklerunternehmen ist die von Poll Immobilien GmbH nach § 2 Abs. 1 Nr. 14 und § 11 Abs. 1, 2 Geldwäschegesetz (GwG) dazu verpflichtet, bei der Begründung einer Geschäftsbeziehung die Identität des Vertragspartners festzustellen und zu überprüfen, bzw. sobald ein ernsthaftes Interesse an der Durchführung des Immobilienkaufvertrages besteht. Hierzu ist es erforderlich, dass wir nach § 11 Abs. 4 GwG die relevanten Daten Ihres Personalausweises festhalten (wenn Sie als natürliche Person handeln) – beispielsweise mittels einer Kopie. Bei einer juristischen Person benötigen wir eine Kopie des Handelsregisterauszugs, aus welchem der wirtschaftlich Berechtigte hervorgeht. Das Geldwäschegesetz sieht vor, dass der Makler die Kopien bzw. Unterlagen fünf Jahre aufbewahren muss. Als unser Vertragspartner haben Sie auch eine Mitwirkungspflicht nach § 11 Abs. 6 GwG.

HAFTUNG: Wir weisen darauf hin, dass die von uns weitergegebenen Objektinformationen, Unterlagen, Pläne etc. vom Verkäufer bzw. Vermieter stammen. Eine Haftung für die Richtigkeit oder Vollständigkeit der Angaben übernehmen wir daher nicht. Es obliegt daher unseren Kunden, die darin enthaltenen Objektinformationen und Angaben auf ihre Richtigkeit hin zu überprüfen. Alle Immobilienangebote sind freibleibend und vorbehaltlich Irrtümer, Zwischenverkauf- und Vermietung oder sonstiger Zwischenverwertung.

UNSER SERVICE FÜR SIE ALS EIGENTÜMER: Planen Sie den Verkauf oder die Vermietung Ihrer Immobilie, so ist es für Sie wichtig, deren Marktwert zu kennen. Lassen Sie kostenfrei und unverbindlich den aktuellen Wert Ihrer Immobilie professionell durch einen unserer Immobilienspezialisten einschätzen. Unser bundesweites und internationales Netzwerk ermöglicht es uns, Verkäufer bzw. Vermieter und Interessenten bestmöglich zusammenzuführen.

Weiterlesen

Grundriss

Schicker Bungalow in familienfreundlicher Wohnlage
Schicker Bungalow in familienfreundlicher Wohnlage

15345 ALTLANDSBERG – WEGENDORF

Schicker Bungalow in familienfreundlicher Wohnlage

ca. 140 m² 5 Zimmer 429.500 EUR

Anbieter
  • Petra Haseloff
  • Shop Barnim
  • An der Stadtmauer 14
  • 16321 Bernau
KI-Inhalt

Aufgrund Ihrer Cookie-Einstellungen kann dieses Video nicht angezeigt werden.