Herzlich Willkommen!
63743 ASCHAFFENBURG / SCHWEINHEIM
Mainblick und Sonnenstunden: Charmantes Zuhause mit großem Gartenglück
630.000 EUR
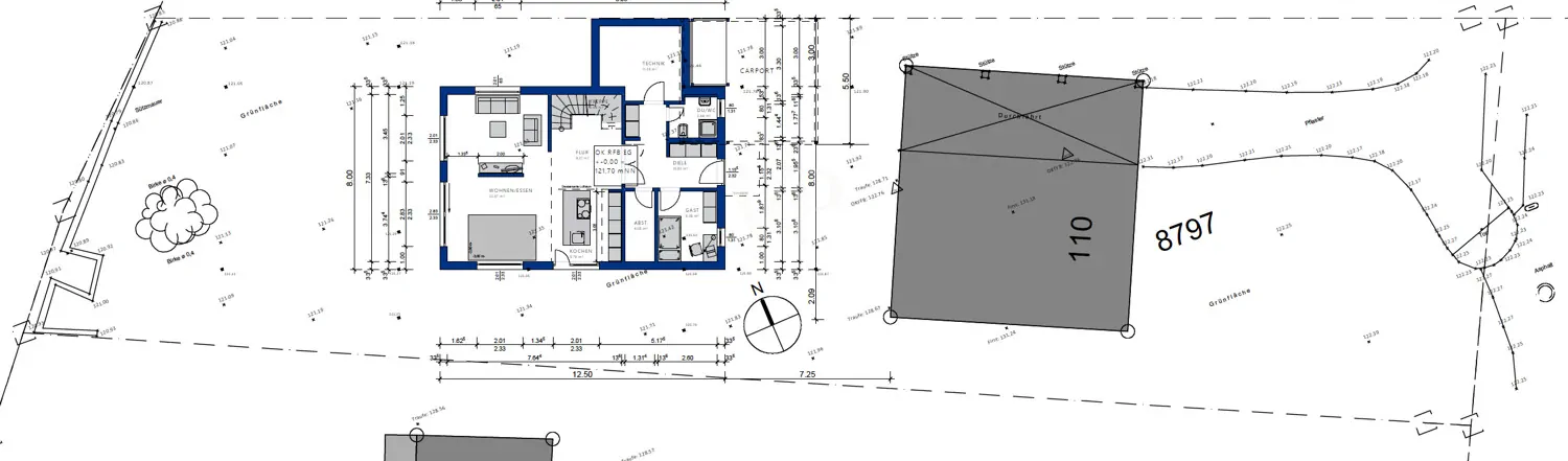
Wohnfläche ca. 143,09 m²
Grundstück ca. 984 m²
Zimmer 5
Kaufpreis 630.000 EUR
Anbieter
  • Alexander Rauh
  • Shop Aschaffenburg
  • Sandgasse 42
  • 63739 Aschaffenburg
Bewerbung wird geladen...

Immobilienanfrage

Füllen Sie das Formular aus und unsere Immobilien-Experten melden sich in Kürze bei Ihnen.

Ihre persönlichen Daten

Ihre Bewerbung wird vertraulich behandelt.

Übersicht

Highlights

Gäste-WC
Kamin
Garten/-mitbenutzung
Einbauküche
Balkon

Details

Objektnummer

24007010

Haustyp

Einfamilienhaus

Bauweise

Massiv

Stellplatz

1 x Carport, 1 x Freiplatz

Zustand der Immobilie

Sanierungsbedürftig

Badezimmer

1

Baujahr

1959

Schlafzimmer

4

Provision

Käuferprovision beträgt 3,57 % (inkl. MwSt.) des beurkundeten Kaufpreises

Energieinformationen

Skala

H

Energieeffizienzklasse

H

Endenergiebedarf

411,98 kWh/m²a

Energieausweis

Bedarfsausweis

Energieausweis gültig bis

20.12.2035

Baujahr laut Energieausweis

1959

Wesentlicher Energieträger

Öl

Befeuerung

Öl

Heizungsart

Zentralheizung

Beschreibung

Willkommen zu diesem besonderen Angebot auf dem Immobilienmarkt: Hier präsentiert sich Ihnen ein Einfamilienhaus mit Potenzial, das sowohl mit Lage als auch Perspektiven überzeugt. Das Haus stammt aus dem Baujahr 1959 und bietet eine Wohnfläche von circa 145 m², die sich auf insgesamt fünf Zimmer verteilt.

Bei einer Grundstücksfläche von rund 984 m² genießen Sie großzügige Freiheiten zur individuellen Gestaltung, sei es im Bereich Garten oder Erweiterung.Die Raumaufteilung ist funktional: Das Objekt verfügt über vier separat nutzbare Schlafzimmer, die genügend Rückzugsorte für Familienmitglieder oder Gäste bieten. Ein Tageslichtbad rundet das Raumangebot ab. Die Wohnräume sind von normaler Ausstattungsqualität und bieten eine solide Grundlage für Modernisierungsmaßnahmen nach eigenen Vorstellungen.

Eine der besonderen Eigenschaften dieses Objekts ist der unverbaubare Mainblick, den Sie aus dem Bestandshaus und vom Grundstück genießen dürfen. Der Standort am Stadtrand kombiniert wohnliche Ruhe mit bester Erreichbarkeit aller zentralen Einrichtungen. In nur zehn Fußminuten sind Sie am Floßhafen, wo Flusslandschaft und Freizeitmöglichkeiten auf Sie warten. Sonne und Ruhe sind hier fester Bestandteil des Alltags.

Ein weiteres Plus: Die Bebauung des Grundstücks richtet sich nach §34 BauGB, wodurch flexible Planungsmöglichkeiten bestehen. Das Grundstück ist rückwärtig sofort bebaubar, sodass Änderungen, Erweiterungen oder eventuell ein Ersatzbau zügig umgesetzt werden können.

Das Bestandsgebäude befindet sich in einem sanierungsbedürftigen Zustand – bietet jedoch eine charmante Basis für kreative Umsetzungen und die Schaffung eines individuellen Zuhauses.Ergänzt wird die Immobilie durch einen Betonkeller, der als zusätzliche Nutzfläche, Lager oder Hobbyraum dient. Die vorhandenen Möblierungen und Einbauten sind zweckmäßig und stellen eine brauchbare Ausgangslage für verschiedene Nutzungskonzepte dar.Die Umgebung zeichnet sich durch eine gewachsene Nachbarschaft und eine angenehme Durchmischung aus. Sie profitieren von einer hervorragenden Verbindung ins Stadtzentrum, während Sie zugleich das beruhigende Ambiente und den Blick auf den Main genießen. Diese Immobilie vereint ein großzügiges Raumangebot mit einer herausragenden Lage am Stadtrand – ideale Voraussetzungen für Familien, Paare oder Menschen mit Platzbedarf und Entwicklungsideen.Zögern Sie nicht, sich selbst ein Bild von den Möglichkeiten zu machen, die dieses Objekt Ihnen bietet.

Sie haben Interesse diese vielversprechende Investition mit viel Potenzial und Charme besser kennen zu lernen? Das von Poll Team Aschaffenburg freut sich auf Ihre Kontaktaufnahme!

Weiterlesen

Lage

Beschreibung

Der Main und die fußläufig zu erreichende Innenstadt mit ihrer ausgezeichneten Infrastruktur liegt Ihnen direkt zu Füßen. Hervorzuheben sind die umfassenden Einkaufsmöglichkeiten, Kindergärten und Schulen, als auch die weiterführenden Schulen, die Hochschule, Fußgängerzone, Geschäften, Restaurants, Theater u.v.m.

Ein weiterer Pluspunkt ist die gute Anbindung an den ÖPNV und zur Autobahn A3 Frankfurt/Würzburg (in ca. 30 Minuten zum Flughafen) oder der A45 Hanau/Gießen.

Einen hervorragenden Einblick von Aschaffenburg erhalten Sie auch über diesen kleinen Film auf YouTube: https://www.youtube.com/watch?v=u3Me3JaQL-w

Weiterlesen

Finanzierung

Sie interessieren sich für eine Baufinanzierung? Finden Sie mit VON POLL FINANCE* die richtige Immobilienfinanzierung.

Gesamtkosten: 687.141 EUR
Kaufpreis
630.000 EUR
Grunderwerbsteuer
22.050 EUR
3,50 %
Maklerprovision
22.491 EUR
3,57 %
Notarkosten
9.450 EUR
1,50 %
Grundbucheintrag
3.150 EUR
0,50 %
Passendes Finanzierungsangebot:
Eigenkapital: 171.785 EUR
Nettodarlehen: 515.000 EUR
Sollzinsbindung: 10 Jahre; Tilgungsrate: 1,17 %
Ihr Finanzierungsbeispiel:
Sollzins: 3,45 %
Effektivzins: 3,52 %

Basierend auf einem Nettoeinkommen von 4.831 EUR und einer Eigenkapitalquote von 25 %.

Darlehensanbieter: Commerzbank

Baufinanzierung unverbindlich anfragen. Über 700 Darlehensgeber im Vergleich. Jetzt Ihren persönlichen Finanzierungsexperten kontaktieren.
Finanzierung berechnen

Ausstattung

  • + unverbaubarer Mainblick
  • + Sonne und Ruhe inkludiert
  • + Bebauung nach §34 BauGB
  • uvm.

Sonstiges

Es liegt ein Energiebedarfsausweis vor. Dieser ist gültig bis 20.12.2035. Endenergiebedarf beträgt 411.98 kwh/(m²*a). Wesentlicher Energieträger der Heizung ist Öl. Das Baujahr des Objekts lt. Energieausweis ist 1959. Die Energieeffizienzklasse ist H.

GELDWÄSCHE: Als Immobilienmaklerunternehmen ist die von Poll Immobilien GmbH nach § 2 Abs. 1 Nr. 14 und § 11 Abs. 1, 2 Geldwäschegesetz (GwG) dazu verpflichtet, bei der Begründung einer Geschäftsbeziehung die Identität des Vertragspartners festzustellen und zu überprüfen, bzw. sobald ein ernsthaftes Interesse an der Durchführung des Immobilienkaufvertrages besteht. Hierzu ist es erforderlich, dass wir nach § 11 Abs. 4 GwG die relevanten Daten Ihres Personalausweises festhalten (wenn Sie als natürliche Person handeln) – beispielsweise mittels einer Kopie. Bei einer juristischen Person benötigen wir eine Kopie des Handelsregisterauszugs, aus welchem der wirtschaftlich Berechtigte hervorgeht. Das Geldwäschegesetz sieht vor, dass der Makler die Kopien bzw. Unterlagen fünf Jahre aufbewahren muss. Als unser Vertragspartner haben Sie auch eine Mitwirkungspflicht nach § 11 Abs. 6 GwG.

HAFTUNG: Wir weisen darauf hin, dass die von uns weitergegebenen Objektinformationen, Unterlagen, Pläne etc. vom Verkäufer bzw. Vermieter stammen. Eine Haftung für die Richtigkeit oder Vollständigkeit der Angaben übernehmen wir daher nicht. Es obliegt daher unseren Kunden, die darin enthaltenen Objektinformationen und Angaben auf ihre Richtigkeit hin zu überprüfen. Alle Immobilienangebote sind freibleibend und vorbehaltlich Irrtümer, Zwischenverkauf- und Vermietung oder sonstiger Zwischenverwertung.

Weiterlesen

63743 ASCHAFFENBURG / SCHWEINHEIM

Mainblick und Sonnenstunden: Charmantes Zuhause mit großem Gartenglück

ca. 143,09 m² 5 Zimmer 630.000 EUR

Anbieter
  • Alexander Rauh
  • Shop Aschaffenburg
  • Sandgasse 42
  • 63739 Aschaffenburg