Coverpic1
51145 KöLN
Építési engedéllyel rendelkező ingatlan számos felhasználási lehetőséggel a Köln/Bonn repülőtéren
3.500.000 EUR
Földterület ca. 4.560 m²
Vételár 3.500.000 EUR

Szolgáltató

  • Sven Walter
  • Shop Köln - Kereskedelmi
  • Unter Käster 14-16
  • 50667 Köln
Az alkalmazás betöltődik...

Ingatlan ajánlatkérés

Töltse ki az űrlapot, és ingatlanszakértőink hamarosan válaszolnak Önnek.

Az Ön személyes adatai

Az Ön jelentkezését bizalmasan kezeljük.

Áttekintés

Kiemelt információk

Részletek

VP azonosító

2341010G3

Ház típusa

Telek

Jutalék

Käuferprovision 4,76 % (inkl. MwSt.) des beurkundeten Kaufpreises.

Energetikai információk

Az energetikai tanúsítvány elkészítése folyamatban.

Ingatlan leírása

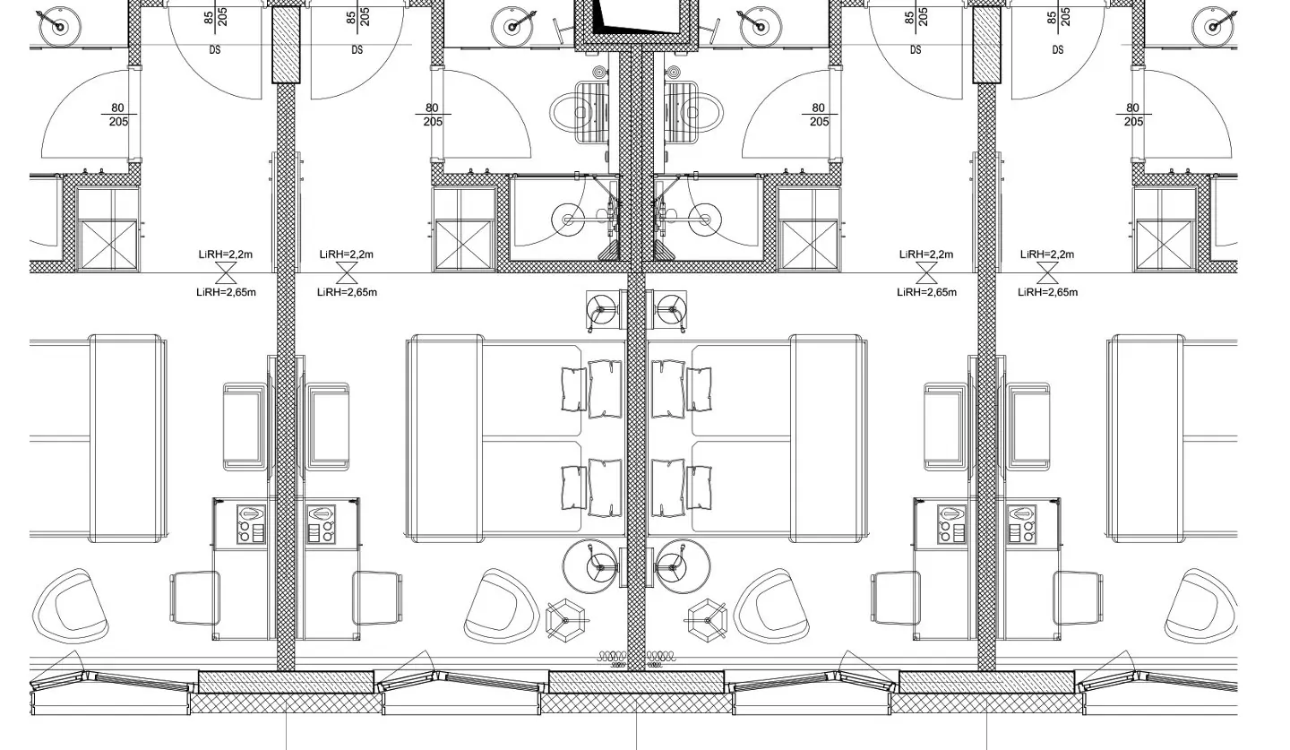
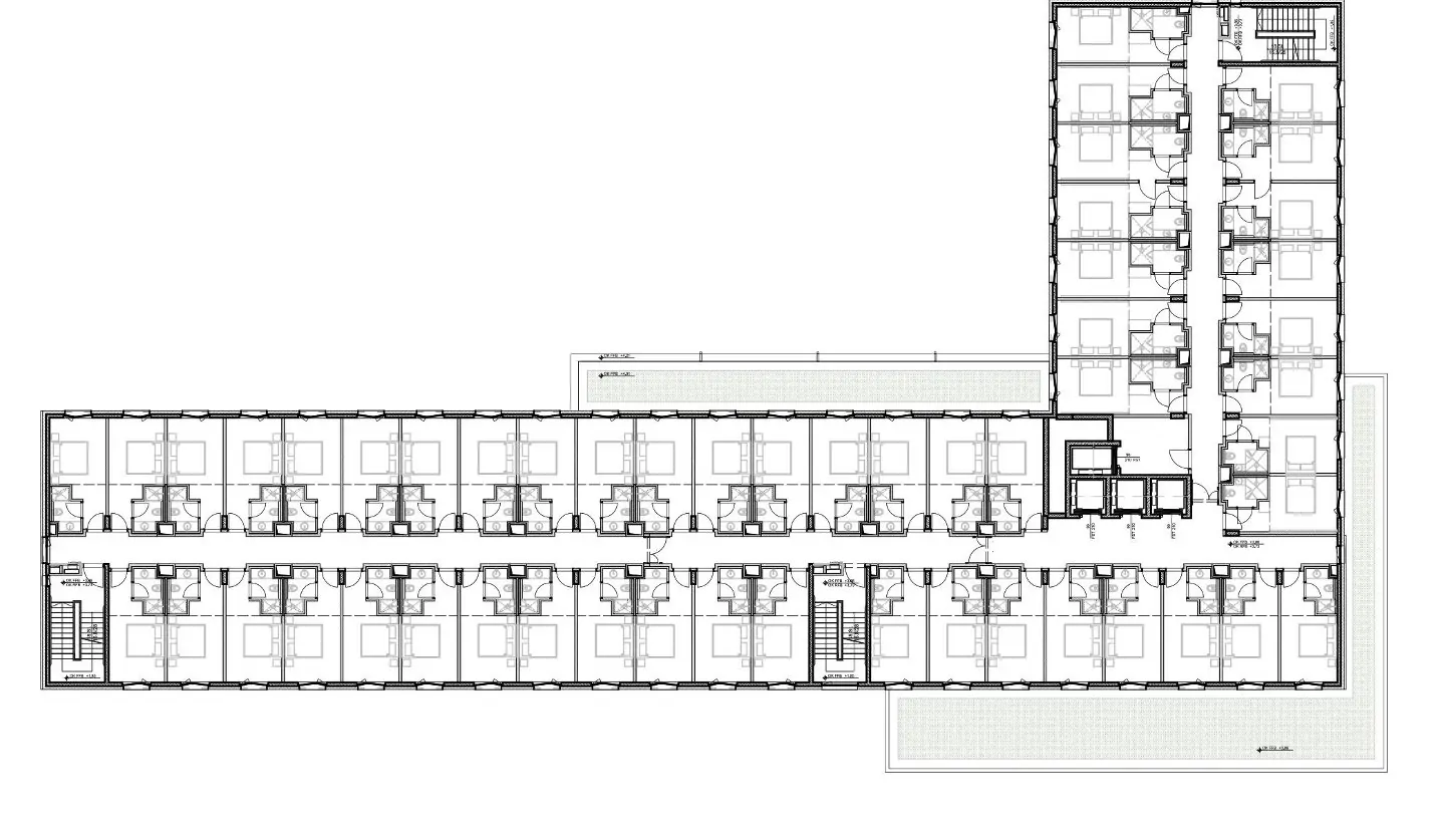
A VON POLL COMMERCIAL bemutatja ezt a kiváló elhelyezkedésű ingatlant a Köln/Bonn repülőtér közvetlen közelében. Ez a beépítetlen kereskedelmi telek Köln-Urbachban található. Körülbelül 4560 m² összterületével kiváló lehetőségeket kínál különféle kereskedelmi ingatlanok építésére. Jelenleg építési engedély és részletes tervek állnak rendelkezésre egy 3 csillagos szálloda megépítésére, amely 227 szobával (454 férőhellyel), 76 parkolóhellyel és körülbelül 8600 m² bruttó alapterülettel rendelkezik. Az étterem és a bár természetesen nyitva áll a nyilvánosság számára. Az ingatlan irodaépületek vagy raktárak építésére is alkalmas.

Bővebben

Helyszínek: Köln

Elhelyezkedés leírása

Das Gewerbegrundstück liegt in einer erstklassigen Lage an der Joseph-Broicher-Straße in Köln Urbach. Urbach ist ein aufstrebender Stadtteil und zeichnet sich durch seine hervorragende Verkehrsanbindung und gute Infrastruktur aus.

Der Standort ermöglicht eine schnelle Anbindung an das Stadtzentrum von Köln (ca. 15 min) sowie an den Flughafen Köln/Bonn (ca. 2 min) und die Autobahnen A3, A4 und A59 in nur wenigen Minuten. Die öffentliche Verkehrsanbindung ist ebenfalls ausgezeichnet. So haben Sie beispielsweise eine Vielzahl an Bushaltestellen in unmittelbarer Nähe des Grundstücks, welche fußläufig erreichbar sind. Die ideale Lage gewährleistet eine hohe Sichtbarkeit und gute Erreichbarkeit für potenzielle Kunden und Mitarbeiter.

In der direkten Umgebung des Grundstücks finden sich verschiedene Gewerbebetriebe sowie Wohngebiete, was eine potenzielle Kundenbasis sowohl aus der lokalen Bevölkerung als auch aus dem umliegenden Geschäftsumfeld bietet. Darüber hinaus sind Einkaufsmöglichkeiten, Restaurants und Freizeiteinrichtungen zu Genüge vorhanden. Urbach als Stadtteil von Köln bietet eine lebendige und dynamische Umgebung, die ein breites Spektrum an potenziellen Geschäftsmöglichkeiten und eine positive wirtschaftliche Entwicklung unterstützt.

Bővebben

51145 KöLN

Építési engedéllyel rendelkező ingatlan számos felhasználási lehetőséggel a Köln/Bonn repülőtéren

ca. 4.560 m² 3.500.000 EUR

Szolgáltató

  • Sven Walter
  • Shop Köln - Kereskedelmi
  • Unter Käster 14-16
  • 50667 Köln