Seafront-penthouse-in-Puerto-de-Pollensa
07470 PUERTO DE POLLENSA (ESP) – NORD
Fabulous newly built seafront apartment in Puerto de Pollensa
1.800.000 EUR
Living Space ca. 115 m²
Rooms 4
Purchase Price 1.800.000 EUR
Provider
  • Christian W. Czarnetzki
  • Shop Mallorca - Pollensa
  • C./Cecilio Metelo 67
  • E-07460 Pollensa
Application is loaded...

Real estate inquiry

Fill out the form and our real estate experts will get back to you shortly.

Your personal data

Your application will be treated confidentially.

Overview

Highlights

Terrace
Swimming pool

Details

Property ID

ES255372

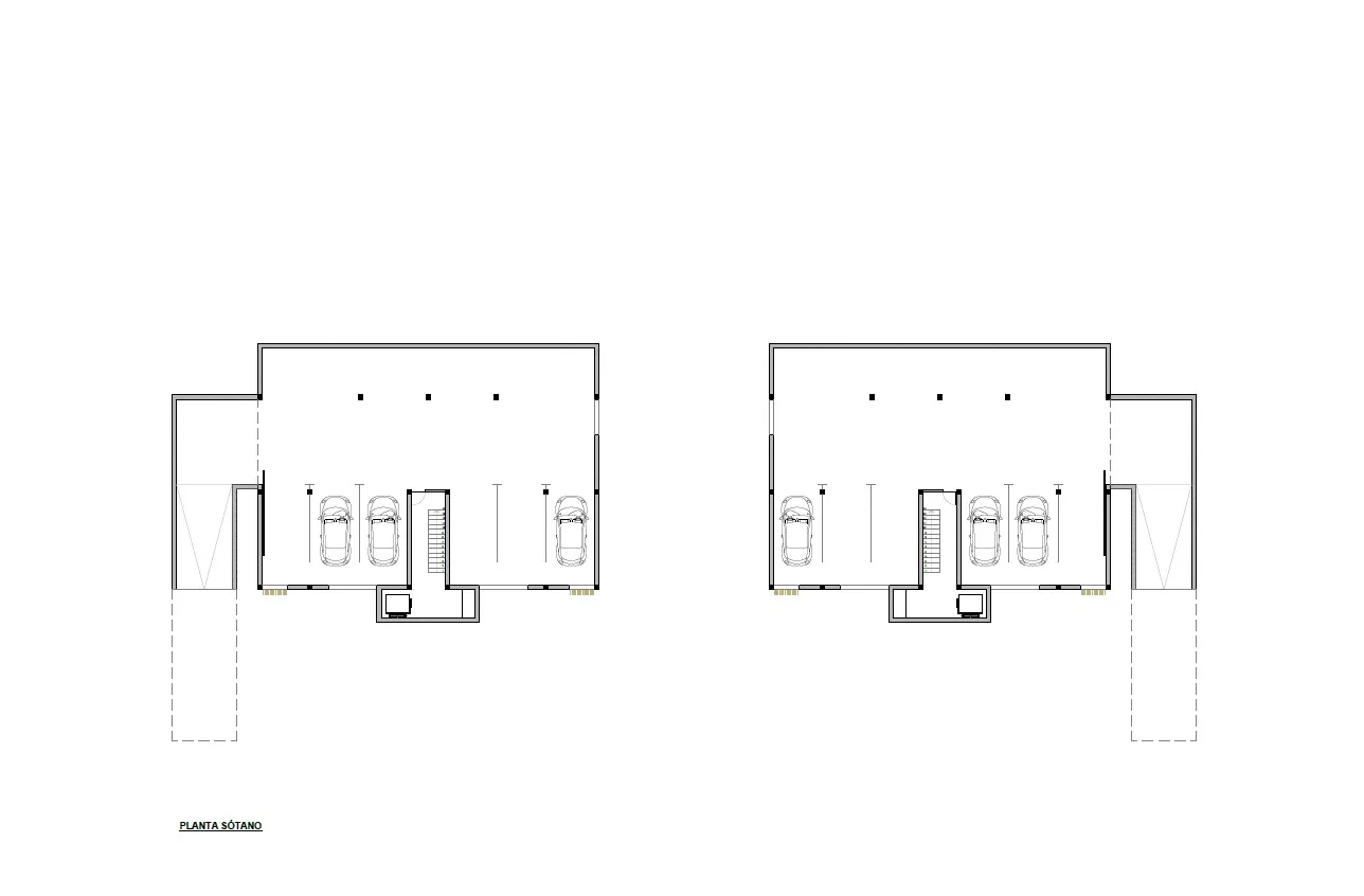
Parking space

1 x Multi-storey car park

Condition of property

First occupancy

Bathrooms

3

Bedrooms

3

Energy information

At the time of preparing the document, no energy certificate was available.

Description

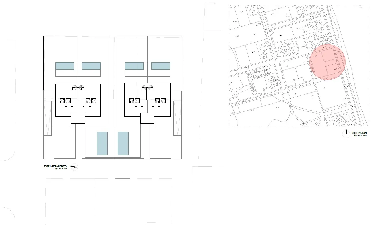
Magnificent newly built apartment directly in front of the sea in Puerto de Pollensa, one of the most privileged areas of Mallorca. Located just a few meters from all public services and points of interest, while still enjoying a peaceful residential area with direct access to the sea.

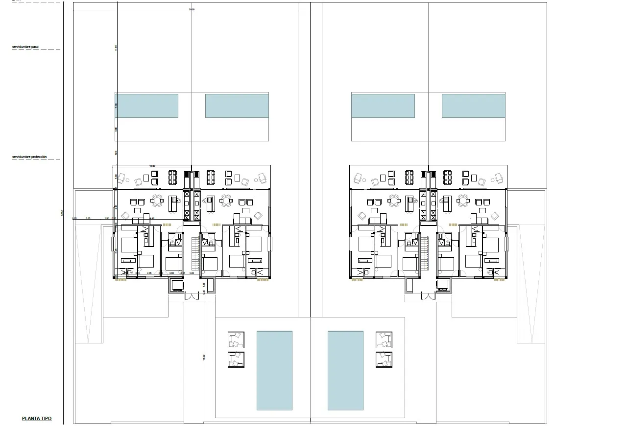
This apartment is part of a newly constructed development consisting of two buildings with a total of 12 apartments: 4 penthouses, 4 first-floor units, and 4 ground-floor apartments.

This fantastic apartment offers 145 m² of built space, including a 30 m² terrace with spectacular views. It features three generously sized bedrooms, each with its own en-suite bathroom. The open-plan living area is filled with natural light thanks to large windows and excellent sun exposure. It includes a modern, fully furnished and equipped kitchen, a dining area, and a fabulous living room. The entire property boasts breathtaking views of the white sandy beach and the Bay of Pollensa.

Large windows, centralized air conditioning, and a private parking space complete this fabulous frontline property. The building also offers a beautiful communal swimming pool with a sunbathing area.

This apartment is a true gem, inviting you to enjoy life permanently! Don’t miss this opportunity to own your very own private paradise!

Read more

07470 PUERTO DE POLLENSA (ESP) – NORD

Fabulous newly built seafront apartment in Puerto de Pollensa

ca. 115 m² 4 Rooms 1.800.000 EUR

Provider
  • Christian W. Czarnetzki
  • Shop Mallorca - Pollensa
  • C./Cecilio Metelo 67
  • E-07460 Pollensa