Listed building complex - Large, mature property - Let your ideas run wild
94474 VILSHOFEN AN DER DONAU – VILSHOFEN
Listed building complex - Large, mature property - Let your ideas run wild
599.000 EUR
Living Space ca. 731,63 m²
Land area ca. 3.078 m²
Rooms 25
Purchase Price 599.000 EUR
Provider
  • Mathias Zank
  • Shop Passau
  • Heiliggeistgasse 1
  • 94032 Passau
Application is loaded...

Real estate inquiry

Fill out the form and our real estate experts will get back to you shortly.

Your personal data

Your application will be treated confidentially.

Overview

Highlights

Details

Property ID

25345029b

Condition of property

In need of renovation

Bathrooms

11

Year of construction

1840

Bedrooms

14

Commission

Käuferprovision beträgt 3,57 % (inkl. MwSt.) des beurkundeten Kaufpreises

Energy information

Energy Certificate

Legally not required

Description

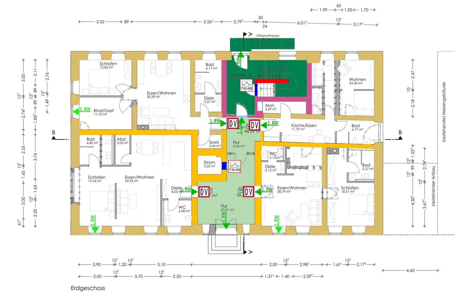
For sale is a plot of land with a total area of 3078 m². Now we need your ideas – what are your plans? - Assisted living - Day care - Day clinic - Children's home - Restaurant with beer garden (the right to operate a tavern is even registered in the land register) - Hotel - Grocery store / Retail - the possibilities of this property are endless. The property comprises a complex of 5 buildings, 3 of which are listed as historical monuments. The large, mature grounds with established trees give the property an additional charm, making it all the more attractive for various uses. A place steeped in history. Construction took place around 1840, and it operated as an inn for many years. Building I offers appropriately sized rooms for various uses. The ground floor contains the original dining rooms of the inn. The first floor formerly housed a ballroom. Most of the walls here are drywall, so another large room could be created. For Building I, there is also a valid building permit for 11 apartments with a total living space of 731.63 m². Conversion can begin immediately. This would also be an alternative. The house is completely vacated but still needs to be gutted. All necessary approvals regarding historic preservation have already been incorporated into the building permit. There are also corresponding funding opportunities available for the conversion. Building II: This is a small outbuilding, which is not a listed building and is currently rented as an electrical shop. Monthly rent: €250 (excluding utilities). Building III: This is an old barn, which is also a listed building; various ideas are feasible here as well. Building IV: This is also an agricultural building at the rear of the property. The ground floor, which was once used as a stable, features Bohemian vaulted ceilings that have been assessed as worthy of preservation. This building is also a listed building. There are two additional floors above. The building is connected to the neighboring building, which has already been converted and modernized into a residential building by the neighbor. The potential uses for this building are virtually limitless. Building V: This part of the property is leased, and the lease expires on December 31, 2025. By this date, the garage, including its foundation and driveway, must be demolished, and the original condition – a meadow – restored. This structure is not part of the sale; only the land itself, as a green space, is included. Naturally, various uses are conceivable for the different buildings. There are numerous funding opportunities available for listed buildings, including grants and low-interest loans from the KfW Bank for energy-efficient renovations, as well as subsidies and tax breaks for the preservation of historical structures from the federal government, the states, municipalities, and the German Foundation for Monument Protection (DSD). This also contributes to the property's appeal.

Read more

Location

Description

Vilshofen an der Donau: Vilshofen ist eine charmante Stadt im niederbayerischen Landkreis Passau, die malerisch an der Donau liegt. Die Stadt ist bekannt für ihre historische Altstadt mit verwinkelten Gassen und schönen Gebäuden, die ihre Geschichte widerspiegeln. Ein markantes Wahrzeichen ist das Schloss Vilshofen, das hoch über der Stadt thront und einen beeindruckenden Blick auf die Donau bietet. Die Stadt hat eine lange Tradition im Handel und in der Schifffahrt und wird oft als Tor zum Bayerischen Wald bezeichnet. In Vilshofen gibt es auch eine schöne Flaniermeile entlang des Flusses, die besonders im Sommer ein beliebtes Ziel für Spaziergänge und Bootsfahrten ist.

Sandbach: Sandbach ist ein kleinerer Ortsteil von Vilshofen und liegt in unmittelbarer Nähe zur Stadt. Der Ort hat ländlichen Charme und wird von weiten Feldern und Wäldern umgeben. Sandbach ist vor allem für seine Ruhe und Naturverbundenheit bekannt. Hier finden sich traditionelle Bauernhöfe und landwirtschaftlich geprägte Flächen. Der Ort ist ideal für Wanderungen und Ausflüge in die umliegende Natur. Obwohl Sandbach klein ist, ist er mit der Stadt Vilshofen gut verbunden und bietet seinen Bewohnern die Nähe zu städtischen Annehmlichkeiten, ohne auf die ländliche Idylle verzichten zu müssen.

In unmittelbarer Näher zum Objekt befindet sich auch die Donaufähre Sandbach, die Sandbach mit dem andere Ufer der Donau verbindet, so dass lange Umwege mit dem Auto abgekürzt werden können.

Zusammengefasst bietet die Region rund um Vilshofen und Sandbach eine gelungene Mischung aus historischer Stadtgeschichte und ländlicher Ruhe – ideal für Menschen, die sowohl das Leben in einer Stadt als auch die Nähe zur Natur genießen möchten.

Read more

Miscellaneous

PROVISIONSHINWEIS: Mit der Anfrage bei und durch Inanspruchnahme der Dienstleistung der Firma von Poll Immobilien GmbH, wird ein Maklervertrag geschlossen. Sofern es durch die Tätigkeit der Firma VON POLL IMMOBILIEN GmbH zu einem wirksamen Hauptvertrag mit der Eigentümerseite kommt, hat der Interessent bei Abschluss - eines MIETVERTRAGS keine Provision/Maklercourtage an die von Poll Immobilien GmbH zu zahlen. - eines KAUFVERTRAGS die ortsübliche Provision/Maklercourtage an die von Poll Immobilien GmbH gegen Rechnung zu zahlen.

GELDWÄSCHE: Als Immobilienmaklerunternehmen ist die von Poll Immobilien GmbH nach § § 1, 2 Abs. 1 Nr. 10, 4 Abs. 3 Geldwäschegesetz (GwG) dazu verpflichtet, vor Begründung einer Geschäftsbeziehung die Identität des Vertragspartners festzustellen und zu überprüfen. Hierzu ist es erforderlich, dass wir die relevanten Daten Ihres Personalausweises festhalten – beispielsweise mittels einer Kopie. Das Geldwäschegesetz (GwG) sieht vor, dass der Makler die Kopien bzw. Unterlagen fünf Jahre aufbewahren muss.

HAFTUNG: Wir weisen darauf hin, dass die von uns weitergegebenen Objektinformationen, Unterlagen, Pläne etc. vom Verkäufer bzw. Vermieter stammen. Eine Haftung für die Richtigkeit oder Vollständigkeit der Angaben übernehmen wir daher nicht. Es obliegt daher unseren Kunden, die darin enthaltenen Objektinformationen und Angaben auf ihre Richtigkeit hin zu überprüfen. Alle Immobilienangebote sind freibleibend und vorbehaltlich Irrtümer, Zwischenverkauf- und Vermietung oder sonstiger Zwischenverwertung.

UNSER SERVICE FÜR SIE ALS EIGENTÜMER: Planen Sie den Verkauf oder die Vermietung Ihrer Immobilie, so ist es für Sie wichtig, deren Marktwert zu kennen. Lassen Sie kostenfrei und unverbindlich den aktuellen Wert Ihrer Immobilie professionell durch einen unserer Immobilienspezialisten einschätzen. Unser bundesweites und internationales Netzwerk ermöglicht es uns, Verkäufer bzw. Vermieter und Interessenten bestmöglich zusammenzuführen.

Read more

94474 VILSHOFEN AN DER DONAU – VILSHOFEN

Listed building complex - Large, mature property - Let your ideas run wild

ca. 731,63 m² 25 Rooms 599.000 EUR

Provider
  • Mathias Zank
  • Shop Passau
  • Heiliggeistgasse 1
  • 94032 Passau