02692 DOBERSCHAU-GAUSSIG / DOBERSCHAU
Einfamilienhaus mit schön angelegtem Garten bei Bautzen
- ca. 181,63 m² Living Space
- ca. 1.280 m² Land area
- 5 Rooms
- 240.000 EUR Purchase Price
Overview
Highlights
Details
Property ID
25326038
Construction method
Solid
Parking space
1 x Car port, 1 x Outdoor parking space
Condition of property
Well-maintained
Bathrooms
1
Year of construction
1870
Bedrooms
3
Commission
Käuferprovision beträgt 3,57 % (inkl. MwSt.) des beurkundeten Kaufpreises
Energy information
Scale
Energy efficiency class
H
Final energy consumption
289,93 kWh/m²a
Energy Certificate
Energy consumption certificate
Energy certificate valid until
02.07.2033
Year of construction according to energy certificate
2017
Energy Source
Pellet
Power Source
Pellet-Fuelled
Type of heating
Central heating
Description
Dieses ansprechende Einfamilienhaus aus dem Jahr 1870 steht auf einem ca. 1.280 m² großen Grundstück. Die Kernsanierung erfolgte im Jahr 1998. Mit einer Wohnfläche von ca.181 m² eignet sich die Immobilie sowohl für Investoren, als auch für Familien, die ein charaktervolles Zuhause mit großzügigem Platzangebot suchen.
Im Erdgeschoss bildet die geräumige Küche mit ca. 21,50 m² den Mittelpunkt des Familienlebens.Gegenüber der Küche befindet sich ein praktischer Abstellraum mit etwa 14,20 m², der vielseitig genutzt werden kann. Ein separater Heizungsraum (ca. 9,90 m²), ein Büro (ca. 14,20 m²) sowie ein Bad mit Dusche (ca. 8,95 m²) erhöhen den Komfort und bieten flexible Nutzungsmöglichkeiten.
Im Obergeschoss erwartet Sie ein großzügiges Wohnzimmer mit etwa 29,36 m², das viel Raum zur individuellen Gestaltung bietet. Hier befindet sich auch das Schlafzimmer (ca. 16,52 m²). Ein weiter Raum bietet 8,38 m². Dieser kann als zweites Bad genutzt werden. Alle Anschlüsse für Sanitär sind vorhanden.
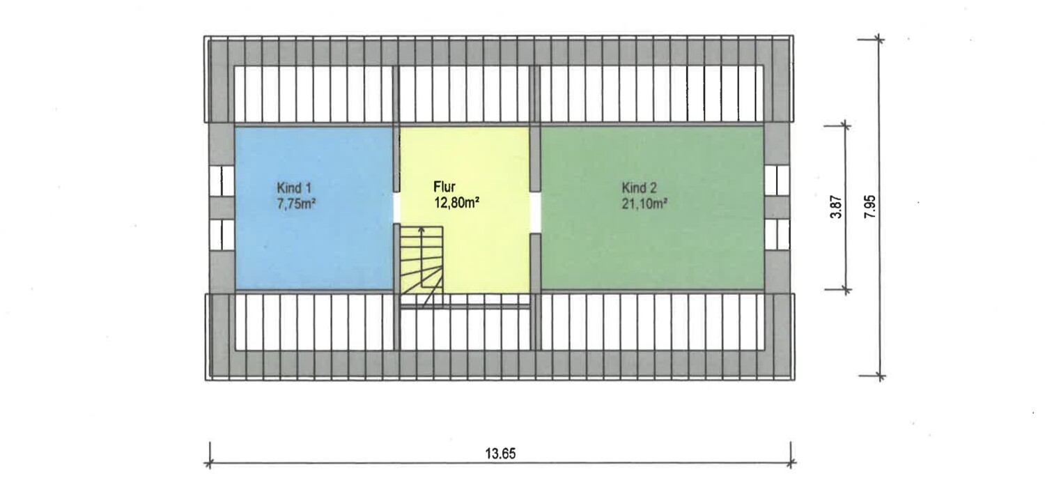
Das Dachgeschoss beherbergt 2 weitere Schlafzimmer mit ca. 21,10 m² und ca. 7,75. Diese Räume bieten flexible Möglichkeiten für individuelle Bedürfnisse.
Besonders hervorzuheben ist der liebevoll angelegte Garten, der mit einer gemütlichen Sitzecke – ein idealer Platz zum Entspannen und Genießen warmer Tage. Für Ihr Fahrzeug steht ein Carport zur Verfügung, der zusätzlichen Komfort bietet.
Aktuell ist das Einfamilienhaus vermietet. Die Jahresnettomiete beträgt 7.800 €.
Location
Description
Doberschau-Gaußig in Sachsen besticht durch seine ländliche Idylle und eine stabile, familienfreundliche Gemeinschaft von rund 4.200 Einwohnern. Die ausgewogene Altersstruktur und die ruhige Atmosphäre schaffen ein sicheres und harmonisches Umfeld, das besonders Familien anspricht, die Wert auf Lebensqualität und Geborgenheit legen. Die Nähe zur Stadt Bautzen gewährleistet eine solide Infrastruktur mit umfassenden schulischen und medizinischen Angeboten, während die naturnahe Umgebung Raum für Erholung und gemeinschaftliches Miteinander bietet.
Die Gemeinde zeichnet sich durch eine besonders familienorientierte Lebensweise aus, die von Sicherheit und Nachbarschaft geprägt ist. Hier finden Kinder und Eltern gleichermaßen optimale Bedingungen vor: großzügige Spielplätze und vielfältige Sportmöglichkeiten sind in nur wenigen Gehminuten erreichbar und laden zu aktiver Freizeitgestaltung ein. Die ländliche Ruhe und das Gefühl einer starken Gemeinschaft schaffen einen idealen Rahmen für ein behütetes Aufwachsen und sorgen für eine ausgewogene Work-Life-Balance.
In unmittelbarer Umgebung befinden sich zahlreiche Einrichtungen, die das Familienleben bereichern. Für die Kleinsten sind Kindergärten und Grundschulen innerhalb von etwa 20 bis 30 Minuten zu Fuß erreichbar, während weiterführende Schulen und berufsbildende Einrichtungen in Bautzen eine exzellente Bildungsvielfalt bieten. Die medizinische Versorgung ist durch nahegelegene Fachärzte, Kinderärzte und Apotheken sichergestellt, sodass im Krankheitsfall schnelle und kompetente Hilfe gewährleistet ist. Einkaufsmöglichkeiten für den täglichen Bedarf liegen bequem in sechs bis zehn Minuten Fußweg, was den Alltag erleichtert. Für entspannte Stunden sorgen gemütliche Cafés und familienfreundliche Restaurants in fußläufiger Entfernung, die zum Verweilen und gemeinsamen Genießen einladen. Die Anbindung an den öffentlichen Nahverkehr ist durch nahegelegene Bushaltestellen in rund sechs bis sieben Minuten Fußweg gut gewährleistet, sodass auch Pendelwege stressfrei gestaltet werden können.
Für Familien, die ein sicheres, naturnahes und zugleich gut angebundenes Zuhause suchen, bietet Doberschau-Gaußig eine einzigartige Kombination aus ländlicher Geborgenheit und moderner Infrastruktur. Hier können Kinder unbeschwert aufwachsen, während Eltern die Vorzüge einer starken Gemeinschaft und vielfältiger Freizeitmöglichkeiten genießen – ein Ort, an dem Familienwünsche wahr werden.
Features
- Baujahr um 1870
- Kernsanierung 1998
- Wohnfläche ca. 181 m²
- Carport für ein PKW + 1 Stellplatz
- Bad mit Dusche
- schön angelegter Garten mit Sitzecke & Außendusche
- vollbiologische Kläranlage
- Pelletheizung
- aktuell vermietet
- Erdgeschoss:
- Küche ca. 21,50 m²
- Abstellraum ca. 14,20 m²
- Heizungsraum ca. 9,90 m²
- Bad mit Dusche ca. 8,95 m²
- Flur ca. 19,90 m²
- Obergeschoss:
- Wohnzimmer ca. 29,36 m²
- Schlafzimmer ca. 16,52 m²
- Arbeitszimmer ca. 8,38 m² (Anschlüsse für 2. Bad vorhanden)
- Flur ca. 23 m²
- Dachgeschoss:
- Schlafzimmer 1 ca. 21,10 m²
- Schlafzimmer 2 ca. 7,75 m²
- Flur ca. 7,75 m²
Miscellaneous
Es liegt ein Energieverbrauchsausweis vor. Dieser ist gültig bis 2.7.2033. Endenergieverbrauch beträgt 289.93 kwh/(m²*a). Wesentlicher Energieträger der Heizung ist Pelletheizung. Das Baujahr des Objekts lt. Energieausweis ist 2017. Die Energieeffizienzklasse ist H.
GELDWÄSCHE: Als Immobilienmaklerunternehmen ist die von Poll Immobilien GmbH nach § 2 Abs. 1 Nr. 14 und § 10 Abs. 3 Geldwäschegesetz (GwG) dazu verpflichtet, bei der Begründung einer Geschäftsbeziehung die Identität des Vertragspartners festzustellen und zu überprüfen. Hierzu ist es erforderlich, dass wir nach § 11 GwG die relevanten Daten Ihres Personalausweises festhalten (wenn Sie als natürliche Person handeln) – beispielsweise mittels einer Kopie. Bei einer juristischen Person benötigen wir eine Kopie des Handelsregisterauszugs, aus welchem der wirtschaftlich Berechtigte hervorgeht. Das Geldwäschegesetz sieht vor, dass der Makler die Kopien bzw. Unterlagen fünf Jahre aufbewahren muss. PROVISIONSHINWEIS: Mit der Anfrage bei und durch Inanspruchnahme der Dienstleistung der Firma von Poll Immobilien GmbH, wird ein Maklervertrag geschlossen. Sofern es durch die Tätigkeit der Firma VON POLL IMMOBILIEN GmbH zu einem wirksamen Hauptvertrag mit der Eigentümerseite kommt, hat der Interessent bei Abschluss - eines MIETVERTRAGS keine Provision/Maklercourtage an die von Poll Immobilien GmbH zu zahlen. - eines KAUFVERTRAGS die ortsübliche Provision/Maklercourtage an die von Poll Immobilien GmbH gegen Rechnung zu zahlen. HAFTUNG: Wir weisen darauf hin, dass die von uns weitergegebenen Objektinformationen, Unterlagen, Pläne etc. vom Verkäufer bzw. Vermieter stammen. Eine Haftung für die Richtigkeit oder Vollständigkeit der Angaben übernehmen wir daher nicht. Es obliegt daher unseren Kunden, die darin enthaltenen Objektinformationen und Angaben auf ihre Richtigkeit hin zu überprüfen. Alle Immobilienangebote sind freibleibend und vorbehaltlich Irrtümer, Zwischenverkauf- und Vermietung oder sonstiger Zwischenverwertung.
UNSER SERVICE FÜR SIE ALS EIGENTÜMER: Planen Sie den Verkauf oder die Vermietung Ihrer Immobilie, so ist es für Sie wichtig, deren Marktwert zu kennen. Lassen Sie kostenfrei und unverbindlich den aktuellen Wert Ihrer Immobilie professionell durch einen unserer Immobilienspezialisten einschätzen. Unser bundesweites und internationales Netzwerk ermöglicht es uns, Verkäufer bzw. Vermieter und Interessenten bestmöglich zusammenzuführen.
Floor Plan
02692 DOBERSCHAU-GAUßIG / DOBERSCHAU
Einfamilienhaus mit schön angelegtem Garten bei Bautzen
ca. 181,63 m² • 5 Rooms • 240.000 EUR
Provider
- Andreas Schwarz
- Shop Bautzen
- Reichenstraße 9
- 02625 Bautzen