Titelbild
29643 NEUENKIRCHEN
Wohnhaus mit zusätzlicher Apartmentlösung
286.000 EUR
Wohnfläche ca. 148,2 m²
Grundstück ca. 1.222 m²
Zimmer 6
Kaufpreis 286.000 EUR
Anbieter
  • Sylvia Schmidt
  • Shop Heidekreis
  • Am Markt 6
  • 29640 Schneverdingen
Bewerbung wird geladen...

Immobilienanfrage

Füllen Sie das Formular aus und unsere Immobilien-Experten melden sich in Kürze bei Ihnen.

Ihre persönlichen Daten

Ihre Bewerbung wird vertraulich behandelt.

Übersicht

Highlights

Terrasse
Kamin
Einbauküche

Details

Objektnummer

25205045

Haustyp

Einfamilienhaus

Bauweise

Massiv

Stellplatz

2 x Garage

Badezimmer

2

Baujahr

1970

Schlafzimmer

5

Provision

Käuferprovision beträgt 3,57 % (inkl. MwSt.) des beurkundeten Kaufpreises

Energieinformationen

Skala

G

Energieeffizienzklasse

G

Endenergiebedarf

238,65 kWh/m²a

Energieausweis

Bedarfsausweis

Energieausweis gültig bis

14.10.2035

Baujahr laut Energieausweis

1970

Wesentlicher Energieträger

Öl

Befeuerung

Öl

Heizungsart

Zentralheizung

Beschreibung

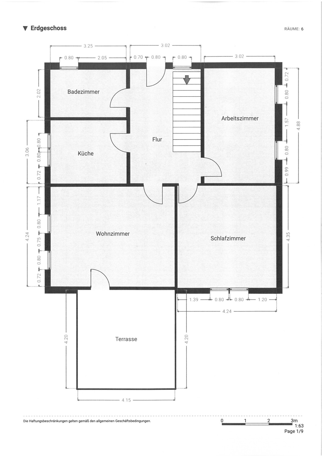
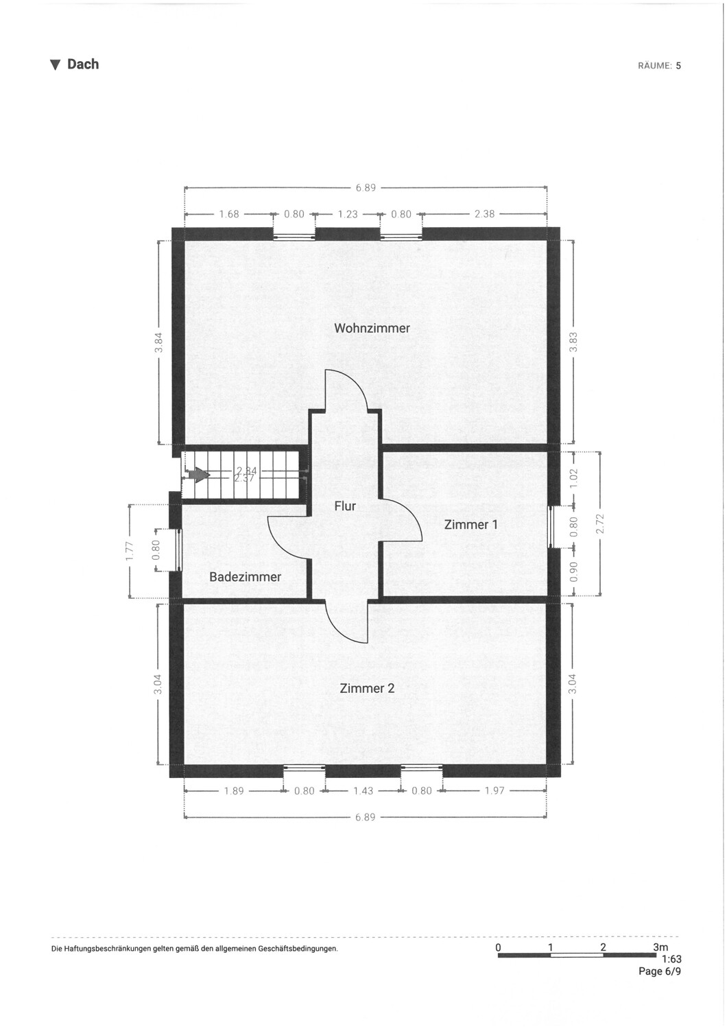
Dieses solide, massiv gebaute Haus aus dem Jahr 1970 befindet sich in schöner Lage und bietet Potenzial für eine Einliegerwohnung im Dachgeschoss. Zu den Highlights zählen die solide Bauweise, der Dachausbau von ca. 2008 mit Dämmung sowie die erneuerte Elektrik um 2006. Die Fenster wurden zwischen den Jahren 2000-2016 erneuert. Ein Kaminofen, der seit 2006 vorhanden ist, sorgt für eine gemütliche Atmosphäre. Ergänzt wird dieses Objekt durch eine geräumige Doppelgarage, einen großen Schuppen direkt am Haus und einen großzügigen Garten mit Gartenhaus und Holzlagern. Das Erdgeschoss umfasst drei Zimmer, die Küche und ein Duschbad, welches ca. im Jahr 2016 ebenerdig umgebaut wurde. Im Dachgeschoss befinden sich drei Räume, wobei in einem Raum Anschlüsse für eine Küche sind, so könnte man eine große offene Küche mit Wohn- Essbereich verbinden.

Insgesamt bietet das Objekt eine solide Bausubstanz mit regelmäßigem Instandhaltungsbedarf und Potenzial zur weiteren Modernisierung. Die Nutzflächen sind großzügig bemessen, Stauraum ist ausreichend vorhanden dank Schuppen, Garagen und dem Vollkeller.

Die Lage bietet eine gute Anbindung an Infrastruktur, Einkaufsmöglichkeiten, Schulen, Kindergärten und öffentliche Verkehrsmittel, was die Attraktivität erhöht.

Weiterlesen

Lage

Nahversorgung
Gastronomie
3,5
 / 5
Gesundheit
0,1
 / 5
Freizeit
2,5
 / 5
Familie
Einkaufen
Geräusche
icon Sehen Sie diese und weitere Daten mit Ihrem Kundenkonto – kostenlos
Melden Sie sich an oder registrieren Sie sich in wenigen Minuten, um alle Angaben sehen zu können.
icon Weitere Angaben freischalten
Beschreibung

Neuenkirchen ist eine Gemeinde im Landkreis Heidekreis, Niedersachsen und liegt am Westrand der Lüneburger Heide an der Bundesstraße 71 zwischen Rotenburg und Soltau. Neuenkirchen ist ein staatlich anerkannter Erholungsort und ist umgeben von weiten Wald-, Wiesen- und Feldlandschaften.

Es besteht außerdem eine Straße nach Bad Fallingbostel und die Landesstraße 171 von Schneverdingen nach Verden (Aller). Es gibt in der Gemeinde viele Touristische Einrichtungen: das Naturfreibad Neuenkirchen, der Schäferhof in Neuenkirchen, die Sprengeler Mühle in Sprengel, die Neuenkirchener Draisinenbahn, der Schroershof in Neuenkirchen und die Kunststiftung Springhornhof in Neuenkirchen. In Neuenkirchen gibt es Kindergärten sowie eine Grund- und Oberschule. Auch die wichtigsten Grundeinrichtungen sind vorhanden: Ärzte, Gastronomie und Bäcker und Einkaufsmärkte.

Verkehrslage: B 71 Soltau - Neuenkirchen - Bremen L 171 Verden - Neuenkirchen - Schneverdingen K 17 Neuenkirchen - Fallingbostel - Walsrode

Autobahn-Abfahrten: Soltau-Ost ca. 15 km Soltau-Süd ca. 18 km Verden-Ost ca. 40 km

Weiterlesen

Finanzierung

Sie interessieren sich für eine Baufinanzierung? Finden Sie mit VON POLL FINANCE* die richtige Immobilienfinanzierung.

Gesamtkosten: 316.230 EUR
Kaufpreis
286.000 EUR
Grunderwerbsteuer
14.300 EUR
5,00%
Maklerprovision
10.210 EUR
3,57%
Notarkosten
4.290 EUR
1,50%
Grundbucheintrag
1.430 EUR
0,50%
Passendes Finanzierungsangebot:
Eigenkapital: 79.058 EUR
Nettodarlehen: 250.000 EUR
Sollzinsbindung: 10 Jahre; Tilgungsrate: 1,00 %
Ihr Finanzierungsbeispiel:
Monatsrate:
1.050 EUR
pencil-edit-monthly
Sollzins: 4,04 %
Effektivzins: 4,13 %

Basierend auf einem Nettoeinkommen von 2.223 EUR und einer Eigenkapitalquote von 25 %

Darlehensanbieter: VoBa Lüneburger Heide

Baufinanzierung unverbindlich anfragen. Über 700 Darlehensgeber im Vergleich. Jetzt Ihren persönlichen Finanzierungsexperten kontaktieren.
Finanzierung berechnen

Ausstattung

  • Decken vom Keller und Erdgeschoss aus Stahlbeton
  • Dacheindeckung aus Frankfurter Pfanne
  • Innenwände überwiegend massiv
  • Holztreppe in das Dachgeschoss
  • Kunststofffenster doppelt verglast
  • Fußböden Fliesen, Teppich, Laminat und Linoleum
  • Doppelgarage
  • Separater Anbau eines Abstellraumes
  • große Eingangsüberdachung

Sonstiges

Es liegt ein Energiebedarfsausweis vor. Dieser ist gültig bis 14.10.2035. Endenergiebedarf beträgt 238.65 kwh/(m²*a). Wesentlicher Energieträger der Heizung ist Öl. Das Baujahr des Objekts lt. Energieausweis ist 1970. Die Energieeffizienzklasse ist G.

GELDWÄSCHE: Als Immobilienmaklerunternehmen ist die von Poll Immobilien GmbH nach § 2 Abs. 1 Nr. 14 und § 11 Abs. 1, 2 Geldwäschegesetz (GwG) dazu verpflichtet, bei der Begründung einer Geschäftsbeziehung die Identität des Vertragspartners festzustellen und zu überprüfen, bzw. sobald ein ernsthaftes Interesse an der Durchführung des Immobilienkaufvertrages besteht. Hierzu ist es erforderlich, dass wir nach § 11 Abs. 4 GwG die relevanten Daten Ihres Personalausweises festhalten (wenn Sie als natürliche Person handeln) – beispielsweise mittels einer Kopie. Bei einer juristischen Person benötigen wir eine Kopie des Handelsregisterauszugs, aus welchem der wirtschaftlich Berechtigte hervorgeht. Das Geldwäschegesetz sieht vor, dass der Makler die Kopien bzw. Unterlagen fünf Jahre aufbewahren muss. Als unser Vertragspartner haben Sie auch eine Mitwirkungspflicht nach § 11 Abs. 6 GwG.

HAFTUNG: Wir weisen darauf hin, dass die von uns weitergegebenen Objektinformationen, Unterlagen, Pläne etc. vom Verkäufer bzw. Vermieter stammen. Eine Haftung für die Richtigkeit oder Vollständigkeit der Angaben übernehmen wir daher nicht. Es obliegt daher unseren Kunden, die darin enthaltenen Objektinformationen und Angaben auf ihre Richtigkeit hin zu überprüfen. Alle Immobilienangebote sind freibleibend und vorbehaltlich Irrtümer, Zwischenverkauf- und Vermietung oder sonstiger Zwischenverwertung.

UNSER SERVICE FÜR SIE ALS EIGENTÜMER: Planen Sie den Verkauf oder die Vermietung Ihrer Immobilie, so ist es für Sie wichtig, deren Marktwert zu kennen. Lassen Sie kostenfrei und unverbindlich den aktuellen Wert Ihrer Immobilie professionell durch einen unserer Immobilienspezialisten einschätzen. Unser bundesweites und internationales Netzwerk ermöglicht es uns, Verkäufer bzw. Vermieter und Interessenten bestmöglich zusammenzuführen.

Weiterlesen

Grundriss

EG
DG

29643 NEUENKIRCHEN

Wohnhaus mit zusätzlicher Apartmentlösung

ca. 148,2 m² 6 Zimmer 286.000 EUR

Anbieter
  • Sylvia Schmidt
  • Shop Heidekreis
  • Am Markt 6
  • 29640 Schneverdingen