Hausansicht
37434 RüDERSHAUSEN
Historische Mühle im neuen Glanz – Wohnen, wo früher das Mehl entstand
230.000 EUR
Wohnfläche ca. 186 m²
Grundstück ca. 1.697 m²
Zimmer 7
Kaufpreis 230.000 EUR
Anbieter
  • Christian Merz
  • Shop Göttingen
  • Theaterstraße 22
  • 37073 Göttingen
Bewerbung wird geladen...

Immobilienanfrage

Füllen Sie das Formular aus und unsere Immobilien-Experten melden sich in Kürze bei Ihnen.

Ihre persönlichen Daten

Ihre Bewerbung wird vertraulich behandelt.

Übersicht

Highlights

Gäste-WC
Garten/-mitbenutzung
Einbauküche

Details

Objektnummer

25255022

Haustyp

Landhaus

Bauweise

Holz

Nutzfläche

ca. 90 m²

Stellplatz

2 x Carport, 2 x Freiplatz

Modernisierung / Sanierung

2001

Zustand der Immobilie

modernisiert

Badezimmer

2

Baujahr

1629

Schlafzimmer

3

Provision

Käuferprovision beträgt 3,57 % (inkl. MwSt.) des beurkundeten Kaufpreises

Energieinformationen

Skala

C

Energieeffizienzklasse

C

Endenergiebedarf

79,80 kWh/m²a

Energieausweis

Bedarfsausweis

Energieausweis gültig bis

30.07.2034

Baujahr laut Energieausweis

1629

Wesentlicher Energieträger

Strom

Befeuerung

Luft/Wasser-Wärmepumpe

Beschreibung

Diese liebevoll sanierte ehemalige Mühle in der Nähe von Rüdershausen vereint historischen Charme mit modernem Wohnkomfort und bietet damit ein außergewöhnliches Zuhause für Menschen, die das Besondere suchen. Das ursprüngliche Mühlengebäude wurde im Jahr 2001 aufwendig saniert und seither kontinuierlich gepflegt. Besonders hervorzuheben ist die moderne Heizungsanlage aus dem Jahr 2023, sodass in diesem Bereich keinerlei Investitionen anstehen.

Bereits beim Betreten zeigt sich die besondere Atmosphäre des Hauses: Traditionelle Elemente der alten Mehlmühle wurden stilvoll mit zeitgemäßer Wohnarchitektur verbunden. Besonders eindrucksvoll ist die wunderschön gestaltete Mansardenumwandlung im potenziellen Aufgang zum Obergeschoss, die dem Haus eine elegante und helle Raumwirkung verleiht.

Die oberen Zimmer überzeugen durch sehr gute Schnittführungen, großzügige Raumverhältnisse und einen insgesamt sehr gepflegten Zustand. Hier lässt sich ohne weiteren Aufwand sofort einziehen und wohlfühlen. Einzig das Erdgeschoss benötigt teilweise noch Sanierungsmaßnahmen, gleichzeitig bietet dieser Bereich damit die Chance, eigene Gestaltungsideen einzubringen und das Haus weiter nach individuellen Vorstellungen zu verfeinern.

Ein weiteres Highlight ist das traumhafte Grundstück mit knapp 1.700 m² Fläche. Die weitläufige Außenanlage eröffnet vielfältige Gestaltungsmöglichkeiten, ob als Gartenparadies, Rückzugsort in der Natur oder Fläche für Hobbys. Das Grundstück unterstreicht die idyllische Lage des Hauses und bietet reichlich Platz zum Leben, Entspannen und Genießen.

Ein Objekt, das Geschichte atmet, modern ausgestattet ist und gleichzeitig noch Raum für persönliche Träume lässt, eine seltene Gelegenheit in dieser Form.

Weiterlesen

Lage

Nahversorgung
Gastronomie
0,6
 / 5
Gesundheit
1,4
 / 5
Freizeit
1,9
 / 5
Familie
Einkaufen
Geräusche
icon Sehen Sie diese und weitere Daten mit Ihrem Kundenkonto – kostenlos
Melden Sie sich an oder registrieren Sie sich in wenigen Minuten, um alle Angaben sehen zu können.
icon Weitere Angaben freischalten
Beschreibung

Die ehemalige Mühle liegt ruhig und naturnah in der Nähe von Rüdershausen, einem kleinen Ort in der Samtgemeinde Gieboldehausen. Die Umgebung bietet idyllisches Landleben, kurze Wege zu Einrichtungen des täglichen Bedarfs und eine sehr angenehme Wohnatmosphäre.

Nur wenige Minuten entfernt befindet sich Duderstadt, das als regionales Zentrum und charmante Fachwerkstadt hervorsticht. Mit einer ausgezeichneten Nahversorgung, Schulen, Kulturangeboten und einer lebendigen Innenstadt bietet Duderstadt alles, was man im Alltag benötigt und bildet damit den wichtigsten Anlaufpunkt der Region.

Die Stadt Göttingen ist ebenfalls gut erreichbar und erweitert die Lage um die Vorzüge einer renommierten Universitätsstadt. Bildungsangebote, Arbeitsmöglichkeiten, Kultur und medizinische Versorgung machen Göttingen zu einem wertvollen überregionalen Bezugspunkt.

Umgeben von Feldern, Wiesen und naturnahen Wegen eignet sich die Gegend ideal für Spaziergänge, Radtouren und Erholung. Die Kombination aus ruhiger Dorfstruktur, der Nähe zu Duderstadt und der guten Verbindung nach Göttingen macht diesen Standort besonders attraktiv.

Weiterlesen

Sonstiges

Es liegt ein Energiebedarfsausweis vor. Dieser ist gültig bis 30.7.2034. Endenergiebedarf beträgt 79.80 kwh/(m²*a). Wesentlicher Energieträger der Heizung ist Strom. Das Baujahr des Objekts lt. Energieausweis ist 1629. Die Energieeffizienzklasse ist C.

GELDWÄSCHE: Als Immobilienmaklerunternehmen ist die von Poll Immobilien GmbH nach § 2 Abs. 1 Nr. 14 und § 11 Abs. 1, 2 Geldwäschegesetz (GwG) dazu verpflichtet, bei der Begründung einer Geschäftsbeziehung die Identität des Vertragspartners festzustellen und zu überprüfen, bzw. sobald ein ernsthaftes Interesse an der Durchführung des Immobilienkaufvertrages besteht. Hierzu ist es erforderlich, dass wir nach § 11 Abs. 4 GwG die relevanten Daten Ihres Personalausweises festhalten (wenn Sie als natürliche Person handeln) – beispielsweise mittels einer Kopie. Bei einer juristischen Person benötigen wir eine Kopie des Handelsregisterauszugs, aus welchem der wirtschaftlich Berechtigte hervorgeht. Das Geldwäschegesetz sieht vor, dass der Makler die Kopien bzw. Unterlagen fünf Jahre aufbewahren muss. Als unser Vertragspartner haben Sie auch eine Mitwirkungspflicht nach § 11 Abs. 6 GwG.

HAFTUNG: Wir weisen darauf hin, dass die von uns weitergegebenen Objektinformationen, Unterlagen, Pläne etc. vom Verkäufer bzw. Vermieter stammen. Eine Haftung für die Richtigkeit oder Vollständigkeit der Angaben übernehmen wir daher nicht. Es obliegt daher unseren Kunden, die darin enthaltenen Objektinformationen und Angaben auf ihre Richtigkeit hin zu überprüfen. Alle Immobilienangebote sind freibleibend und vorbehaltlich Irrtümer, Zwischenverkauf- und Vermietung oder sonstiger Zwischenverwertung.

UNSER SERVICE FÜR SIE ALS EIGENTÜMER: Planen Sie den Verkauf oder die Vermietung Ihrer Immobilie, so ist es für Sie wichtig, deren Marktwert zu kennen. Lassen Sie kostenfrei und unverbindlich den aktuellen Wert Ihrer Immobilie professionell durch einen unserer Immobilienspezialisten einschätzen. Unser bundesweites und internationales Netzwerk ermöglicht es uns, Verkäufer bzw. Vermieter und Interessenten bestmöglich zusammenzuführen.

Weiterlesen

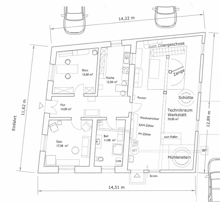
Grundriss

Grundriss_OG
Keller
Grundriss_Dachboden
Grundriss_EG

37434 RüDERSHAUSEN

Historische Mühle im neuen Glanz – Wohnen, wo früher das Mehl entstand

ca. 186 m² 7 Zimmer 230.000 EUR

Anbieter
  • Christian Merz
  • Shop Göttingen
  • Theaterstraße 22
  • 37073 Göttingen