Titelbild
26386 WILHELMSHAVEN
Extravagantes Architektenhaus als Rohdiamant
339.000 EUR
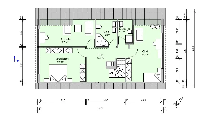
Wohnfläche ca. 174,65 m²
Grundstück ca. 934 m²
Zimmer 5
Kaufpreis 339.000 EUR
Anbieter
  • Hermann Mehrtens
  • Shop Wilhelmshaven
  • Marktstraße 19
  • 26382 Wilhelmshaven
Bewerbung wird geladen...

Immobilienanfrage

Füllen Sie das Formular aus und unsere Immobilien-Experten melden sich in Kürze bei Ihnen.

Ihre persönlichen Daten

Ihre Bewerbung wird vertraulich behandelt.

Übersicht

Highlights

Terrasse
Gäste-WC
Kamin
Garten/-mitbenutzung

Details

Objektnummer

25203045

Haustyp

Einfamilienhaus

Bauweise

Massiv

Nutzfläche

ca. 118 m²

Stellplatz

2 x Garage

Modernisierung / Sanierung

2008

Badezimmer

2

Baujahr

1977

Schlafzimmer

3

Provision

Käuferprovision beträgt 3,57 % (inkl. MwSt.) des beurkundeten Kaufpreises

Energieinformationen

Skala

D

Energieeffizienzklasse

D

Endenergieverbrauch

117,90 kWh/m²a

Energieinformationen

VERBRAUCH

Energieausweis gültig bis

17.02.2026

Baujahr laut Energieausweis

2008

Wesentlicher Energieträger

Erdgas leicht

Befeuerung

Gas

Heizungsart

Fussbodenheizung

Beschreibung

Ein Rohdiamant mit Charakter

Dieses freistehende und außergewöhnliche Architektenhaus in beliebter und ruhiger Lage wartet darauf, von Ihnen aus seinem Dornröschenschlaf geweckt zu werden. Erbaut im Jahr 1977, zuletzt modernisiert in 2008, ist das Haus aus einer Ära, die Wert auf Individualität und durchdachte Gestaltung legt. Es bietet eine außergewöhnliche Basis für Ihr persönliches Traumhaus. Die Architektur zeichnet sich durch besondere Merkmale, z. B. einen einzigartigen Grundriss, eine besondere Dachform, große Fensterfronten aus, die heute selten zu finden sind. Der äußere Eindruck wird ebenso durch die "bunte" Klinkerfassade unterstrichen, in der sogar einzelne "Fehlbrände" vom Maurermeister integriert wurden. Der großzügige Grundriss von ca. 175 m² bietet vielfältige Gestaltungsmöglichkeiten für modernes Wohnen. Bringen Sie Ihre eigenen Ideen ein und revitalisieren Sie diesen Rohdiamanten zu einem zeitgemäßen Zuhause mit individuellem Charme.

Im Keller ist die 2008 neue eingebaute Gas-Brennwerttherme mit Solar-Unterstützung für Warmwasser untergebracht. Der große Hobbyraum lässt eine vielfältige Nutzung zu. In einem weiteren Raum befindet sich ein Schwimmbecken, in dem der Einbau eines Schwimmbades vorbereitet ist. Aktuell ist auf ca. 1,5 m Höhe eine Holzzwischendecke eingezogen. Ein kleiner Nebenraum war für eine Sauna vorgesehen. Die Kellerräume sind trocken und verfügen über Fenster und Tageslichteinfall.

Eine großzügige Doppelgarage mit über 30 m² ergänzt das Anwesen.

Auf dem ca. 934 m² großen Grundstück haben Sie die Möglichkeit, eine wahre Oase zu erschaffen. Das Grundstück teilt sich in zwei Flurstücke auf. Der große Garten bietet viel Platz für eine kreative Landschaftsgestaltung – sei es ein Nutzgarten, eine weitläufige Terrasse oder ein Spielparadies für Kinder. Die Größe und der Zuschnitt des Grundstücks garantieren viel Privatsphäre und Ruhe. Die Terrassen vorne und hinten und der überdachte Grillplatz lassen viel Raum zum Genießen und Entspannen.

Dieses Haus ist eine einmalige Gelegenheit für alle, die ein Haus und Projekt suchen und dabei keine Kompromisse bei Lage und Architektur eingehen möchten. Nutzen Sie das Potenzial dieser Immobilie und schaffen Sie einen Wohnraum, der Ihre Persönlichkeit widerspiegelt. Bringen Sie frische Ideen, modernen Komfort und Energieeffizienz in das Haus und bewahren Sie gleichzeitig den einzigartigen Charakter des Architektenentwurfs.

Weiterlesen

Lage

Beschreibung

Die Immobilie befindet sich in einer gefragten und ruhigen Wohnlage im Stadtteil Heppens an der Grenze zu Neuengroden, einem der einwohnerstärksten und zugleich familienfreundlichsten Viertel von Wilhelmshaven.

Der Bereich zeichnet sich durch ihre ansprechende und grüne Umgebung aus, die eine hohe Wohnqualität verspricht.

Alle Geschäfte des täglichen Bedarfs, darunter Supermärkte und Bäckereien, sind fußläufig erreichbar. Die Anbindung an den öffentlichen Personennahverkehr ist hervorragend. Nur einen kurzen Fußweg entfernt befindet sich die nächste Bushaltestelle. Der nächste Autobahnanschluss ist nur wenige Minuten entfernt.

Für Erholung im Grünen sorgt die Nähe zu Parkanlagen. Der bekannte und beliebte Stadtpark ist nur wenige Gehnminuten entfernt. Wilhelmshaven, auch bekannt als die "Perle an der Nordsee", bietet eine hohe Lebensqualität mit zahlreichen Freizeitmöglichkeiten. Die Innenstadt mit ihren vielfältigen Einkaufsmöglichkeiten, Restaurants und kulturellen Angeboten ist schnell zu erreichen. Kindergärten, Schulen sowie Ärzte und Apotheken sind in der Umgebung ebenfalls gut vertreten und leicht zugänglich.

Die Umgebung ist geprägt von gepflegten Einfamilienhausen und wenigen Mehrfamilienhäusern mit Gärten, was eine angenehme und ruhige Atmosphäre schafft. Besonders die grünen Straßen und das gute nachbarschaftliche Umfeld machen den Stadtteil Heppens/Neuengroden zu einem attraktiven Wohnort für Familien, Paare und Singles gleichermaßen. Die Nähe zu den städtischen Annehmlichkeiten bei gleichzeitiger Ruhe und Nähe zur Natur macht diese Lage besonders begehrenswert.

Weiterlesen

Ausstattung

  • Extravagantes Architektenhaus
  • + individuelle Architektur
  • + Fußbodenheizung im gesamten Haus
  • + Neue Junkers Gas-Brennwerttherme aus 2008 mit Solar-Unterstützung für Warmwasser
  • + große Fensterflächen mit Rolläden
  • + Innenkamin, der evtl. die Abgasnorm nicht mehr erfüllt und erneuert werden muss
  • + vollständig unterkellert, trocken
  • + großzügiger und trockener Keller als Souterrain mit Fenstern
  • + Keller ist für den Bau eines Schwimmbades vorbereitet
  • + eingewachsener Garten
  • + überdachter Sitzbereich mit Außenkamin/Grillplatz
  • + Terrassen vorne und Hochterrasse/Balkon hinten
  • + Doppelgarage mit elektrischer Schließanlage

Sonstiges

Es liegt ein Energieverbrauchsausweis vor. Dieser ist gültig bis 17.2.2026. Endenergieverbrauch beträgt 117.90 kwh/(m²*a). Wesentlicher Energieträger der Heizung ist Erdgas leicht. Das Baujahr des Objekts lt. Energieausweis ist 2008. Die Energieeffizienzklasse ist D.

GELDWÄSCHE: Als Immobilienmaklerunternehmen ist die von Poll Immobilien GmbH nach § 2 Abs. 1 Nr. 14 und § 11 Abs. 1, 2 Geldwäschegesetz (GwG) dazu verpflichtet, bei der Begründung einer Geschäftsbeziehung die Identität des Vertragspartners festzustellen und zu überprüfen, bzw. sobald ein ernsthaftes Interesse an der Durchführung des Immobilienkaufvertrages besteht. Hierzu ist es erforderlich, dass wir nach § 11 Abs. 4 GwG die relevanten Daten Ihres Personalausweises festhalten (wenn Sie als natürliche Person handeln) – beispielsweise mittels einer Kopie. Bei einer juristischen Person benötigen wir eine Kopie des Handelsregisterauszugs, aus welchem der wirtschaftlich Berechtigte hervorgeht. Das Geldwäschegesetz sieht vor, dass der Makler die Kopien bzw. Unterlagen fünf Jahre aufbewahren muss. Als unser Vertragspartner haben Sie auch eine Mitwirkungspflicht nach § 11 Abs. 6 GwG.

HAFTUNG: Wir weisen darauf hin, dass die von uns weitergegebenen Objektinformationen, Unterlagen, Pläne etc. vom Verkäufer bzw. Vermieter stammen. Eine Haftung für die Richtigkeit oder Vollständigkeit der Angaben übernehmen wir daher nicht. Es obliegt daher unseren Kunden, die darin enthaltenen Objektinformationen und Angaben auf ihre Richtigkeit hin zu überprüfen. Alle Immobilienangebote sind freibleibend und vorbehaltlich Irrtümer, Zwischenverkauf- und Vermietung oder sonstiger Zwischenverwertung.

UNSER SERVICE FÜR SIE ALS EIGENTÜMER: Planen Sie den Verkauf oder die Vermietung Ihrer Immobilie, so ist es für Sie wichtig, deren Marktwert zu kennen. Lassen Sie kostenfrei und unverbindlich den aktuellen Wert Ihrer Immobilie professionell durch einen unserer Immobilienspezialisten einschätzen. Unser bundesweites und internationales Netzwerk ermöglicht es uns, Verkäufer bzw. Vermieter und Interessenten bestmöglich zusammenzuführen.HAFTUNG: Wir weisen darauf hin, dass die von uns weitergegebenen Objektinformationen, Unterlagen, Pläne etc. vom Verkäufer bzw. Vermieter stammen. Eine Haftung für die Richtigkeit oder Vollständigkeit der Angaben übernehmen wir daher nicht. Es obliegt daher unseren Kunden, die darin enthaltenen Objektinformationen und Angaben auf ihre Richtigkeit hin zu überprüfen. Alle Immobilienangebote sind freibleibend und vorbehaltlich Irrtümer, Zwischenverkauf- und Vermietung oder sonstiger Zwischenverwertung.

UNSER SERVICE FÜR SIE ALS EIGENTÜMER: Planen Sie den Verkauf oder die Vermietung Ihrer Immobilie, so ist es für Sie wichtig, deren Marktwert zu kennen. Lassen Sie kostenfrei und unverbindlich den aktuellen Wert Ihrer Immobilie professionell durch einen unserer Immobilienspezialisten einschätzen. Unser bundesweites und internationales Netzwerk ermöglicht es uns, Verkäufer bzw. Vermieter und Interessenten bestmöglich zusammenzuführen.

Weiterlesen

26386 WILHELMSHAVEN

Extravagantes Architektenhaus als Rohdiamant

ca. 174,65 m² 5 Zimmer 339.000 EUR

Anbieter
  • Hermann Mehrtens
  • Shop Wilhelmshaven
  • Marktstraße 19
  • 26382 Wilhelmshaven